Vuokrataan toimistotilat - Helsinki
Kuortaneenkatu 1, Vallila, 00520 Helsinki #10846341
Vuokrataan toimistotilaa näkyvällä paikalla kiinteistön 7.kerroksesta. Jäähdytetyt tilat ovat helposti muunneltavissa ja muokataan asiakkaan tarpeiden mukaisiksi. Ota yhteyttä ja sovi esittely, vuokrauspalvelumme on tilanhakijoille maksuton..
Osoite
Kuortaneenkatu 1, 00520 Helsinki
Tilatyyppi
Toimistotilaa
304 m2
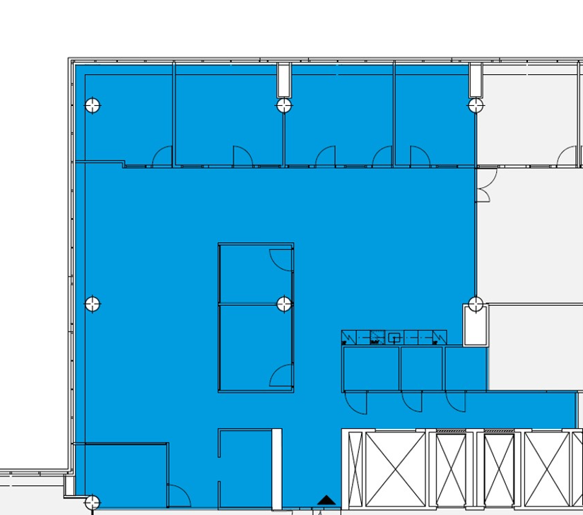
Pohjapiirros
Kiinteistö
Rakennus on valmistunut vuonna 1969 ja saneerattu toimistokäyttöön vuonna 1998. Yhteiset aula- ja neuvottelutilat on kunnostettu keväällä 2013.
Sijainti
Kiinteistö Oy Elimäenkatu 26 sijaitsee Helsingin Vallilassa, Elimäenkadun ja Kuortaneenkadun kulmassa.
Pysäköinti
Autotallissa vuokrattavia autopaikkoja, myös vieressä Vallilan Q-Parkissa pysäköintimahdollisuus.
Kulkuyhteydet
Liikenneyhteydet Vallilaan ovat hyvät. Kaupunginosan kautta kulkee useita raitiovaunu- ja bussilinjoja. Pasilan juna-asema sijaitsee kävelymatkan päässä.
Muuta
Kiinteistössä vuokralaisia palvelevat aulavastaanotto, lounasravintola sekä yhteiset neuvottelutilat. Kellarikerroksessa varastotilaa vuokrattavana, josta tavarahissiyhteys lastauslaiturin kautta kiinteistön kerroksiin.
Vapautuu
Heti
Rakennusvuosi
1969
Saneerausvuosi
1998
Kerros
7 / 6
Energiatehokkuusluokka
Ei lain edellyttämää energiatodistusta
Näkyvällä paikalla
Hissi
Lastauslaituri
Ota yhteyttä
Senaatin Notariaatti Oy LKV
Lämmittäjänkatu 4 A
FIN-00880 Helsinki
Tel:
Näytä puhelinnumero
+358 9 7745 100
Pyydä lisätietoa
