Vuokrataan toimistotilat - Helsinki
Siltasaarenkatu 12, Hakaniemi, 00530 Helsinki #10846338
Hakaniemen torin laidalta vuokrattavana huone-/kombi-/avokonttoria loistavilla julkisilla liikenneyhteyksillä. Tiloissa on jäähdytys ja nykyaikainen tietoliikenneyhteys. Ota yhteyttä ja sovi esittely, vuokrauspalvelumme on tilanhakijoille ilmainen.
Osoite
Siltasaarenkatu 12, 00530 Helsinki
Tilatyyppi
Toimistotilaa
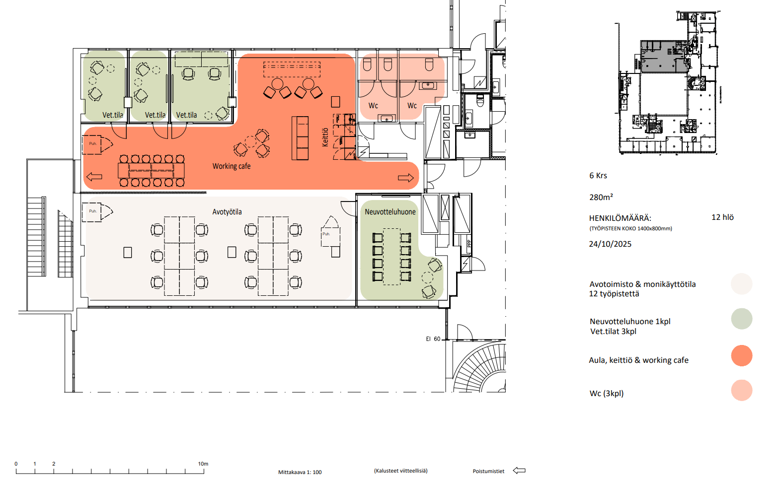
280 m2
Tilajako
Jaettavissa
Pohjapiirros
Kiinteistö
Tilat remontoidaan täydellisesti tulevaa vuokralaista varten.
Sijainti
Hakaniemi
Pysäköinti
Hakaniemen torin ja Merihaan pysköintihallit.
Palvelut
Kaikki Hakaniemen ja torin palvelut kävelymatkan päässä.
Kulkuyhteydet
Metro, raitiovaunut, bussit.
Vapautuu
Heti
Rakennusvuosi
1958
Saneerausvuosi
2006
Kerros
6 / 9
Energiatehokkuusluokka
Ei lain edellyttämää energiatodistusta
Jaettavissa
Hissi
Ota yhteyttä
Senaatin Notariaatti Oy LKV
Lämmittäjänkatu 4 A
FIN-00880 Helsinki
Tel:
Näytä puhelinnumero
+358 9 7745 100
Pyydä lisätietoa
