Vuokrataan toimistotilat, tuotantotilat, varastotilat - Espoo
Koskelontie 13, Koskelo, 02920 Espoo #10846307
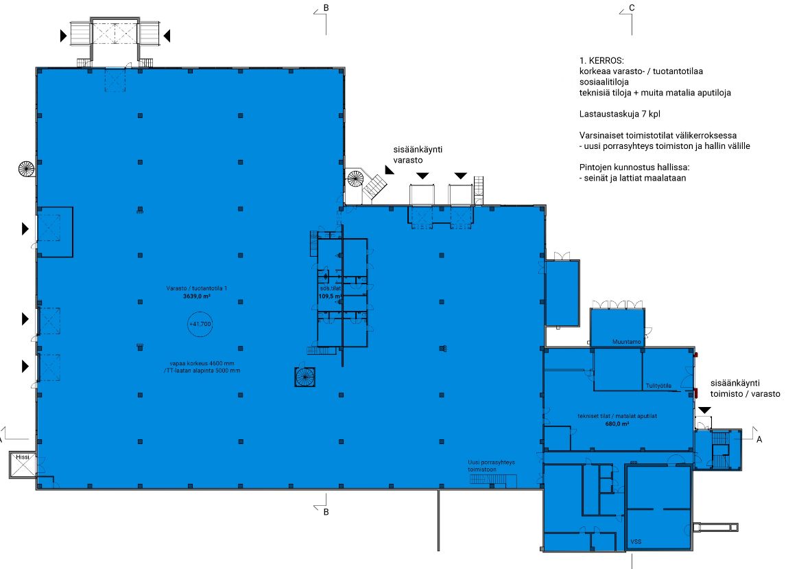
Vuokrataan varastotilaa, jossa lastaustasku/nosto-ovia 4, maantason nosto-ovia 3, lattiakantavuus 2 000 kg/m2. Varasto-/tuotantotilaa 3 639 m2, kellaritilaa sekä sosiaalitilat n 680m2. Voi yhdistää 1.5 kerroksen toimistotilaan sisäportailla. Ohessa havainnollistavia kuvia.
Koskelo Trade Park on noin 26 000 m2 toimitilakokonaisuus, jonka tilat on suunniteltu joustamaan asiakkaan tarpeiden mukaan. Kaava mahdollistaa erilaisten toimintojen sijoittumisen ja yhdistämisen tontilla. Kokonaisuus käsittää varasto-, toimisto-, myymälä-ja näyttelytilaa. Toimitiloja pihatasossa nosto-ovin tai lastauslaituritasolla. Varaston korkeus on noin 8 metriä.
Lisätietoja 020 7290 710 ja lisää kohteita premises.fi
Kohteella ei ole lain edellyttämää energiatodistusta tai energialuokka ei tiedossa.Kerros: 1
CRE PREMISES
Puh. Näytä puhelinnumero 020 7290 710
Vantaankoskentie 14
01670 VANTAA
