Vuokrataan tuotantotilat, varastotilat - Espoo
Rajamaankaari 10, Juvanmalmi, 02970 Espoo #10846285
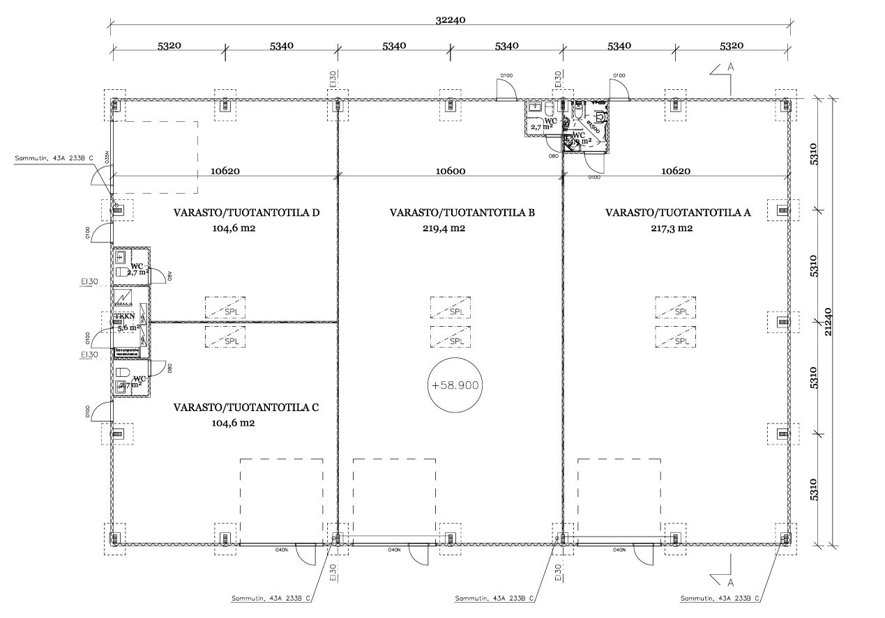
Vuokrataan tai myydään asiallinen 2018 rakennetun hallin n. 222 m2 tila. Tilaan johtaan iso 4 x 4 m nosto-ovi. Tilassa wc ja minikeittiö. Öljykaivo. Muuten tila avointa hallitilaa.
Tila on kiinteistön keskellä, tila B. Kuvat ovat uudiskohdekuvia vuodelta 2018.
Lisätiedot: p. 045 261 6555/Mika
Kohteella ei ole lain edellyttämää energiatodistusta tai sitä ei ole saatavissa.
Osoite
Rajamaankaari 10, 02970 Espoo
Tilatyyppi
Tuotantotilaa
222,1 m2
Varastotilaa
222,1 m2
Yhteensä
222,1 m2
Ota yhteyttä
CRE PREMISES
Puh. Näytä puhelinnumero 020 7290 710
Vantaankoskentie 14
01670 VANTAA
Pyydä lisätietoa
