Vuokrataan toimistotilat - Tampere
Kuninkaankatu 30 A, 33200 Tampere #10846178
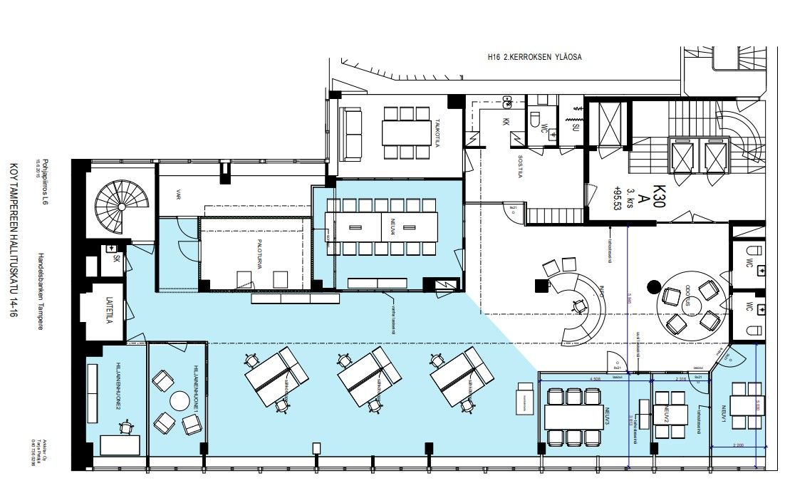
Kuninkaankadun sydämessä, Tampereen ydinkeskustassa, sijaitsee tämä upea toimistotila, joka tarjoaa erinomaiset puitteet yritystoiminnalle. Kolmannessa kerroksessa sijaitseva 318,5 neliömetrin tila on erinomaisessa kunnossa ja valmiina vastaanottamaan uudet käyttäjänsä.
Mukavuutta lisää mm. taukotila, erilliset neuvottelutilat sekä keittiö ja suihku.
Toimistotila sijaitsee vain muutaman askeleen Hämeenkadulta ja sieltä avautuvat näkymät vilkkaalle Kuninkaankadulle. Tämä keskeinen sijainti tarjoaa erinomaiset liikenneyhteydet ja kaikki keskustan palvelut ovat käden ulottuvilla.
Nalkalan alue on tunnettu vireästä kaupunkikulttuuristaan ja monipuolisista palveluistaan, mikä tekee siitä ihanteellisen paikan liiketoiminnalle. Tämä toimistotila on täydellinen valinta yritykselle, joka arvostaa keskeistä sijaintia ja laadukkaita tiloja. Tartu tilaisuuteen ja tee tästä toimistosta yrityksesi uusi koti keskellä Tampereen elämää.
