Vuokrataan liiketilat - Tampere
Katutason liiketila Hämeenkadun varrelta, Hämeenkatu 28, 33200 Tampere #10846166
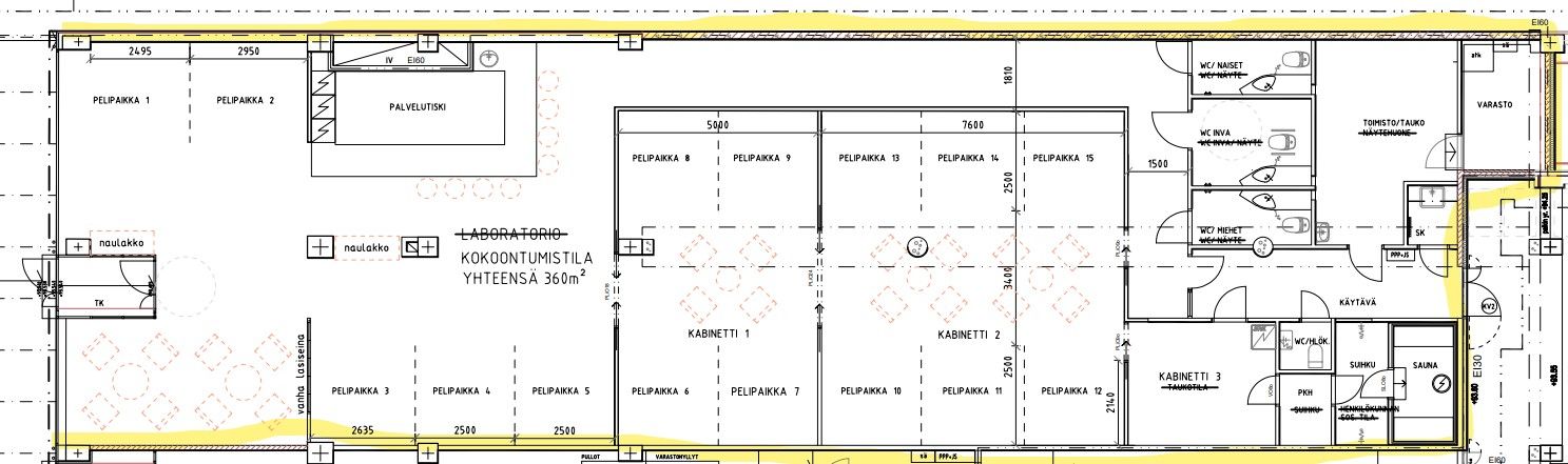
Vuokrataan katutason liiketila 360 m² Hämeenkadulta.
Tämä katutasossa sijaitseva tila tarjoaa hyvät mahdollisuudet liiketoiminnalle. Suuret näyteikkunat tuovat runsaasti luonnonvaloa ja tarjoavat näkyvyyttä vilkkaalle Hämeenkadulle.
Tilassa on hyvin varusteltu keittiö, joka tarjoaa erinomaiset puitteet henkilökunnan tauoille. Sosiaalitilat ovat siistit ja pinnoiltaan uutta vastaavat. Viihtyvyyttä lisää jäähdytys ja ikkunoiden kalvoteippaus.
Tampereen keskustan erinomaiset liikenneyhteydet takaavat helpon saavutettavuuden niin julkisilla kulkuneuvoilla, kävellen tai pyöräillen tai autolla.
Tartu tilaisuuteen ja tule tutustumaan tähän loistavaan liiketilaan, joka yhdistää keskeisen sijainnin ja modernit mukavuudet sekä huippusijainnin.
Katutasossa
Näkyvällä paikalla
Huoneistokeskus Oy
Huoneistokeskus Tampere / Toimitilat
teppo.lehto@huoneistokeskus.fi tai kai.kapyla@huoneistokeskus.fi
