Vuokrataan toimistotilat - Helsinki
Kaikukatu 3, Kallio, 00530 Helsinki #10845996
Toimistotilaa Helsingin Kalliossa, toimistotalo Haikussa.
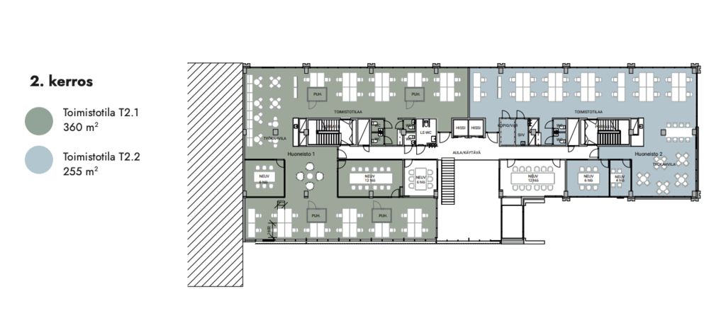
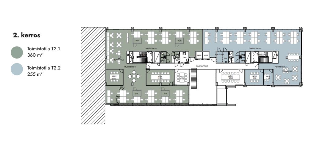
Tämä 255 m² toimistotila sijaitsee kiinteistön 2. kerroksessa.
Haikussa on yhteensä 4200 m² modernia vuokrattavaa toimistotilaa. Kerrospinta-ala on noin 650 m², ja se on mahdollista jakaa useammalle käyttäjälle, alkaen n. 160 m² kokoisiin osiin. Tilat on mahdollista toteuttaa monitila-, avo- ja työhuonetoimistoina. Kuvat ovat havainnekuvia kiinteistön tiloista.
Kaikukatu 3 eli Haiku sijaitsee hyvien liikenneyhteyksien varrella Helsingin Kalliossa. Haikussa on valmistunut mittava saneeraus, jossa koko kiinteistön tilat uudistettiin vastaamaan nykyajan tarpeita. Rakennukselle haetaan LEED Gold -sertifikaattia. Kiinteistössä on pysäköintihalli, jossa on myös sähköautojen latauspaikkoja. Pyörällä kulkeville on tarjolla pyöräparkit ja sosiaalitilat.
Kysy lisää numerosta 044 723 4700 tai info@bref.fi. Palvelumme on tilanhakijoille ilmainen.
Bureau Real Estate Finland Oy
Lars Sonckin kaari 16, 02600 Espoo
Näytä puhelinnumero
0447234700
Bureau Real Estate Finland Oy
https://www.bref.fi