Vuokrataan liiketilat - Helsinki
Aleksanterinkatu 9, Keskusta, 00100 Helsinki #10845987
Liiketilaa erinomaisella paikalla Helsingin ydinkeskustassa.
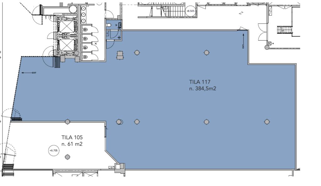
Tämä 384,5m² liiketila sijaitsee kauppakeskuksen 2. kerroksessa, XXL:n vieressä. Tila on näkyvällä paikalla, hyvin saavutettavissa sekä Yliopistonkadun sisäänkäynnistä että 1. kerroksesta liukuporras- ja hissiyhteyksin.
Aleksanterinkatu 9 eli kauppakeskus Kluuvi sijaitsee loistavalla paikalla Aleksanterinkadun ja Kluuvinkadun kulmassa. Kauppakeskuksen ja keskustan monipuoliset palvelut ja lukuisat lounasravintolat sijaitsevat aivan kivenheiton päässä. Alueelle on erinomaiset julkisen liikenteen yhteydet.
Kysy lisää numerosta 044 723 4700 tai info@bref.fi. Palvelumme on tilanhakijoille ilmainen
Bureau Real Estate Finland Oy
Lars Sonckin kaari 16, 02600 Espoo
Näytä puhelinnumero
0447234700
Bureau Real Estate Finland Oy
https://www.bref.fi