Vuokrataan liiketilat - Helsinki
Isosaarentie 10, Laajasalo, 00840 Helsinki #10845976
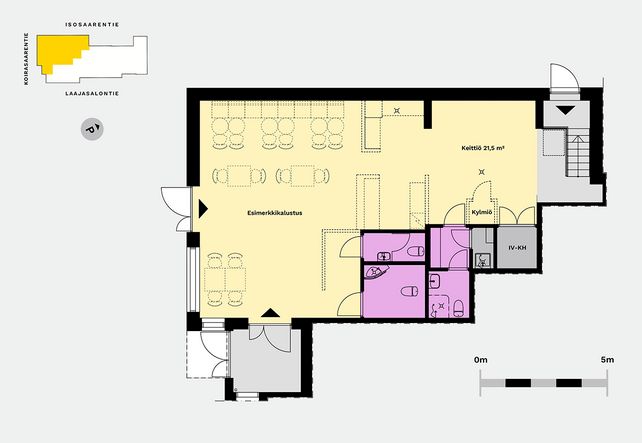
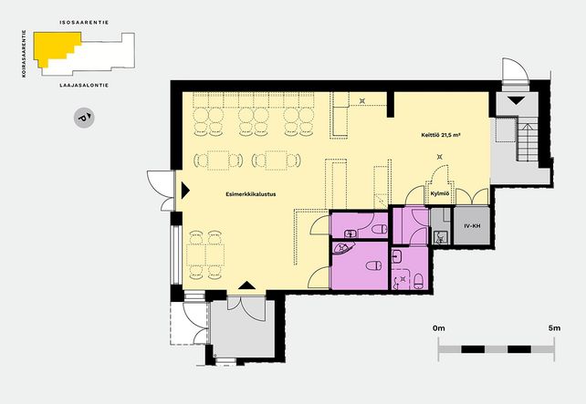
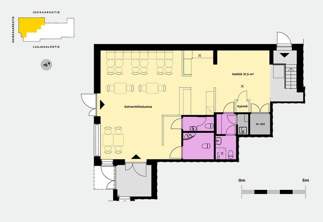
Helsingin Hopeamalmi - Liiketila 117 m²
Osoite
Isosaarentie 10, 00840 Helsinki
Tilatyyppi
Liiketilaa
117 m2
Pohjapiirros
Kiinteistö
Liiketila uudiskohteessa tarjoaa erinomaiset puitteet monipuoliselle liiketoiminnalle. Katutasossa on 117 m² avaraa tilaa ja lisäksi 7 m² tuulikaappi, joka tuo näyttävyyttä sisäänkäyntiin. Tilassa on tekninen varaus ravintolatoiminnalle, mikä mahdollistaa joustavat ratkaisut eri tarpeisiin.
Kohde valmistuu helmikuussa 2026, joten nyt on täydellinen hetki varmistaa paikka uudessa liiketilassa.
Helsingin Hopeamalmi – Modernia liiketilaa luonnon ja palveluiden äärellä
Sijainti
Vehreässä kaupunkiympäristössä sijaitseva uudiskohde Helsingin Laajasalossa. Sijainti aivan tulevan ratikkapysäkin vieressä takaa erinomaiset liikenneyhteydet ja helpon saavutettavuuden. Täällä yhdistyvät mukavuus, luonnon rauha ja sujuva arki.
Palvelut
Hopeamalmi tarjoaa monipuoliset palvelut ja erinomaiset yhteydet, olitpa liikkeellä autolla tai julkisilla. Läheltä löytyvät Laajasalon uimaranta ja kauniit ulkoilualueet, jotka tuovat lisäarvoa työpäivään ja vapaa-aikaan.
Vastuullisuus
Kohde on suunniteltu kestävän kehityksen periaatteiden mukaisesti, tarjoten energiatehokkaat ratkaisut ja modernit tilat, jotka tukevat vastuullista liiketoimintaa.
Ota yhteyttä
Kiinnostuitko? Ota yhteyttä ja tule tutustumaan tiloihin!
Toimitilavälityspalvelumme on tilanhakijalle maksuton.
Kohde valmistuu helmikuussa 2026, joten nyt on täydellinen hetki varmistaa paikka uudessa liiketilassa.
Helsingin Hopeamalmi – Modernia liiketilaa luonnon ja palveluiden äärellä
Sijainti
Vehreässä kaupunkiympäristössä sijaitseva uudiskohde Helsingin Laajasalossa. Sijainti aivan tulevan ratikkapysäkin vieressä takaa erinomaiset liikenneyhteydet ja helpon saavutettavuuden. Täällä yhdistyvät mukavuus, luonnon rauha ja sujuva arki.
Palvelut
Hopeamalmi tarjoaa monipuoliset palvelut ja erinomaiset yhteydet, olitpa liikkeellä autolla tai julkisilla. Läheltä löytyvät Laajasalon uimaranta ja kauniit ulkoilualueet, jotka tuovat lisäarvoa työpäivään ja vapaa-aikaan.
Vastuullisuus
Kohde on suunniteltu kestävän kehityksen periaatteiden mukaisesti, tarjoten energiatehokkaat ratkaisut ja modernit tilat, jotka tukevat vastuullista liiketoimintaa.
Ota yhteyttä
Kiinnostuitko? Ota yhteyttä ja tule tutustumaan tiloihin!
Toimitilavälityspalvelumme on tilanhakijalle maksuton.
Vapautuu
Kysy
Kerros
1
Ota yhteyttä
Logistila Oy
Kylätie 11-13, 00320 HELSINKI
Karoliina Turppo
Näytä puhelinnumero
050 345 3258
Pyydä lisätietoa
