Vuokrataan liiketilat, tuotantotilat - Ylöjärvi
Ihantie 2, 33400 Ylöjärvi #10845964
Osoite
Ihantie 2, 33400 Ylöjärvi
Tilatyyppi
Liiketilaa
700 m2
Tuotantotilaa
700 m2
Yhteensä
700 m2
Tilajako
Jaettavissa
Muuta
Vilkkaasti liikennöidyllä risteysalueella erittäin hyväkuntoista liiketilaa vapautumassa
Vaasantien varrella, n. 2 km Lielahdesta, Teivon ABC:n vieressä on vapautumassa autokaupalta hyväkuntoista ja nykyaikaista liiketilaa.
Tila sijaitsee ABC:n puoleisessa kulmassa aivan Vaasantien varrella, joten näkyvyys on erinomainen. Liikennemäärä risteysalueella on n. 20000 autoa/vrk.
Kiinteistö on valmistunut n. 5 vuotta sitten ja on ominaisuuksiltaan nykypäivän vaatimuksia vastaava.
Pihassa on tälle liiketilalle varattuna n. 30-40 autopaikkaa asfaltoidulla piha-alueella.
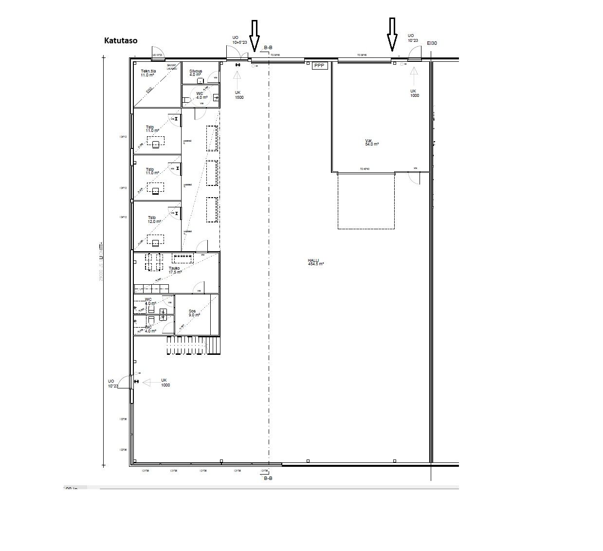
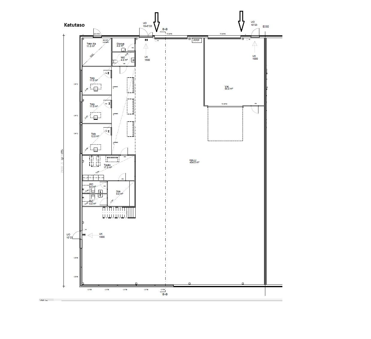
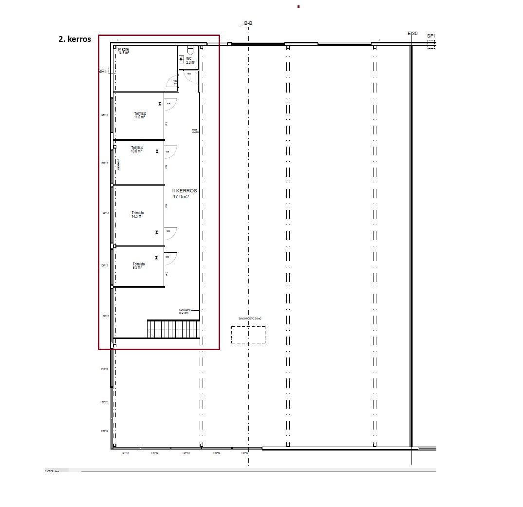
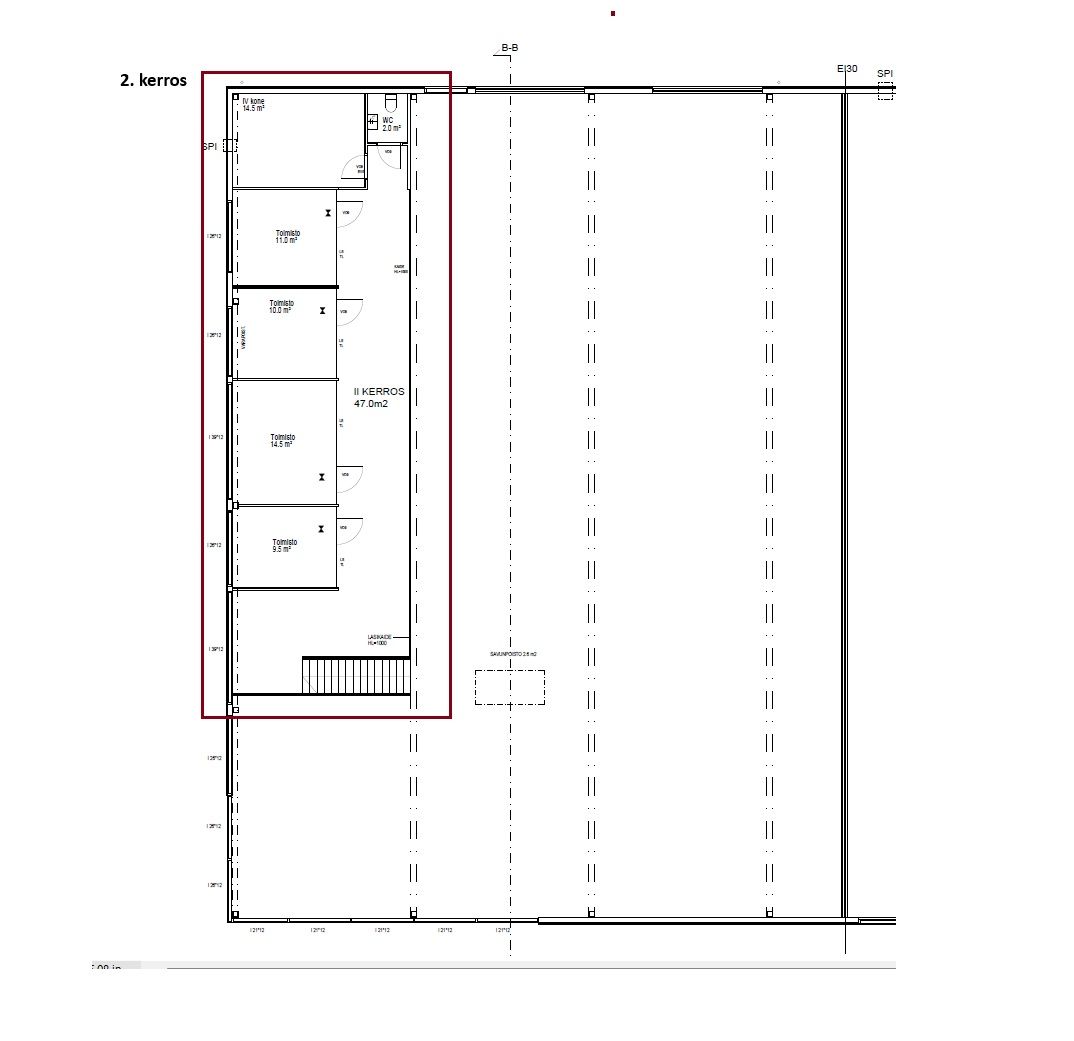
Tila on kooltaan n. 700 m2 josta n. 550m2 on hallitilaa ja loput kahteen kerrokseen sijoittuvaa toimisto-, sosiaali- ja varastointitilaa.
Korkea ja avara hallitila, jossa suuret ikkunat kahdella seinällä Vaasantien risteysalueelle.
Halliin on kaksi suurta nosto-ovea ja käyntiovet. Nosto-ovien luona on lattiakaivot.
Koneellinen ilmanvaihto ja tilassa on oma ilmanvaihtokone. Vesikiertolämmitys, hallissa puhallinlämmitys ja muissa tiloissa lattialämmitys. Useita voimavirtapistokkeita ja kuituliittymä sekä led-valaistus.
Katutasossa sijaitsee erillinen esim. asiakaskäyttöön soveltuva tilava wc. Lisäksi kolme lasiseinällistä huonetta, keittiö ja pukuhuone jonka yhteydessä on kaksi erillistä wc/suihkutilaa. Huoneita voi poistaa tai muokata käyttäjän tarpeen mukaan.
Parvikerroksessa on avoin näkymä alas halliin. Siellä on 4 erikokoista työ-/neuvotteluhuonetta sekä yksi wc.
Seinät saa teipata ja muokata oman yrityksen ilmeelle sopivaksi.
Ihantien postinumero-osoite on Tampere, mutta se sijaitsee Ylöjärven puolella kuntarajojen mukaan.
Tila soveltuu erinomaisesti mm. teknisen kaupan tarpeisiin, huoltoliiketoiminnalle, show-room tilaksi yms.
Kysy lisää, sovitaan käyntiaika paikan päälle:
Annina Niemi
Myyntipäällikkö, LKV
annina.niemi@catella.com
p. 0404812220
Tilanhakijalle palvelumme ovat maksuttomia.
Catella Property Oy on valtakunnallinen toimitilojen vuokraukseen ja myyntiin keskittynyt kiinteistönvälitysyritys.
Kysy paikallisilta ammattitaitoisilta välittäjiltämme myös muita välityksessämme olevia toimitilakohteita.
Välittäjiemme yhteystiedot ja lisää välitettäviä tilakohteita verkkosivuillamme: www.toimitilat.catella.fi.
Ota yhteyttä!
Vaasantien varrella, n. 2 km Lielahdesta, Teivon ABC:n vieressä on vapautumassa autokaupalta hyväkuntoista ja nykyaikaista liiketilaa.
Tila sijaitsee ABC:n puoleisessa kulmassa aivan Vaasantien varrella, joten näkyvyys on erinomainen. Liikennemäärä risteysalueella on n. 20000 autoa/vrk.
Kiinteistö on valmistunut n. 5 vuotta sitten ja on ominaisuuksiltaan nykypäivän vaatimuksia vastaava.
Pihassa on tälle liiketilalle varattuna n. 30-40 autopaikkaa asfaltoidulla piha-alueella.
Tila on kooltaan n. 700 m2 josta n. 550m2 on hallitilaa ja loput kahteen kerrokseen sijoittuvaa toimisto-, sosiaali- ja varastointitilaa.
Korkea ja avara hallitila, jossa suuret ikkunat kahdella seinällä Vaasantien risteysalueelle.
Halliin on kaksi suurta nosto-ovea ja käyntiovet. Nosto-ovien luona on lattiakaivot.
Koneellinen ilmanvaihto ja tilassa on oma ilmanvaihtokone. Vesikiertolämmitys, hallissa puhallinlämmitys ja muissa tiloissa lattialämmitys. Useita voimavirtapistokkeita ja kuituliittymä sekä led-valaistus.
Katutasossa sijaitsee erillinen esim. asiakaskäyttöön soveltuva tilava wc. Lisäksi kolme lasiseinällistä huonetta, keittiö ja pukuhuone jonka yhteydessä on kaksi erillistä wc/suihkutilaa. Huoneita voi poistaa tai muokata käyttäjän tarpeen mukaan.
Parvikerroksessa on avoin näkymä alas halliin. Siellä on 4 erikokoista työ-/neuvotteluhuonetta sekä yksi wc.
Seinät saa teipata ja muokata oman yrityksen ilmeelle sopivaksi.
Ihantien postinumero-osoite on Tampere, mutta se sijaitsee Ylöjärven puolella kuntarajojen mukaan.
Tila soveltuu erinomaisesti mm. teknisen kaupan tarpeisiin, huoltoliiketoiminnalle, show-room tilaksi yms.
Kysy lisää, sovitaan käyntiaika paikan päälle:
Annina Niemi
Myyntipäällikkö, LKV
annina.niemi@catella.com
p. 0404812220
Tilanhakijalle palvelumme ovat maksuttomia.
Catella Property Oy on valtakunnallinen toimitilojen vuokraukseen ja myyntiin keskittynyt kiinteistönvälitysyritys.
Kysy paikallisilta ammattitaitoisilta välittäjiltämme myös muita välityksessämme olevia toimitilakohteita.
Välittäjiemme yhteystiedot ja lisää välitettäviä tilakohteita verkkosivuillamme: www.toimitilat.catella.fi.
Ota yhteyttä!
Vapautuu
Kysy
Jaettavissa
Ota yhteyttä
Catella Property Oy
Hämeenkatu 13b A, 33100 Tampere
Näytä puhelinnumero
010 5220 100
Annina Niemi
Näytä puhelinnumero
040 4812 220
Pyydä lisätietoa
