Vuokrataan toimistotilat - Tampere
Hatanpäänkatu 1, Hatanpää, 33100 Tampere #10845885
Siistiä toimistotilaa Hatanpäästä
Osoite
Hatanpäänkatu 1, 33100 Tampere
Tilatyyppi
Toimistotilaa
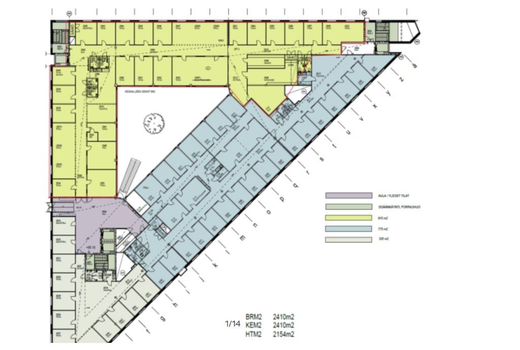
915 m2
Muuta
Vapautumassa 01.01.2026 915 m² toimistotilaa 2. kerroksesta Hatanpään Kulma-Sarviksen toimistokeskuksesta.
Kiinteistö sijaitsee erinomaisella paikalla Tampereen ydinkeskustan kupeessa, hyvien kulkuyhteyksien varrella, lähellä rautatie- ja linja-autoasemia sekä Hotelli Ilvestä.
Kiinteistössä on kattavat palvelut, kuten aulapalvelu, catering sekä vuokralaisten käytössä olevia neuvottelu- ja edustustiloja. Ensimmäisessä kerroksessa toimii myös lounasravintola, jossa on lähes 200 asiakaspaikkaa. Kulma-Sarvis on rakennettu vuonna 1996, ja sen tilat on pidetty ajan tasalla.
Tervetuloa tutustumaan, varaathan välittäjältä oman esittelyaikasi. Voit kysyä meiltä myös muita sopivia vaihtoehtoja, kauttamme löydät juuri Teidän tarpeisiinne sopivat tilat. Palvelumme on tilanhakijalle veloitukseton!
Kiinteistö sijaitsee erinomaisella paikalla Tampereen ydinkeskustan kupeessa, hyvien kulkuyhteyksien varrella, lähellä rautatie- ja linja-autoasemia sekä Hotelli Ilvestä.
Kiinteistössä on kattavat palvelut, kuten aulapalvelu, catering sekä vuokralaisten käytössä olevia neuvottelu- ja edustustiloja. Ensimmäisessä kerroksessa toimii myös lounasravintola, jossa on lähes 200 asiakaspaikkaa. Kulma-Sarvis on rakennettu vuonna 1996, ja sen tilat on pidetty ajan tasalla.
Tervetuloa tutustumaan, varaathan välittäjältä oman esittelyaikasi. Voit kysyä meiltä myös muita sopivia vaihtoehtoja, kauttamme löydät juuri Teidän tarpeisiinne sopivat tilat. Palvelumme on tilanhakijalle veloitukseton!
Vapautuu
Kysy
Kerros
2
Ota yhteyttä
Tuloskiinteistöt Oy
Finlaysoninkatu 4, 33210 Tampere
Näytä puhelinnumero
050 502 4639
Sanna Eerilä-Vänni
Director, Partner
Näytä puhelinnumero
+358 50 5024639
Pyydä lisätietoa
