Vuokrataan tuotantotilat, varastotilat, työtilat - Helsinki
Pälkäneentie 13 B, Vallila, Vallila, 00510 Helsinki #10845880
Osoite
Pälkäneentie 13 B, Vallila, 00510 Helsinki
Tilatyyppi
Tuotantotilaa
65 m2
Varastotilaa
65 m2
Työtilaa
65 m2
Yhteensä
65 m2
Kiinteistö
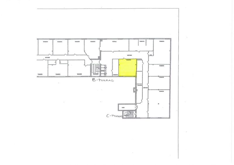
Vuokrataan entisestä Helsingin Teräshuonekalutehdas Oy:n kiinteistöstä 3. kerroksen 65 m²:n varasto/työ/tuotantotila (huone 352). Tilaan johtaa iso avattava taitto-ovi.
Tavarahissi (5000 kg) C-portaan kautta.
Huonekorkeus 3,14 metriä.
Vuokralaisten yhteiskäytössä sosiaalitilat.
Tavarahissi (5000 kg) C-portaan kautta.
Huonekorkeus 3,14 metriä.
Vuokralaisten yhteiskäytössä sosiaalitilat.
Vuokralaisia
Kiinteistössä toimii useita luovanalan yrittäjiä.
Vapautuu
Heti
Energiatehokkuusluokka
Ei lain edellyttämää energiatodistusta
Ota yhteyttä
Comreal Oy LKV
Tuula Leikas
Näytä puhelinnumero
040 531 3722
P.
Näytä puhelinnumero
020 744 1000
Läkkisepänkuja 6, 00620 Helsinki
Comreal Oy on kasvava ja osaava kiinteistöalan palveluntuottaja kiinteistöjen omistajille ja käyttäjille.
Kiinteistö on sijoittajalle hyvä sijoitus vain, jos siellä on tyytyväiset asiakkaat, eli vuokralaiset. Siksi laadukas asiakaspalvelu on toiminnan lähtökohta.
Pyydä lisätietoa
