Vuokrataan toimistotilat - Helsinki
Itämerenkatu 3, Ruoholahti, 00180 Helsinki #10845817
Modernia ja muuntojoustavaa toimistotilaa Ruoholahdessa.
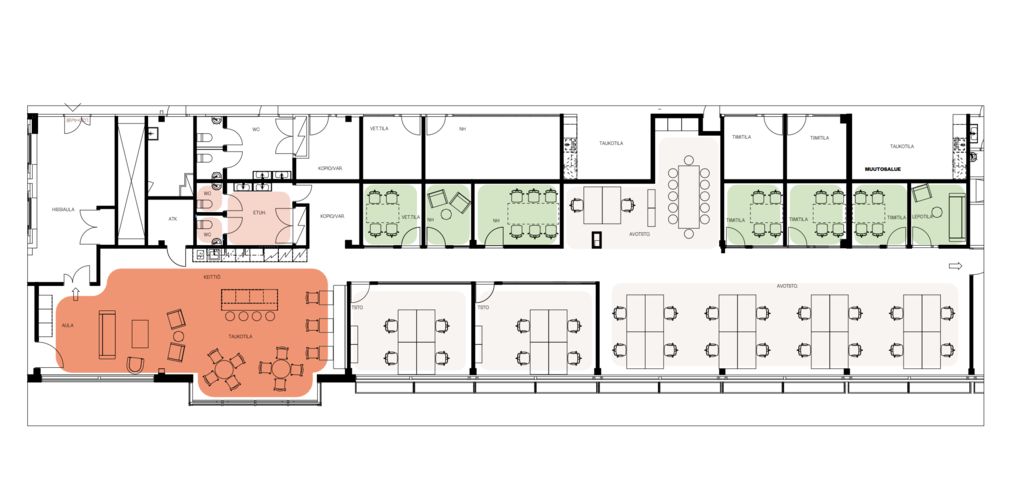
Tämä 329 m² Aina Valmis -tila sijaitsee kiinteistön 5. kerroksessa. Tilassa on avotilaa, toimistohuoneita, tiimi- ja vetäytymistiloja, keittiö/taukotila ja omat wc:t. Vapautuminen 1.2.2026. Kuvat ovat havainnekuvia kiinteistön tiloista.
Itämerenkatu 3 on toimisto- ja liiketilakiinteistö, joka on valmistunut vuonna 1998. Kiinteistö sijaitsee hyvien kulkuyhteyksien varrella, lähellä Ruoholahden metroasemaa. Toimitilat ovat suunniteltavissa ja muokattavissa täysin vuokralaisen tarpeiden mukaan. Kiinteistö saneerattiin vuoden 2019 aikana. Kiinteistössä on lounasravintola, kellarissa on kuntosali, pyöräparkki ja suihkutilat. Vuokrattavaa toimistotilaa löytyy yhteensä 6510 m².
Kysy lisää numerosta 044 723 4700 tai info@bref.fi. Palvelumme on tilanhakijoille ilmainen.
Hissi
Bureau Real Estate Finland Oy
Lars Sonckin kaari 16, 02600 Espoo
Näytä puhelinnumero
0447234700
Bureau Real Estate Finland Oy
https://www.bref.fi