Vuokrataan toimistotilat - Helsinki
Itämerenkatu 3, Ruoholahti, 00180 Helsinki #10845816
Modernia ja muuntojoustavaa toimistotilaa Ruoholahdessa.
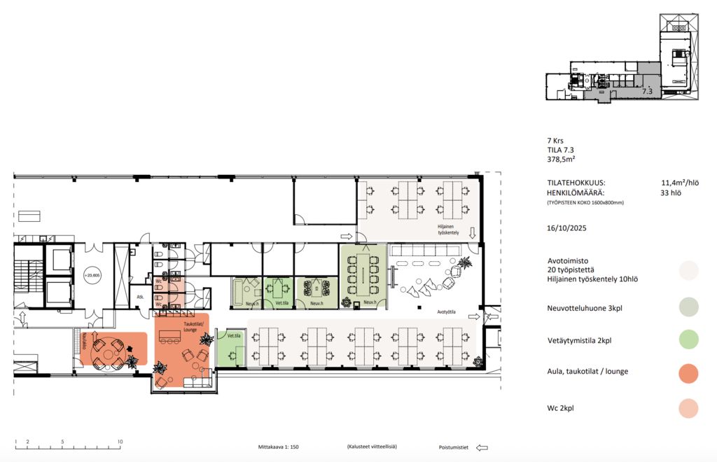
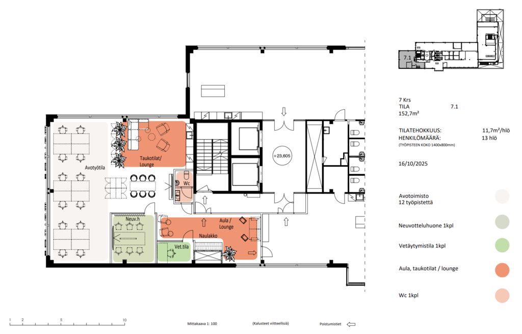
Tämä 757,5 m² toimistotila sijaitsee kiinteistön 7. kerroksessa. Tilassa on avotilaa, neuvotteluhuoneita sekä omat tauko- ja wc-tilat. Toimisto on muuttovalmis. Tila voidaan myös jakaa n. 378,5m², 152m² ja 226m² kokoisiin osiin, jakomahdollisuudet pohjakuvissa.
Itämerenkatu 3 on toimisto- ja liiketilakiinteistö, joka on valmistunut vuonna 1998. Kiinteistö sijaitsee hyvien kulkuyhteyksien varrella, lähellä Ruoholahden metroasemaa. Toimitilat ovat suunniteltavissa ja muokattavissa täysin vuokralaisen tarpeiden mukaan. Kiinteistö saneerattiin vuoden 2019 aikana. Kiinteistössä on lounasravintola, kellarissa on kuntosali, pyöräparkki ja suihkutilat. Vuokrattavaa toimistotilaa löytyy yhteensä 6510m2. Tiloja on mahdollista vuokrata kerroksittain tai yhdistämällä kerroksia.
Kysy lisää numerosta 044 723 4700 tai info@bref.fi. Palvelumme on tilanhakijoille ilmainen.
Bureau Real Estate Finland Oy
Lars Sonckin kaari 16, 02600 Espoo
Näytä puhelinnumero
0447234700
Bureau Real Estate Finland Oy
https://www.bref.fi