Vuokrataan liiketilat - Tuusula
Rykmentintie 8, Hyrylä, 04300 Tuusula #10845810
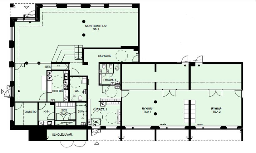
Päiväkoti-/toimistotilaa Tuusulan Hyrylässä.
Tämä 442 m² tila sijaitsee asuinkiinteistön katutasossa. Kahden talon väliin jäävä suojaisa sisäpiha toimii päiväkodin omana piha-alueena. Tila sisältää monitoimitilan/salin, kaksi ryhmätilaa, sosiaali- ja peseytymistilat, keittiön ja toimistohuoneen. Tila on mahdollista ottaa myös toimistokäyttöön. Kokonaisuus voidaan jakaa useammalle käyttäjälle, alkaen 150 m².
Rykmentintie 8 sijaitsee Tuusulan Hyrylässä, lähes 400 asunnon korttelikokonaisuudessa, mikä tarjoaa erinomaisen sijainnin lapsiperheiden keskellä. Autopaikkoja on mahdollista vuokrata viereisestä pysäköintihallista.
Kysy lisää numerosta 050 589 7224 / rony.korsstrom@bref.fi tai 044 723 4700 / info@bref.fi. Palvelumme on tilanhakijoille ilmainen.
Bureau Real Estate Finland Oy
Lars Sonckin kaari 16, 02600 Espoo
Näytä puhelinnumero
0447234700
Bureau Real Estate Finland Oy
https://www.bref.fi