Vuokrataan liiketilat - Tampere
Kullervonkatu 7, Tammela, 33100 Tampere #10845807
Uutta liiketilaa asuintalon kivijalassa, Tampereen Tammelassa.
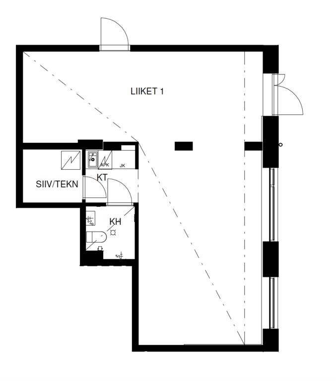
Tämä 59,5 m² liiketila sijaitsee katutasossa. Tila on avonainen, ja siihen kuuluu oma keittiöpiste ja wc-tila. Tila ei sovellu ravintola-, kahvila- tai kampaamotoimintaan. This premise is not suitable for a restaurant or a cafeteria or a barber shop.
Kullervonkatu 7 on uusi asuintalo Tampereen Tammelassa. Alueella on monipuoliset palvelut, kattava valikoima lounasravintoloita, ja se on vilkas asuinalue. Keskusta sijaitsee lyhyen matkan päässä.
Kysy lisää numerosta 044 723 4700 tai info@bref.fi. Palvelumme on tilanhakijoille ilmainen.
Bureau Real Estate Finland Oy
Lars Sonckin kaari 16, 02600 Espoo
Näytä puhelinnumero
0447234700
Bureau Real Estate Finland Oy
https://www.bref.fi