Vuokrataan toimistotilat, liiketilat, näyttelytilat, tuotantotilat, varastotilat, työtilat, toimistohotelli, muut tilat - Vaasa
Myllärinkatu 12, 65100 Vaasa #10845774
Monien mahdollisuuksien toimitila Klemettilässä –vapautuu toukokuun alussa!
Etsitkö tilaa, joka taipuu moneen? Tämä muunneltavissa oleva tilakokonaisuus Klemettilässä. Tarjoaa erinomaiset puitteet niin toimisto-, myynti- kuin asiakaspalvelukäyttöön.
Kokonaispinta-ala yli 1 439 m² joka jaettavissa.
Osoite
Myllärinkatu 12, 65100 Vaasa
Tilatyyppi
Toimistotilaa
600 - 1439 m2
Liiketilaa
600 - 1439 m2
Näyttelytilaa
600 - 1439 m2
Tuotantotilaa
600 - 1439 m2
Varastotilaa
600 - 1439 m2
Työtilaa
600 - 1439 m2
Toimistohotelli
600 - 1439 m2
Muuta tilaa
600 - 1439 m2
Yhteensä
600 - 1439 m2
Tilajako
Jaettavissa
Tilaa on tarpeen vaatiessa mahdollisuus jakaa kahteen eri osaan jolloin kumpaankin tilaan tulisi myös parvi sekä kellaritilaa.
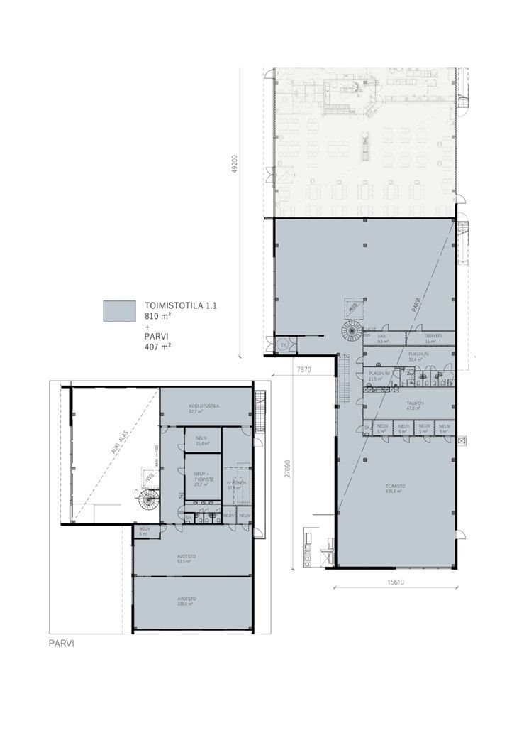
Pohjapiirros
Kiinteistö
Koostuu kokonaisuudesta: 1krs 810m², parvi 407m², sekä kellaritila noin 382m².
Valoisat avarat tilat sisältävät:
• Valoisat toimistotilat ja neuvotteluhuoneet
• Avara parvitila tiimipalavereihin, esittelyihin tai ideointiin
• Kellaritila, joka toimii erinomaisesti lisäneuvottelutilana tai rauhallisena työpisteenä
Pohjaratkaisua voidaan muokata käyttötarpeesi mukaan – yhdistä vaikka myymälä ja oma toimistokokonaisuus saman katon alle!
Sopii erinomaisesti myös Call center toimintaan
Valoisat avarat tilat sisältävät:
• Valoisat toimistotilat ja neuvotteluhuoneet
• Avara parvitila tiimipalavereihin, esittelyihin tai ideointiin
• Kellaritila, joka toimii erinomaisesti lisäneuvottelutilana tai rauhallisena työpisteenä
Pohjaratkaisua voidaan muokata käyttötarpeesi mukaan – yhdistä vaikka myymälä ja oma toimistokokonaisuus saman katon alle!
Sopii erinomaisesti myös Call center toimintaan
Sijainti
Pihassa parkkitilaa myös asiakkaille 📍 Helppo saavutettavuus – Klemettilän keskeinen sijainti, sujuvat kulkuyhteydet
Pysäköinti
Parkkitilaa löytyy hyvin kohteen läheisyydessä
Muuta
Huom!
Kysy myös muista pian vapautuvista liiketiloista niin saat mahdollisuuden tutustua niihin rauhassa ennen muita hyvissä ajoin. Autamme etsimään sopivan tilan juuri teidän yrityksenne tarpeisiin.
Myös muita vapautuvia toimitiloja tulossa 2026 alkupuolella.
Kerro millaisia tiloja etsitte, niin voidaan sopia näytöstä!
Katso myös muut vapaat toimitilat www.reperkka.fi
Reperkka Oy Pasi Paalanen
Kysy myös muista pian vapautuvista liiketiloista niin saat mahdollisuuden tutustua niihin rauhassa ennen muita hyvissä ajoin. Autamme etsimään sopivan tilan juuri teidän yrityksenne tarpeisiin.
Myös muita vapautuvia toimitiloja tulossa 2026 alkupuolella.
Kerro millaisia tiloja etsitte, niin voidaan sopia näytöstä!
Katso myös muut vapaat toimitilat www.reperkka.fi
Reperkka Oy Pasi Paalanen
Vapautuu
2026 toukokuu
Rakennusvuosi
2011
Jaettavissa
Ota yhteyttä
Pyydä lisätietoa
