Uudiskohde
Vuokrataan liiketilat, näyttelytilat - Helsinki
Bertha Pauligin Katu 7, Vuosaari, 00990 Helsinki #10845737
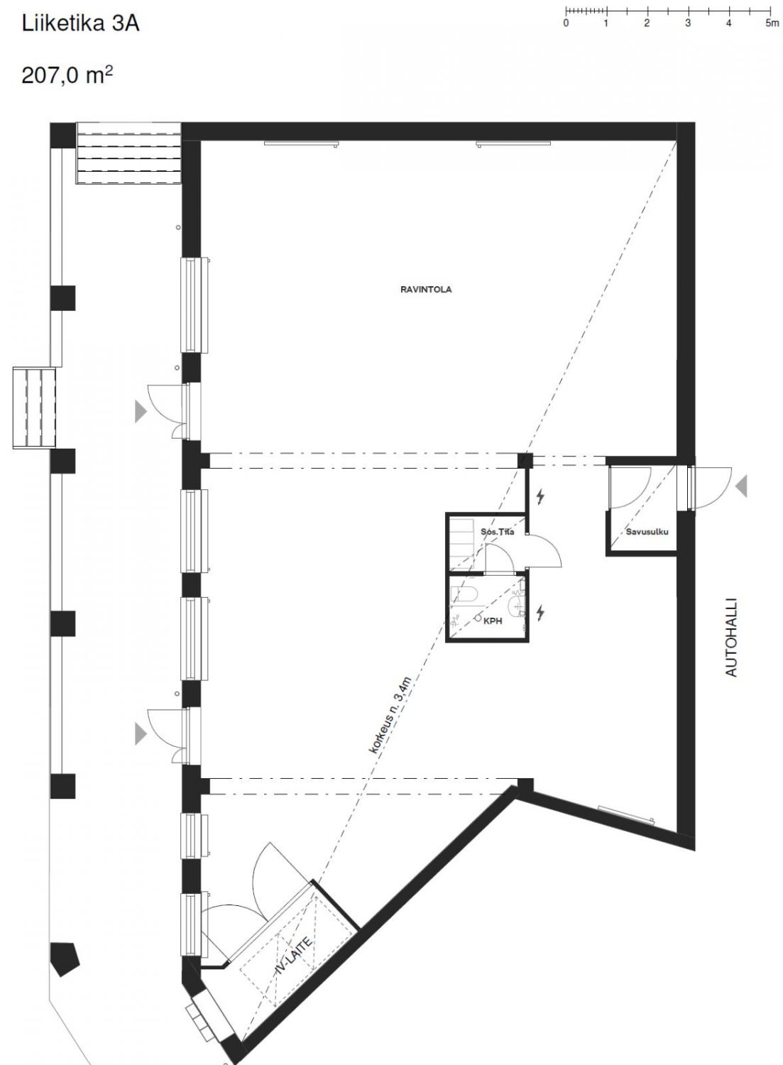
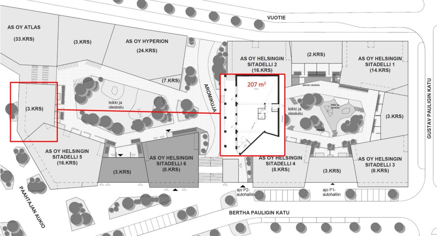
Vuokrataan Helsingin Vuosaaresta katutason 207 m² liiketila. Tämä kohde sijaitsee kasvavalla alueella, näyttävän tornitalon kivijalassa.
Tilaan on kaksi sisäänkäyntiä, pääsisäänkäynti kadulta sekä toinen käynti autohallista.
Kysy rohkeasti lisätietoja ja sovitaan käynti kohteella jo tänään!
Osoite
Bertha Pauligin Katu 7, 00990 Helsinki
Tilatyyppi
Liiketilaa
207 m2
Näyttelytilaa
207 m2
Yhteensä
207 m2
Kiinteistö
As Oy Helsingin Sitadelli 5
Vapautuu
Kysy
Rakennusvuosi
2025 (uudiskohde)
Uudiskohde
Katutasossa
Ota yhteyttä
Hausala Oy
Mika Savikko
Näytä puhelinnumero
050 472 7077
Mikko Ranta
Näytä puhelinnumero
050 360 6500
Pyydä lisätietoa
