Uudiskohde
Vuokrataan liiketilat - Helsinki
Bertha Pauligin Katu 5, Vuosaari, 00990 Helsinki #10845736
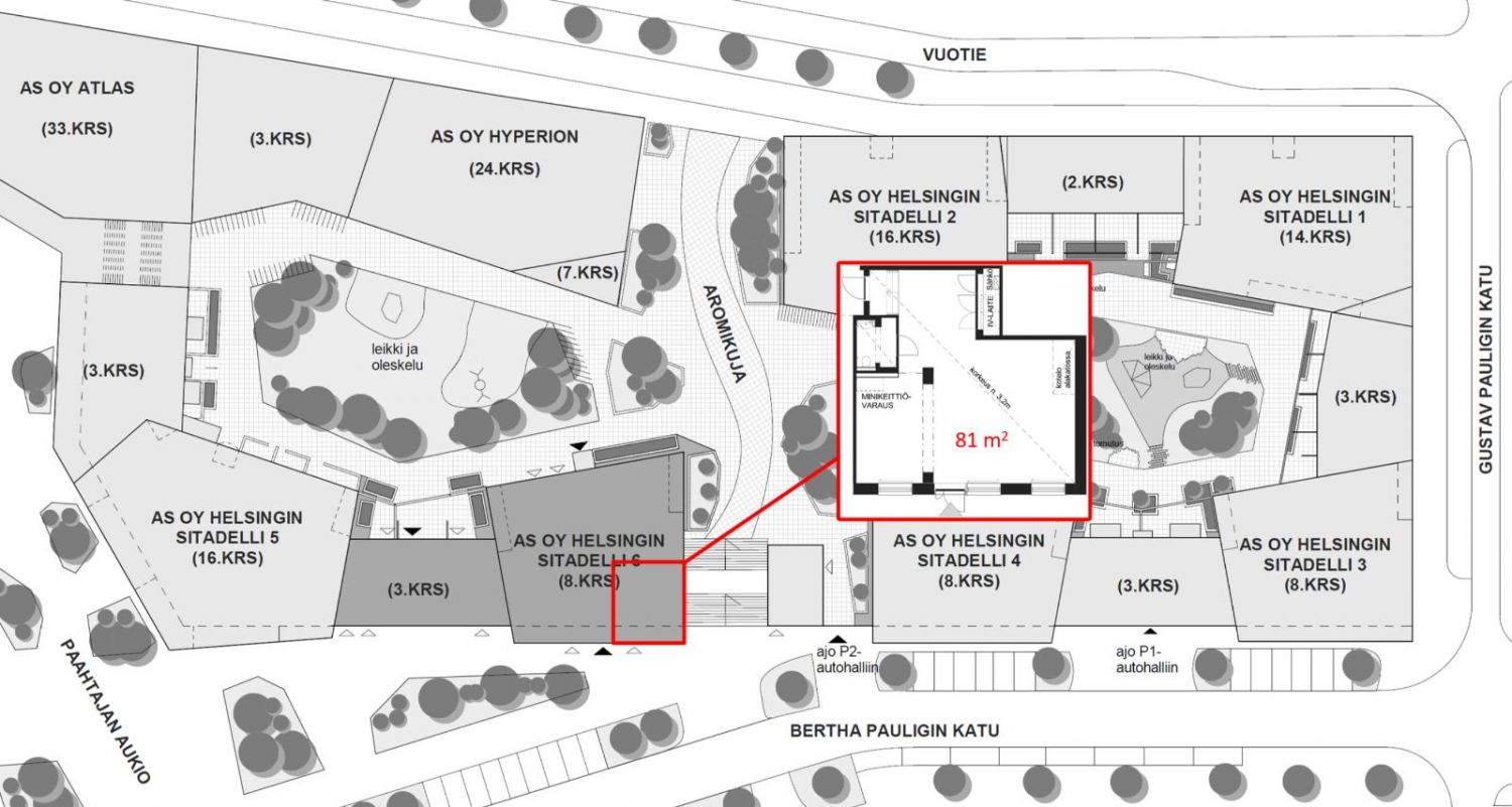
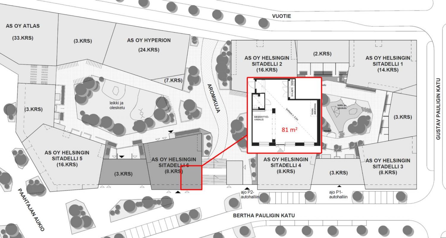
Vuokrataan Helsingin Vuosaaresta katutason 81 m² liiketila, LH 2.
Kohde on juuri valmistunut! Sitadelli 6 on 6. kerroksinen asuinkerrostalo 16. kerroksisen tornitalon viereltä alueella, mikä kehittyy ja kasvaa koko ajan. Tule varaamaan toimitilasi kasvun keskeltä.
Kysy rohkeasti lisätietoja ja sovitaan käynti kohteella jo tänään!
Osoite
Bertha Pauligin Katu 5, 00990 Helsinki
Tilatyyppi
Liiketilaa
81 m2
Kiinteistö
As Oy Helsingin Sitadelli 6
Vapautuu
Kysy
Rakennusvuosi
2025 (uudiskohde)
Uudiskohde
Katutasossa
Ota yhteyttä
Hausala Oy
Erkkilänkatu 11, 33100 Tampere
Näytä puhelinnumero
050 472 7077
Mika Savikko
Näytä puhelinnumero
050 472 7077
Mikko Ranta
Näytä puhelinnumero
050 360 6500
Pyydä lisätietoa
