Vuokrataan toimistotilat - Espoo
Revontulentie 7, Tapiola, 02100 Espoo #10845735
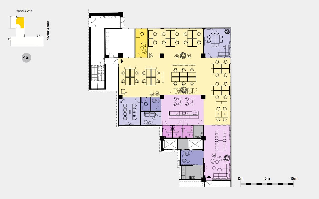
Tapiolan Helmi - Toimisto 459,5 m²
Osoite
Revontulentie 7, 02100 Espoo
Tilatyyppi
Toimistotilaa
460 m2
Pohjapiirros
Kiinteistö
Moderni ja helposti saavutettavissa oleva katutason monitilatoimisto tarjoaa 459 neliömetriä tehokasta työskentelytilaa, jonne saa sijoitettua 37 työpistettä. Tilassa on kaksi neuvotteluhuonetta, kolme vetäytymistilaa sekä viihtyisä cafe/lounge-alue, joka kutsuu rentoutumaan tai työskentelemään rennommin. Ikkunat avautuvat kahteen ilmansuuntaan, tuoden tilaan runsaasti luonnonvaloa. Toimisto remontoidaan käyttäjän tarpeiden mukaan, joten se muuntautuu joustavasti juuri sinun tiimillesi sopivaksi.
Tapiolan Helmi
Tapiolan Helmi on 70-luvun ajatonta designia henkivä toimitilakohde, joka hurmaa sielukkaalla arkkitehtuurillaan ja rauhallisella sijainnillaan. Ikkunoista avautuvat vehreät näkymät Tapiolan puistomaisiin maisemiin, ja rakennuksen sisälle kätkeytyy tunnelmallisia ja toimivia toimitiloja sekä huippuluokan palveluita, jotka tukevat työviihtyvyyttä ja arjen sujuvuutta.
Sijainti
Tapiolan Helmi sijaitsee merellisessä Tapiolassa osoitteessa Revontulentie 7, Länsimetron varrella, Keilaniemen ja Otaniemen naapurissa. Metroasema ja Tapiolan keskuksen palvelut ovat lyhyen kävelymatkan päässä. Kohteeseen on helppo saapua myös pyörällä: lämmin pyöräparkki sekä suihku- ja pukeutumistilat tukevat työmatkapyöräilyä. Autoilijoille on tarjolla rajattu määrä pysäköintipaikkoja, joista osa on varustettu sähköautojen latauspisteillä. Lisäksi henkilöstölle on saatavilla lisäpaikkoja läheisestä pysäköintihallista, ja vieraspysäköinti löytyy kiinteistön omalta pihalta.
Palvelut
Helmen kattava palveluvalikoima tekee arjesta sujuvaa ja työpäivistä miellyttäviä. Rakennuksesta löytyy modernisti varusteltuja neuvotteluhuoneita eri kokoisiin tapaamisiin sekä viihtyisä auditorio suurempia tilaisuuksia varten. Aulapalvelu huolehtii vieraiden vastaanotosta ja arjen asioiden sujuvuudesta. Lounasravintola Food & Co. tarjoaa päivittäin käsityönä valmistettuja Nordic Buffet -lounaita, ja talon oma kahvila täydentää tarjonnan tuoreella salaattibaarillaan. Catering-palvelu huolehtii maistuvista kokoustarjoiluista.
Hyvinvointi on olennainen osa Helmen arkea. Kiinteistössä on kuntosali, uima-allas ja liikuntatilat, jotka mahdollistavat energisoivan tauon työpäivän lomassa. Vehreä ympäristö ja meren läheisyys mahdollistavat esimerkiksi merenrantaan suuntautuvat kävelypalaverit.
Vastuullisuus
Tapiolan Helmi on vastuullinen toimitilakohde, jolla on BREEAM In-Use Very Good -ympäristösertifikaatti. Kiinteistön suunnittelussa ja ylläpidossa on huomioitu ekologisuus, energiatehokkuus ja käyttäjien hyvinvointi. Tämä tekee Helmestä kestävän ja houkuttelevan valinnan yrityksille, jotka arvostavat vastuullisuutta osana liiketoimintaansa.
Ota yhteyttä
Kiinnostuitko? Ota yhteyttä ja tule tutustumaan tiloihin!
Toimitilavälityspalvelumme on tilanhakijalle maksuton.
Tapiolan Helmi
Tapiolan Helmi on 70-luvun ajatonta designia henkivä toimitilakohde, joka hurmaa sielukkaalla arkkitehtuurillaan ja rauhallisella sijainnillaan. Ikkunoista avautuvat vehreät näkymät Tapiolan puistomaisiin maisemiin, ja rakennuksen sisälle kätkeytyy tunnelmallisia ja toimivia toimitiloja sekä huippuluokan palveluita, jotka tukevat työviihtyvyyttä ja arjen sujuvuutta.
Sijainti
Tapiolan Helmi sijaitsee merellisessä Tapiolassa osoitteessa Revontulentie 7, Länsimetron varrella, Keilaniemen ja Otaniemen naapurissa. Metroasema ja Tapiolan keskuksen palvelut ovat lyhyen kävelymatkan päässä. Kohteeseen on helppo saapua myös pyörällä: lämmin pyöräparkki sekä suihku- ja pukeutumistilat tukevat työmatkapyöräilyä. Autoilijoille on tarjolla rajattu määrä pysäköintipaikkoja, joista osa on varustettu sähköautojen latauspisteillä. Lisäksi henkilöstölle on saatavilla lisäpaikkoja läheisestä pysäköintihallista, ja vieraspysäköinti löytyy kiinteistön omalta pihalta.
Palvelut
Helmen kattava palveluvalikoima tekee arjesta sujuvaa ja työpäivistä miellyttäviä. Rakennuksesta löytyy modernisti varusteltuja neuvotteluhuoneita eri kokoisiin tapaamisiin sekä viihtyisä auditorio suurempia tilaisuuksia varten. Aulapalvelu huolehtii vieraiden vastaanotosta ja arjen asioiden sujuvuudesta. Lounasravintola Food & Co. tarjoaa päivittäin käsityönä valmistettuja Nordic Buffet -lounaita, ja talon oma kahvila täydentää tarjonnan tuoreella salaattibaarillaan. Catering-palvelu huolehtii maistuvista kokoustarjoiluista.
Hyvinvointi on olennainen osa Helmen arkea. Kiinteistössä on kuntosali, uima-allas ja liikuntatilat, jotka mahdollistavat energisoivan tauon työpäivän lomassa. Vehreä ympäristö ja meren läheisyys mahdollistavat esimerkiksi merenrantaan suuntautuvat kävelypalaverit.
Vastuullisuus
Tapiolan Helmi on vastuullinen toimitilakohde, jolla on BREEAM In-Use Very Good -ympäristösertifikaatti. Kiinteistön suunnittelussa ja ylläpidossa on huomioitu ekologisuus, energiatehokkuus ja käyttäjien hyvinvointi. Tämä tekee Helmestä kestävän ja houkuttelevan valinnan yrityksille, jotka arvostavat vastuullisuutta osana liiketoimintaansa.
Ota yhteyttä
Kiinnostuitko? Ota yhteyttä ja tule tutustumaan tiloihin!
Toimitilavälityspalvelumme on tilanhakijalle maksuton.
Vapautuu
Kysy
Kerros
1
Ota yhteyttä
Logistila Oy
Kylätie 11-13, 00320 HELSINKI
Karoliina Turppo
Näytä puhelinnumero
050 345 3258
Pyydä lisätietoa
