Vuokrataan toimistotilat - Helsinki
Salomonkatu 7-9, Kamppi, 00100 Helsinki #10845715
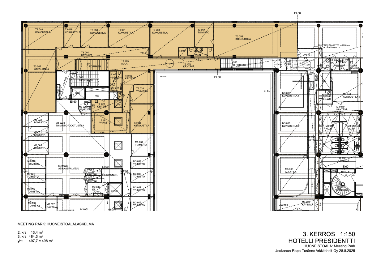
Tyylikäs, toisen kerroksen 498 m² toimisto omalla sisäänkäynnillä, Kampin sydämestä Salomonkadulta.
Osoite
Salomonkatu 7-9, 00100 Helsinki
Tilatyyppi
Toimistotilaa
498 m2
Pohjapiirros
Kiinteistö
Tämä avara 498 m²:n toimitila sijaitsee rakennuksen toisessa kerroksessa, mutta tarjoaa oman sisäänkäynnin suoraan katutasosta, mikä yhdistää näkyvyyden ja vaivattoman saavutettavuuden poikkeuksellisella tavalla.
Korkeat huoneet ja runsas ikkunapinta-ala tuovat tilaan valoa ja avaruutta, luoden inspiroivat ja miellyttävät puitteet työskentelylle tai asiakaspalvelulle.
Sijainti on erittäin houkutteleva: tila avautuu näkyvälle kulmapaikalle Kampin keskusta vastapäätä, kaupungin vilkkaimmassa ja vetovoimaisimmassa ympäristössä. Metroasema, bussiterminaali ja rautatieasema ovat kaikki kävelyetäisyydellä, ja talon oma parkkihalli mahdollistaa vaivattoman saapumisen myös autolla.
Korkeat huoneet ja runsas ikkunapinta-ala tuovat tilaan valoa ja avaruutta, luoden inspiroivat ja miellyttävät puitteet työskentelylle tai asiakaspalvelulle.
Sijainti on erittäin houkutteleva: tila avautuu näkyvälle kulmapaikalle Kampin keskusta vastapäätä, kaupungin vilkkaimmassa ja vetovoimaisimmassa ympäristössä. Metroasema, bussiterminaali ja rautatieasema ovat kaikki kävelyetäisyydellä, ja talon oma parkkihalli mahdollistaa vaivattoman saapumisen myös autolla.
Vapautuu
Heti
Rakennusvuosi
1980
Kerros
2
Energiatehokkuusluokka
Ei lain edellyttämää energiatodistusta
Ota yhteyttä
ScanReal Oy LKV
Opus Business Park
Hitsaajankatu 24
00810 Helsinki
info@scanreal.fi
Puh:
Näytä puhelinnumero
020 730 8830
Sopivat toimitilat yhdellä otolla!
Kartoitamme toimitilatarpeesi ja etsimme yrityksellesi parhaiten sopivat vapaat toimitilat. Koska vuokranantajat maksavat palvelumme, on tämä yrityksellesi veloituksetonta.
Palvelumme on tilanhakijalle ilmainen
Pyydä lisätietoa
