Vuokrataan toimistotilat - Espoo
Miestentie 7, Keilaniemi, 02150 Espoo #10845611
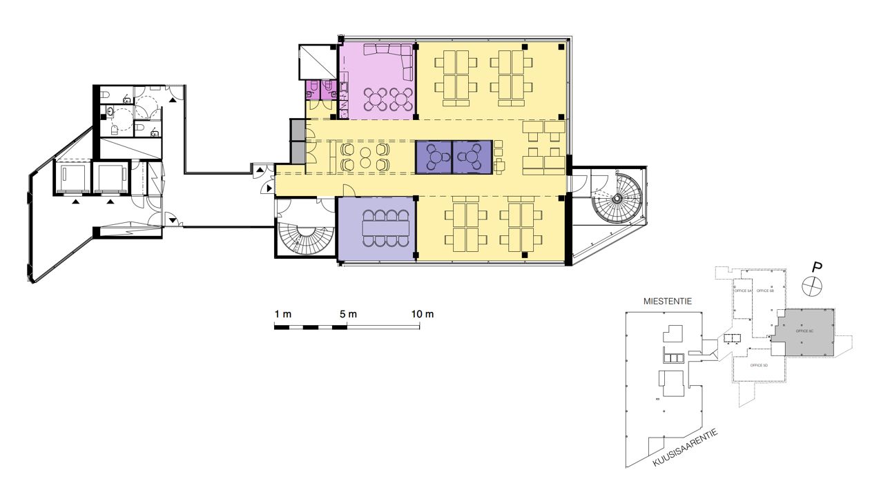
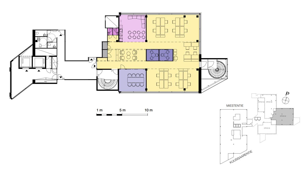
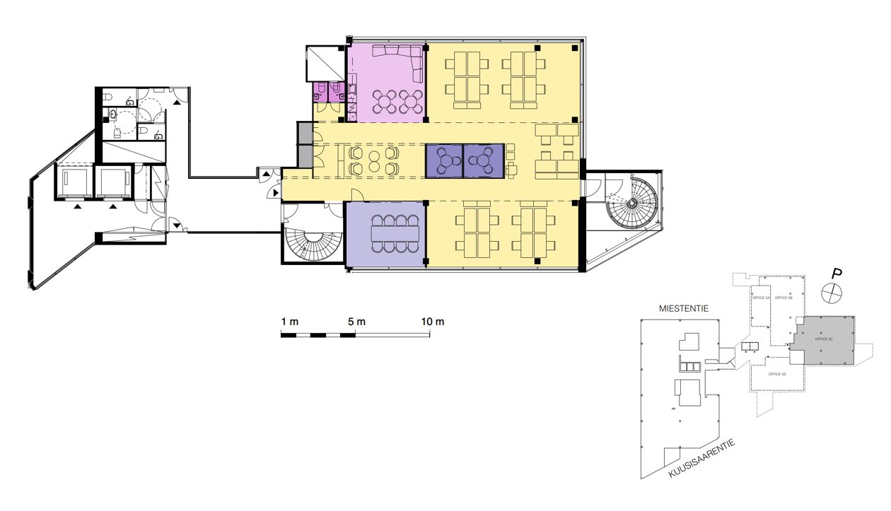
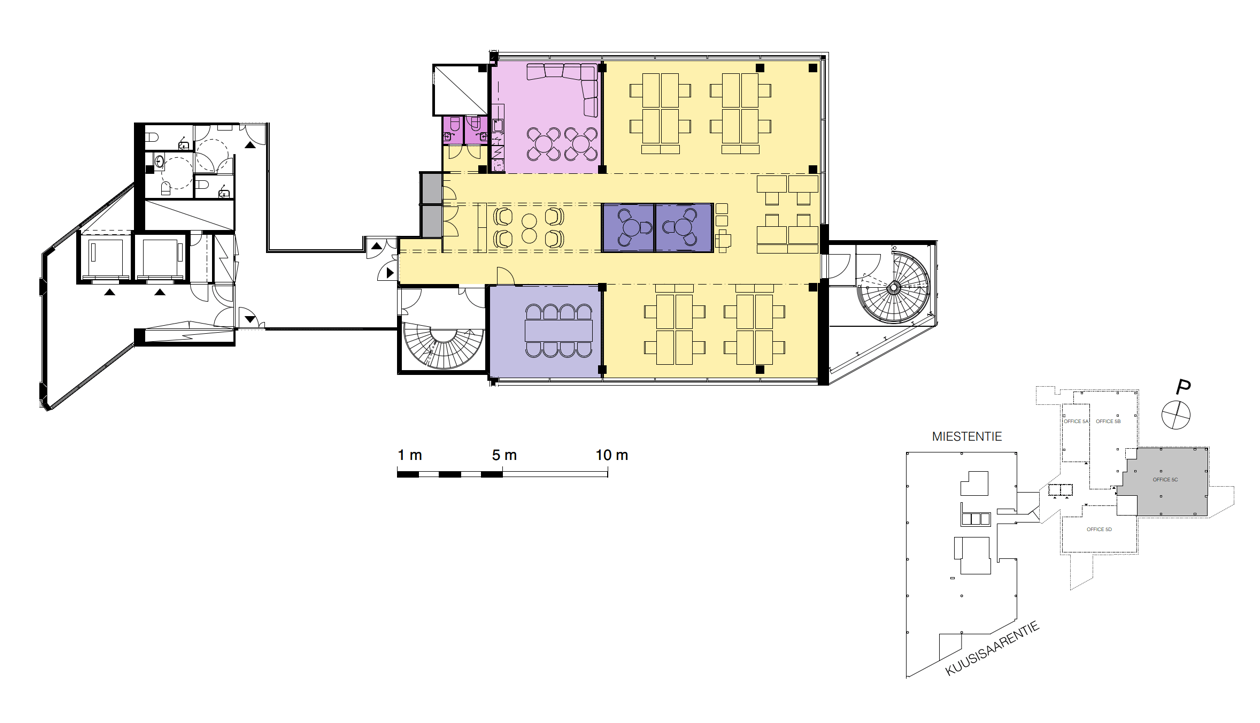
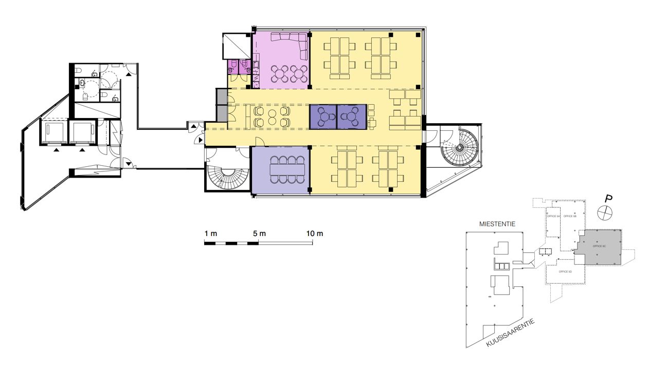
Swing House - C-talo - Toimisto 297,5 m²
Osoite
Miestentie 7, 02150 Espoo
Tilatyyppi
Toimistotilaa
298 m2
Pohjapiirros
Kiinteistö
Valoisa ja tyylikäs toimistotila sijaitsee 5. kerroksessa, tarjoten erinomaiset puitteet tehokkaaseen työskentelyyn ja viihtyisään yhteistyöhön. Tilassa on neuvotteluhuone, kaksi pienempää palaverihuonetta, lounge-alue, working café sekä avotilaa, jossa noin 20 työpistettä. Ikkunoista avautuvat upeat näkymät merelle Kuusisaaren suuntaan sekä vilkkaalle Miestentielle.
Swing House – Viiden tähden työympäristö Keilaniemessä
Sijainti, joka yhdistää kaiken
Swing House sijaitsee Espoon Keilaniemessä, aivan pääkaupunkiseudun liikenneyhteyksien solmukohdassa.
Metro ja Raide-Jokeri: Sisäänkäynnille vain 200 metriä
Autoilijat: Parkkihalli ja pihapysäköinti, osa paikoista sähköautojen latauksella
Pyöräilijät: Oma ramppi pyörätieltä lämpimään pyöräparkkiin, suihku- ja pukeutumistilat
Lentokentälle pääsee autolla noin 25 minuutissa, ja hotelliyhteys tekee kansainvälisten vieraiden vierailusta mutkatonta
Palvelut, jotka tekevät arjesta sujuvaa
Swing House tarjoaa kattavat palvelut saman katon alla:
Vihreä ja vastuullinen lounasravintola, joka valmistaa ruokansa käsityönä kotimaisista raaka-aineista
Aulapalvelu ja tyylikäs lounge
Modernit kokous- ja neuvottelutilat laadukkaalla cateringilla
Ylimmän kerroksen muunneltavat tilat valmennuksiin ja tapahtumiin, suora yhteys kattoterassille
Liikunta- ja hyvinvointitilat sekä valoisa kuntosali
Vastuullisuus ja hyvinvointi edellä
Swing House on WELL Platinum -sertifioitu kohde, jossa jokainen yksityiskohta tukee työhyvinvointia ja kestävää kehitystä:
Koko talon korkuinen viherseinä ja luonnonvaloa tulvivat tilat
Rauhoittava äänimaisema ja muuntuva valaistus portaikossa
Aidot materiaalit, graafinen betoni ja corten-teräs yhdistettynä vehreään sisustukseen
Kiinteistö tarjoaa joustavat tilaratkaisut yritysten yksilöllisiin tarpeisiin ja kasvun mahdollisuuksiin
Ota yhteyttä
Kiinnostuitko? Ota yhteyttä ja tule tutustumaan tiloihin!
Toimitilavälityspalvelumme on tilanhakijalle maksuton.
Swing House – Viiden tähden työympäristö Keilaniemessä
Sijainti, joka yhdistää kaiken
Swing House sijaitsee Espoon Keilaniemessä, aivan pääkaupunkiseudun liikenneyhteyksien solmukohdassa.
Metro ja Raide-Jokeri: Sisäänkäynnille vain 200 metriä
Autoilijat: Parkkihalli ja pihapysäköinti, osa paikoista sähköautojen latauksella
Pyöräilijät: Oma ramppi pyörätieltä lämpimään pyöräparkkiin, suihku- ja pukeutumistilat
Lentokentälle pääsee autolla noin 25 minuutissa, ja hotelliyhteys tekee kansainvälisten vieraiden vierailusta mutkatonta
Palvelut, jotka tekevät arjesta sujuvaa
Swing House tarjoaa kattavat palvelut saman katon alla:
Vihreä ja vastuullinen lounasravintola, joka valmistaa ruokansa käsityönä kotimaisista raaka-aineista
Aulapalvelu ja tyylikäs lounge
Modernit kokous- ja neuvottelutilat laadukkaalla cateringilla
Ylimmän kerroksen muunneltavat tilat valmennuksiin ja tapahtumiin, suora yhteys kattoterassille
Liikunta- ja hyvinvointitilat sekä valoisa kuntosali
Vastuullisuus ja hyvinvointi edellä
Swing House on WELL Platinum -sertifioitu kohde, jossa jokainen yksityiskohta tukee työhyvinvointia ja kestävää kehitystä:
Koko talon korkuinen viherseinä ja luonnonvaloa tulvivat tilat
Rauhoittava äänimaisema ja muuntuva valaistus portaikossa
Aidot materiaalit, graafinen betoni ja corten-teräs yhdistettynä vehreään sisustukseen
Kiinteistö tarjoaa joustavat tilaratkaisut yritysten yksilöllisiin tarpeisiin ja kasvun mahdollisuuksiin
Ota yhteyttä
Kiinnostuitko? Ota yhteyttä ja tule tutustumaan tiloihin!
Toimitilavälityspalvelumme on tilanhakijalle maksuton.
Vapautuu
Kysy
Kerros
5
Ota yhteyttä
Logistila Oy
Kylätie 11-13, 00320 HELSINKI
Karoliina Turppo
Näytä puhelinnumero
050 345 3258
Pyydä lisätietoa
