Vuokrataan - Lahti
KOY Karistonkadun Talliosake 3 TUOTANTOTILA 25, Karistonkatu 6, 15160 Lahti #10845584
UUTTA TUOTANTOTILAA VUOKRATTAVANA tammikuussa 2026! KOY Karistonkadun Talliosakkeelta monikäyttöinen ja valoisa tuotantotila 25.
Osoite
Karistonkatu 6, 15160 Lahti
Vuokra
1230 € / kk
Kiinteistö
KOY Karistonkadun Talliosake 3
Sijainti
Karistonkadun Talliosake 3 tulee sijaitsemaan Valtateiden E75 ja 12 liittymäalueella. Matkaa Lahden keskustan Matkakeskukseen 4 km, kauppakeskus Karismaan 2 km ja Eteläisen ohitustietä Launeelle 5 km. Sijainti ja tilat palvelevat niin kuluttaja- kuin yritysasiakkaita.
Muuta
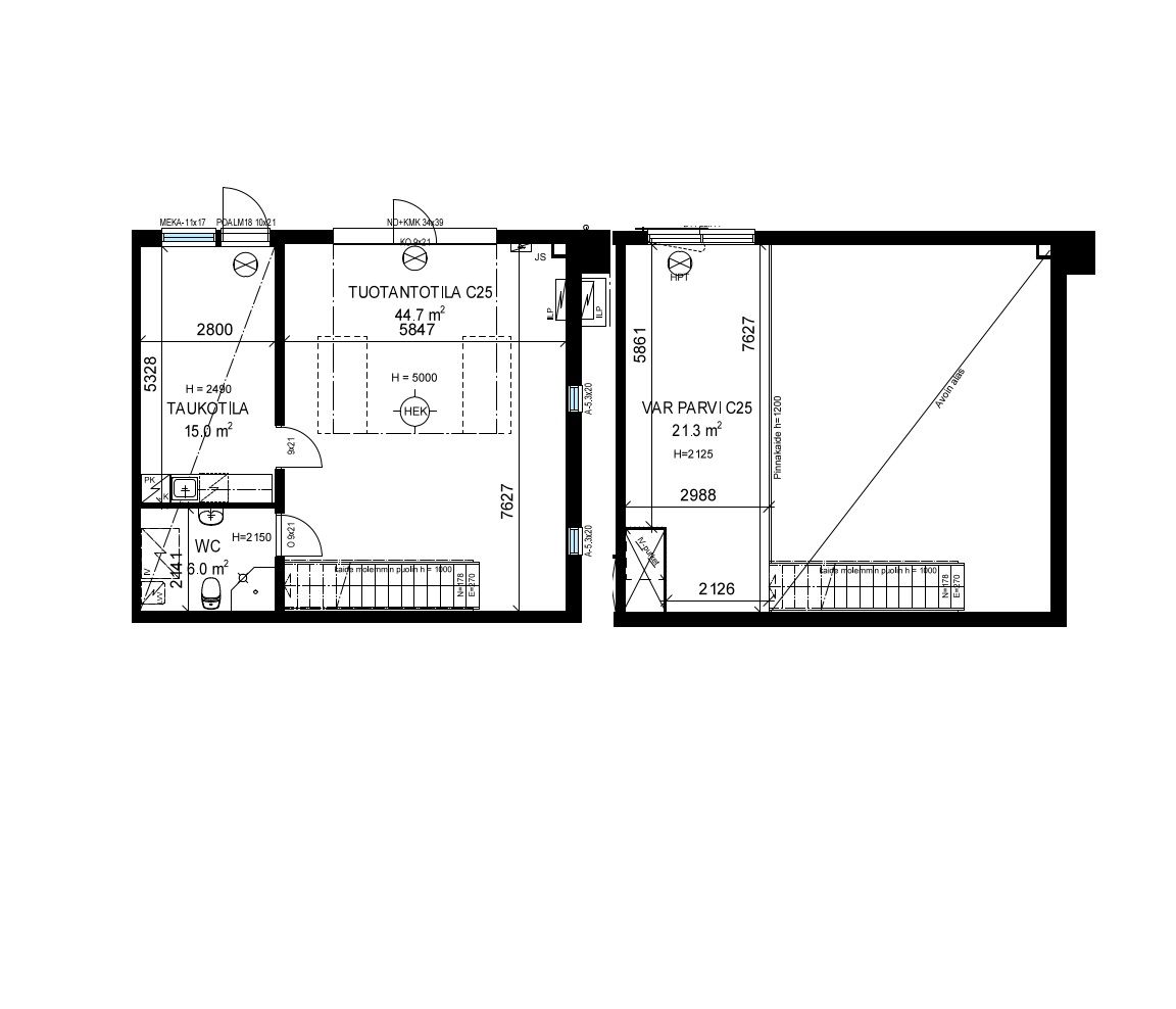
Tilassa parvi. Tilan lattiapinta-ala on 66 m² ja parven 21 m². Yhteispinta-ala 87 m². Varsinaisen hallin lisäksi tilasta löytyy keittiö- / taukotila sekä valmiit sosiaali-, suihku- / wc-tilat ja avointa parvitilaa. Koneellisella ilmanvaihdolla varustettu tuotantotila soveltuu päivittäiseen työskentelyyn.
Tila on sähkölämmitteinen. Vuokralainen tekee tilaan oman sähkösopimuksen. Vesi- ja sähkömaksu kulutuksen mukaan. Vakuus kahden kuukauden vuokraa vastaava määrä. Haetaan pitkäaikaista vuokralaista. Luottotiedot tarkistetaan.
Moottoroitu nosto-ovi erillisellä käyntiovella. Autolla sisään ajettava tila. Tilamitat: 7,62 (Pituus) 5,84 (Leveys) 5,00 (Korkeus). Ovimitat: 3,40 (Leveys) 3,90 (Korkeus).
Sisäkuvat toistaiseksi viitteelliset.
Käyttötarkoitusesimerkkejä:
- toimitila
- varastotila
- kimppatalli
- yrityksen työtarvikevarasto / kalustovarasto
Tilat eivät sovellu ammattimaiseen autopesula- tai autokorjaamokäyttöön.
Tila on sähkölämmitteinen. Vuokralainen tekee tilaan oman sähkösopimuksen. Vesi- ja sähkömaksu kulutuksen mukaan. Vakuus kahden kuukauden vuokraa vastaava määrä. Haetaan pitkäaikaista vuokralaista. Luottotiedot tarkistetaan.
Moottoroitu nosto-ovi erillisellä käyntiovella. Autolla sisään ajettava tila. Tilamitat: 7,62 (Pituus) 5,84 (Leveys) 5,00 (Korkeus). Ovimitat: 3,40 (Leveys) 3,90 (Korkeus).
Sisäkuvat toistaiseksi viitteelliset.
Käyttötarkoitusesimerkkejä:
- toimitila
- varastotila
- kimppatalli
- yrityksen työtarvikevarasto / kalustovarasto
Tilat eivät sovellu ammattimaiseen autopesula- tai autokorjaamokäyttöön.
Vapautuu
01.01.2026
Katutasossa
Ota yhteyttä
Talliosake Oy
Jaakko Laitinen
Aluemyyntipäällikkö,
Itä- ja Keski – Suomi, Päijät-Häme
Näytä puhelinnumero
040 903 0706
Pyydä lisätietoa
