Vuokrataan liiketilat - Helsinki
Tammiontie 4, Maunula, 00630 Helsinki #10845526
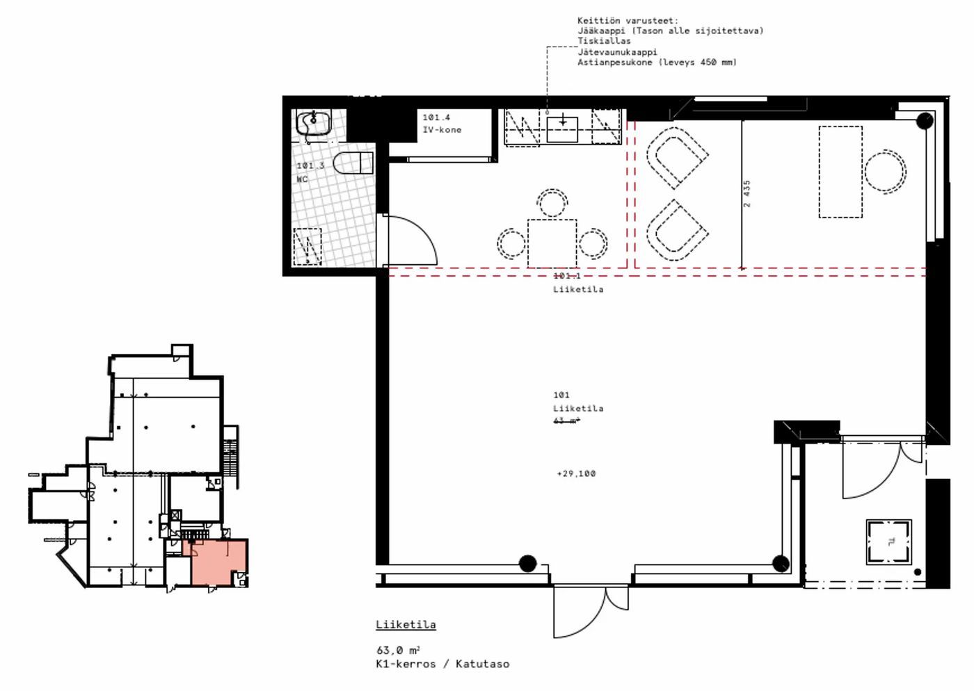
Vuokrattavana 63 m2 katutason liiketila.
Tammiontie 4 on helmikuussa 2024 valmistunut asuinkiinteistö, jonka kivijalassa on vuokrattavaa liiketilaa. Kiinteistö sijaitsee hyvien yhteyksien äärellä Maunulassa.
Lisätiedot ja kohde-esittelyt 020 7290 710, lisää kohteita premises.fi
Kohteella ei ole lain edellyttämää energiatodistusta tai energialuokka ei tiedossa.Kerros: 1
Osoite
Tammiontie 4, 00630 Helsinki
Tilatyyppi
Liiketilaa
63 m2
Ota yhteyttä
CRE PREMISES
Puh. Näytä puhelinnumero 020 7290 710
Vantaankoskentie 14
01670 VANTAA
Pyydä lisätietoa
