Vuokrataan toimistotilat - Espoo
Miestentie 7, Keilaniemi, 02150 Espoo #10845489
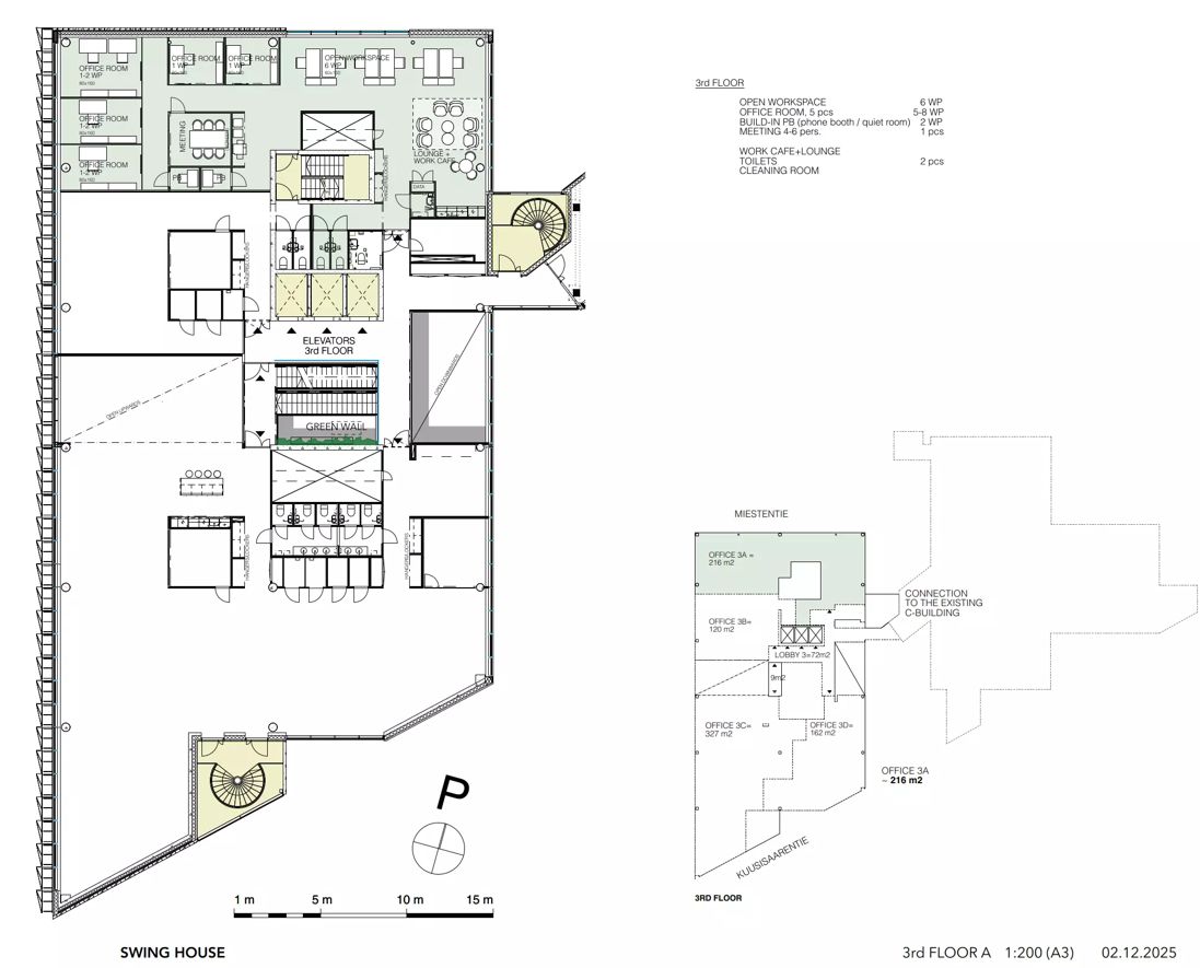
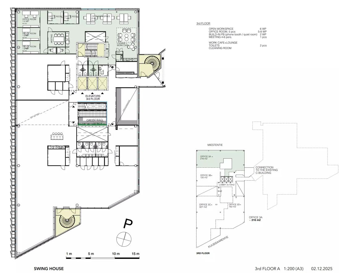
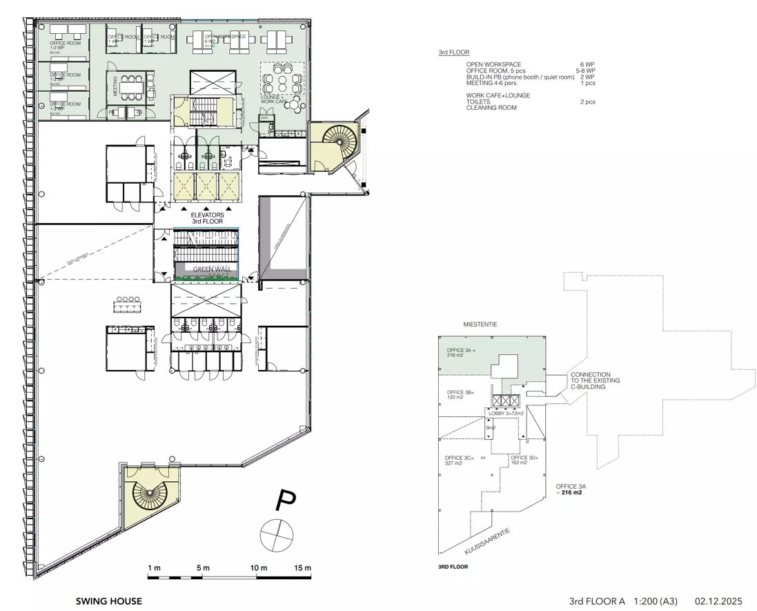
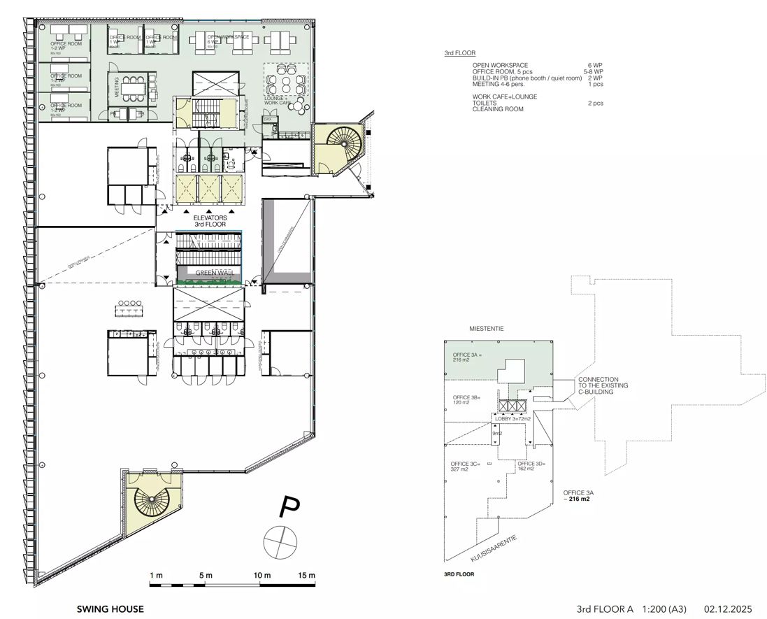
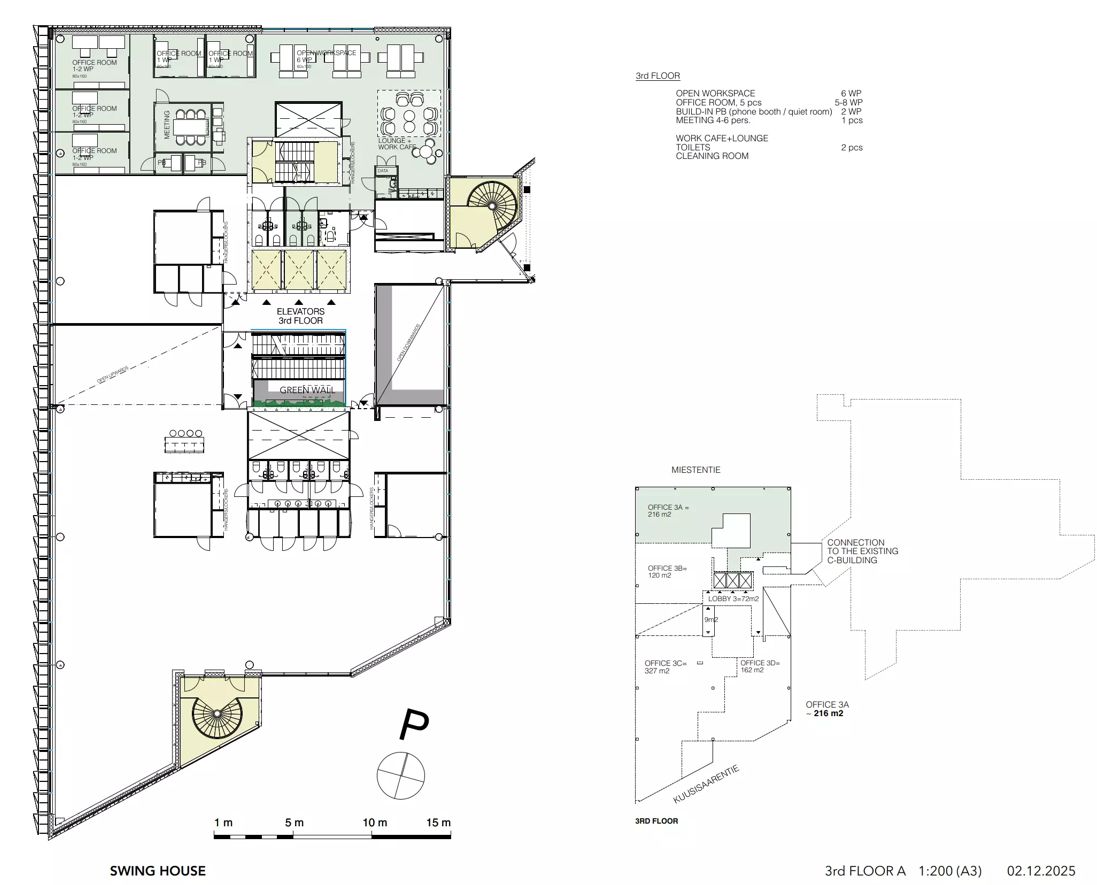
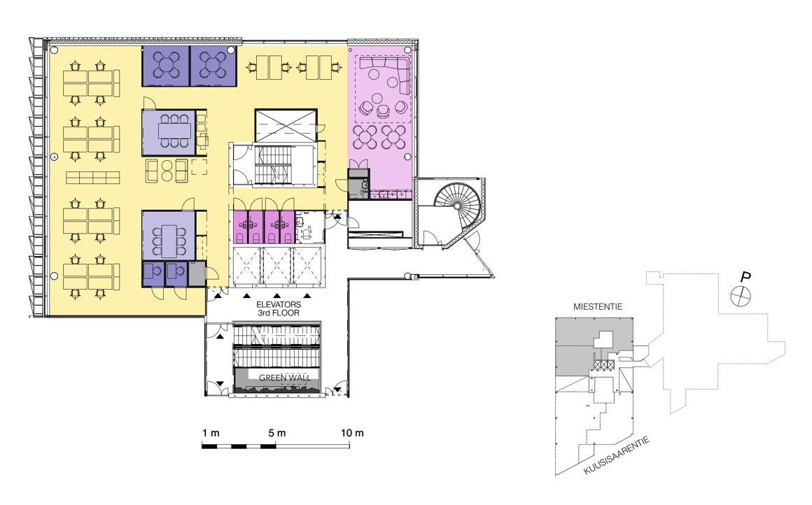
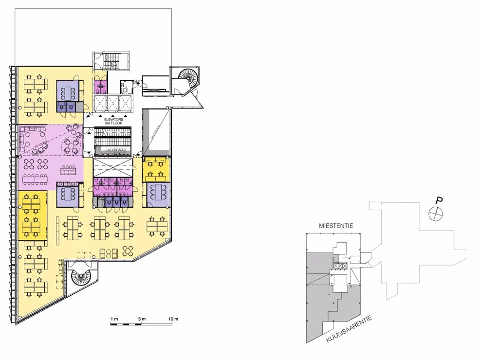
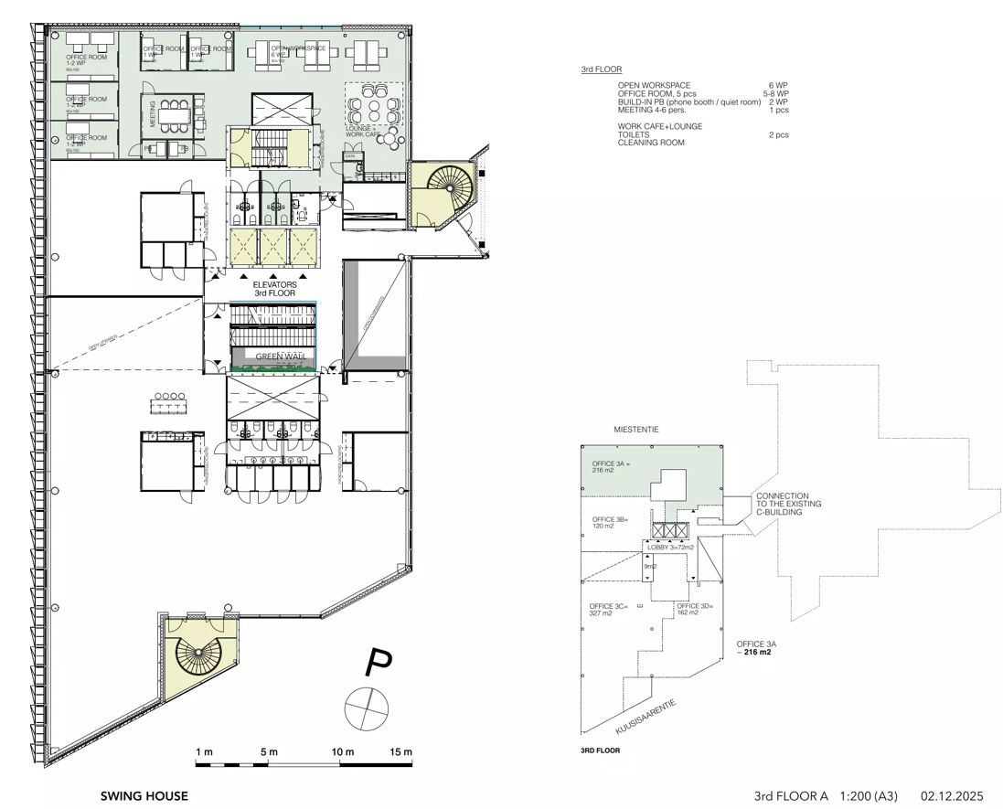
Swing House - B-talo - Toimisto 902 m² (367 m² / 535 m² tai 238 m² / 664 m²)
Osoite
Miestentie 7, 02150 Espoo
Tilatyyppi
Toimistotilaa
238 - 902 m2
Pohjapiirros
Kiinteistö
Muuttovalmis, tasokas toimistotila odottaa sinua Swing Housen modernissa B-talossa, joka on valmistunut vuonna 2021 ja kantaa arvostettua WELL-sertifikaattia. Tilassa yhdistyvät huippuluokan mukavuudet ja inspiroiva työympäristö. Ikkunat avautuvat kolmeen suuntaan, ja koko kerros tarjoaa noin 902 m² valoisaa ja muunneltavaa tilaa, johon voi sijoittaa n. 73 työpistettä. Suuret ikkunat neljään ilmansuuntaan tuovat runsaasti luonnonvaloa ja luovat energisen tunnelman työpäivään.
Kolmas kerros voidaan tarvittaessa jakaa kahteen erilliseen kokonaisuuteen:
238 m / 664 m² (n. 51 työpistettä) TAI
367 m² (n. 30 työpistettä) / 535 m² (n. 47 työpistettä)
Katso tilankäyttöluonnokset ohessa!
Swing House – Viiden tähden työympäristö Keilaniemessä
Sijainti, joka yhdistää kaiken
Swing House sijaitsee Espoon Keilaniemessä, aivan pääkaupunkiseudun liikenneyhteyksien solmukohdassa.
Metro ja Raide-Jokeri: Sisäänkäynnille vain 200 metriä
Autoilijat: Parkkihalli ja pihapysäköinti, osa paikoista sähköautojen latauksella
Pyöräilijät: Oma ramppi pyörätieltä lämpimään pyöräparkkiin, suihku- ja pukeutumistilat
Lentokentälle pääsee autolla noin 25 minuutissa, ja hotelliyhteys tekee kansainvälisten vieraiden vierailusta mutkatonta.
Palvelut, jotka tekevät arjesta sujuvaa
Swing House tarjoaa kattavat palvelut saman katon alla:
Vihreä ja vastuullinen lounasravintola, joka valmistaa ruokansa käsityönä kotimaisista raaka-aineista
Aulapalvelu ja tyylikäs lounge
Modernit kokous- ja neuvottelutilat laadukkaalla cateringilla
Ylimmän kerroksen muunneltavat tilat valmennuksiin ja tapahtumiin, suora yhteys kattoterassille
Liikunta- ja hyvinvointitilat sekä valoisa kuntosali
Vastuullisuus ja hyvinvointi edellä
Swing House on WELL Platinum -sertifioitu kohde, jossa jokainen yksityiskohta tukee työhyvinvointia ja kestävää kehitystä:
Koko talon korkuinen viherseinä ja luonnonvaloa tulvivat tilat
Rauhoittava äänimaisema ja muuntuva valaistus portaikossa
Aidot materiaalit, graafinen betoni ja corten-teräs yhdistettynä vehreään sisustukseen
Kiinteistö tarjoaa joustavat tilaratkaisut yritysten yksilöllisiin tarpeisiin ja kasvun mahdollisuuksiin.
Ota yhteyttä
Kiinnostuitko? Ota yhteyttä ja tule tutustumaan tiloihin!
Toimitilavälityspalvelumme on tilanhakijalle maksuton.
Kolmas kerros voidaan tarvittaessa jakaa kahteen erilliseen kokonaisuuteen:
238 m / 664 m² (n. 51 työpistettä) TAI
367 m² (n. 30 työpistettä) / 535 m² (n. 47 työpistettä)
Katso tilankäyttöluonnokset ohessa!
Swing House – Viiden tähden työympäristö Keilaniemessä
Sijainti, joka yhdistää kaiken
Swing House sijaitsee Espoon Keilaniemessä, aivan pääkaupunkiseudun liikenneyhteyksien solmukohdassa.
Metro ja Raide-Jokeri: Sisäänkäynnille vain 200 metriä
Autoilijat: Parkkihalli ja pihapysäköinti, osa paikoista sähköautojen latauksella
Pyöräilijät: Oma ramppi pyörätieltä lämpimään pyöräparkkiin, suihku- ja pukeutumistilat
Lentokentälle pääsee autolla noin 25 minuutissa, ja hotelliyhteys tekee kansainvälisten vieraiden vierailusta mutkatonta.
Palvelut, jotka tekevät arjesta sujuvaa
Swing House tarjoaa kattavat palvelut saman katon alla:
Vihreä ja vastuullinen lounasravintola, joka valmistaa ruokansa käsityönä kotimaisista raaka-aineista
Aulapalvelu ja tyylikäs lounge
Modernit kokous- ja neuvottelutilat laadukkaalla cateringilla
Ylimmän kerroksen muunneltavat tilat valmennuksiin ja tapahtumiin, suora yhteys kattoterassille
Liikunta- ja hyvinvointitilat sekä valoisa kuntosali
Vastuullisuus ja hyvinvointi edellä
Swing House on WELL Platinum -sertifioitu kohde, jossa jokainen yksityiskohta tukee työhyvinvointia ja kestävää kehitystä:
Koko talon korkuinen viherseinä ja luonnonvaloa tulvivat tilat
Rauhoittava äänimaisema ja muuntuva valaistus portaikossa
Aidot materiaalit, graafinen betoni ja corten-teräs yhdistettynä vehreään sisustukseen
Kiinteistö tarjoaa joustavat tilaratkaisut yritysten yksilöllisiin tarpeisiin ja kasvun mahdollisuuksiin.
Ota yhteyttä
Kiinnostuitko? Ota yhteyttä ja tule tutustumaan tiloihin!
Toimitilavälityspalvelumme on tilanhakijalle maksuton.
Vapautuu
Kysy
Kerros
3
Ota yhteyttä
LogisTila Oy
Kylätie 11-13, 00320 HELSINKI
Karoliina Turppo
Näytä puhelinnumero
050 345 3258
Pyydä lisätietoa
