Vuokrataan tuotantotilat, varastotilat - Hyvinkää
Hakakalliontie 13, Hakakallio, 05460 Hyvinkää #10845476
Varasto-/ tuotantotilaa Hyvinkäältä
Osoite
Hakakalliontie 13, 05460 Hyvinkää
Tilatyyppi
Tuotantotilaa
15466 m2
Varastotilaa
15466 m2
Yhteensä
15466 m2
Pysäköinti
Pihalla
Muuta
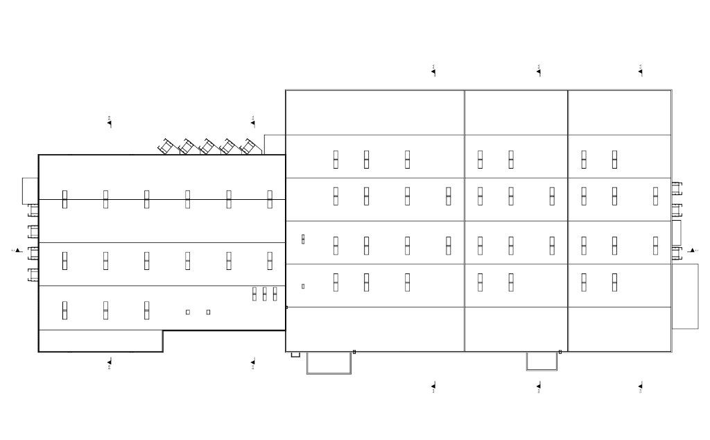
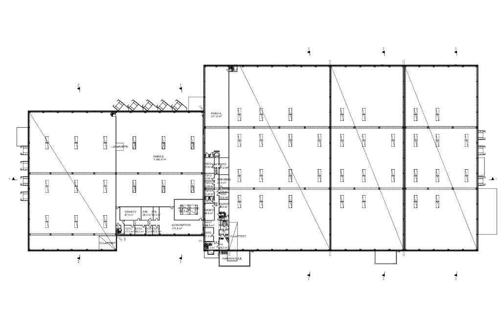
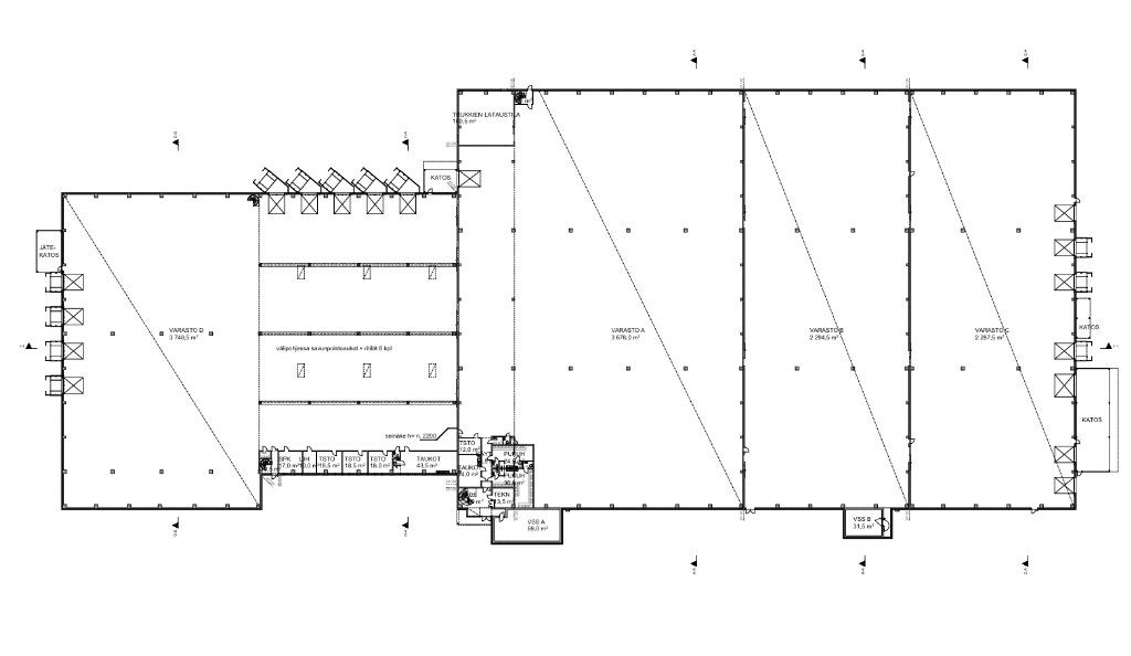
Vuokrattavana 15466 m² varasto- / tuotantotilaa Hyvinkään Hakakallion teollisuusalueella. Yhtenäinen, korkea halli sekä kahteen kerrokseen sijoittuvat
toimisto-, neuvottelu- ja sosiaalitilat. 12 lastaustaskua, lastaussilta kahdella nosto-ovella sekä ajoramppi.
Tämä kohde toteutetaan joustavasti tilanhakijan tarpeiden mukaan, tarjoten mahdollisuuden suunnitella tilat juuri yrityksenne toimintaan sopiviksi.
Tila soveltuu monipuolisesti teollisuus-, logistiikka- tai varastokäyttöön. Suuri piha palvelee raskasta liikennettä ja pysäköintiä. Tilat voidaan jakaa ja
vuokrata yhdelle tai useammalle käyttäjälle.
Erinomainen sijainti tukee tehokasta logistiikkaa ja sijainti Valtatie 25:n varrella, lähellä E12-moottoritietä, takaa nopeat yhteydet pääkaupunkiseudulle, sisämaahan ja satamiin.
Tervetuloa tutustumaan, varaathan välittäjältä oman esittelyaikasi. Voit kysyä meiltä myös muita sopivia vaihtoehtoja, kauttamme löydät juuri Teidän tarpeisiinne sopivat tilat.
Palvelumme on tilanhakijalle veloitukseton!
toimisto-, neuvottelu- ja sosiaalitilat. 12 lastaustaskua, lastaussilta kahdella nosto-ovella sekä ajoramppi.
Tämä kohde toteutetaan joustavasti tilanhakijan tarpeiden mukaan, tarjoten mahdollisuuden suunnitella tilat juuri yrityksenne toimintaan sopiviksi.
Tila soveltuu monipuolisesti teollisuus-, logistiikka- tai varastokäyttöön. Suuri piha palvelee raskasta liikennettä ja pysäköintiä. Tilat voidaan jakaa ja
vuokrata yhdelle tai useammalle käyttäjälle.
Erinomainen sijainti tukee tehokasta logistiikkaa ja sijainti Valtatie 25:n varrella, lähellä E12-moottoritietä, takaa nopeat yhteydet pääkaupunkiseudulle, sisämaahan ja satamiin.
Tervetuloa tutustumaan, varaathan välittäjältä oman esittelyaikasi. Voit kysyä meiltä myös muita sopivia vaihtoehtoja, kauttamme löydät juuri Teidän tarpeisiinne sopivat tilat.
Palvelumme on tilanhakijalle veloitukseton!
Vapautuu
Kysy
Kerros
1-2
Ota yhteyttä
Tuloskiinteistöt Oy
Rikhardinkatu 2 B 5, 00130 Helsinki
Näytä puhelinnumero
(09) 6841 620
Jorma Ryynänen
Commercial Real Estate Advisor LKV, LVV
Näytä puhelinnumero
+358 40 708 4064
Nina Meyke
Commercial Real Estate Advisor
Näytä puhelinnumero
+358 50 466 1519
Pyydä lisätietoa
