Vuokrataan toimistotilat - Helsinki
Eerikinkatu 4, Kamppi, 00100 Helsinki #10845379
Siistiä toimistotilaa Kampissa, erinomaisten liikenneyhteyksien varrella.
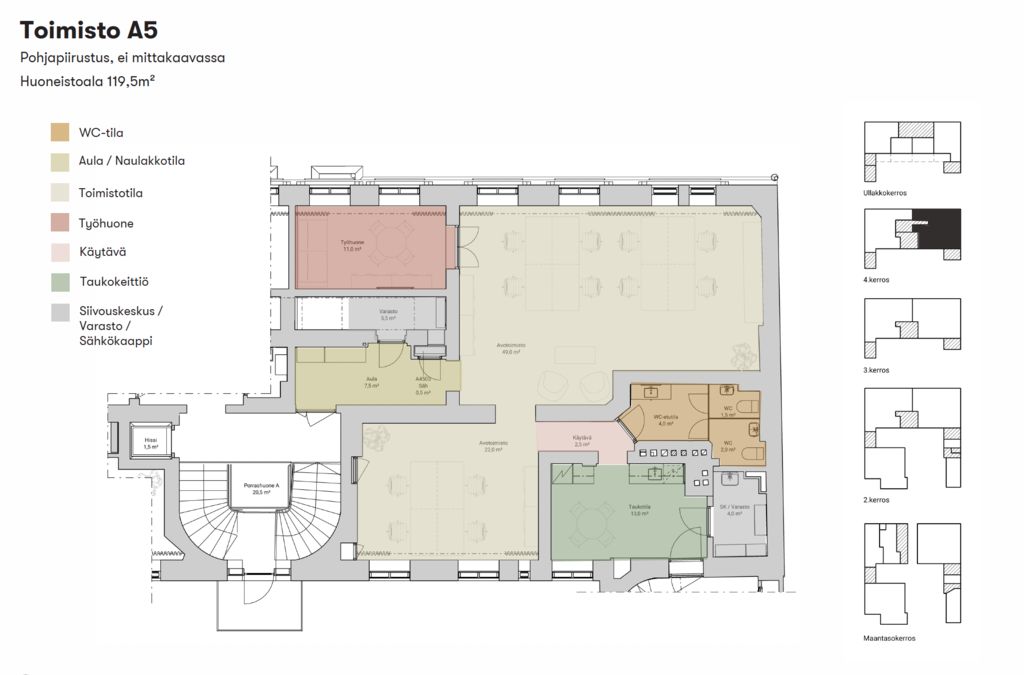
Tämä 119,5 m² toimistotila sijaitsee kiinteistön 4. kerroksessa. Toimistossa on avotilaa, yksi työhuone sekä omat keittiö- ja wc-tilat. Toimistossa on tyylikäs parkettilattia. Painovoimainen ilmanvaihto.
Kiinteistö on vasta valmistunut peruskorjauksesta, joten tilat ovat erinomaisessa kunnossa. Tilat on remontoitu arvokiinteistön historiaa kunnioittaen. Kuvat ovat esimerkkikuvia kiinteistön toimistotiloista.
Eerikinkatu 4 on arkkitehti Th. Höijerin suunnittelema asuin- ja liikekiinteistö Helsingin Kampissa. Päärakennus valmistui vuonna 1986. Kiinteistö sijaitsee erinomaisella paikalla, lyhyen matkan päässä niin Kampin kuin keskustan monipuolisia palveluita. Lähellä on mm. Kampin ja Forumin kauppakeskukset.
Kysy lisää numerosta 044 723 4700 tai info@bref.fi. Palvelumme on tilanhakijoille ilmainen.
Bureau Real Estate Finland Oy
Lars Sonckin kaari 16, 02600 Espoo
Näytä puhelinnumero
0447234700
Bureau Real Estate Finland Oy
https://www.bref.fi