Vuokrataan liiketilat - Tampere
Hämeenkatu 9, keskusta, 33100 Tampere #10845369
Vuokrattavana laadukas liiketila Tampereen keskustan parhaalla paikalla!
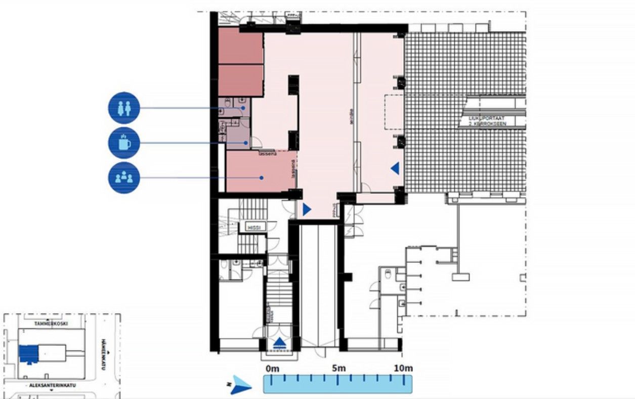
Tämä 169 m² ensimmäisen kerroksen liiketila sijaitsee arvostetussa Varmantalossa osoitteessa
Hämeenkatu 9.
Näkyvä sijainti vilkkaalla kävelykadulla tuo runsaasti ohikulkijoita ja mahdollisuuden tavoittaa asiakkaita kaupungin ytimessä.
Tila on heti vapaa ja valmis muokattavaksi yrityksesi tarpeisiin.
Kiinteistön yhteydessä on suora hissiyhteys Hämpin Parkkiin, mikä helpottaa sekä asiakkaiden että henkilökunnan saapumista.
Kysy lisätietoja ja tule tutustumaan tilaan, jossa yrityksesi voi todella erottua!
Vuokraan lisätään alv + kulut.
Ota yhteyttä ja kysy lisää!
www.blanctoimitilat.fi
Parhain terveisin,
Masa Hakala
Toimitila-Asiantuntija, LiaT
+358 40 964 2482
B L A N C T O I M I T I L A T
masa.hakala@blanckiinteisto.com
Tulli Business Park Tampere
www.blanctoimitilat.fi
Tilan hakijalle palvelumme on maksuton!
