Vuokrataan toimistotilat - Helsinki
Televisiokatu 4, Pasila, 00240 Helsinki #10845363
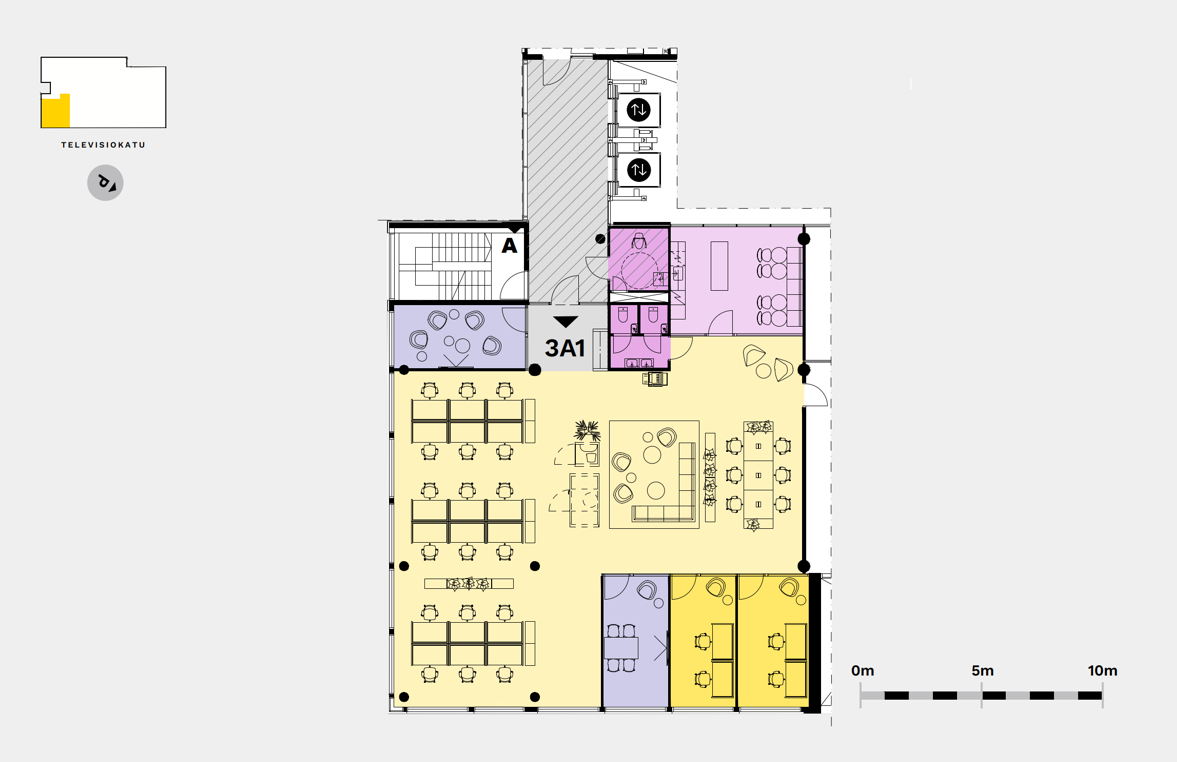
Pasilan Linkki - Toimisto 319 m²
Osoite
Televisiokatu 4, 00240 Helsinki
Tilatyyppi
Toimistotilaa
319 m2
Pohjapiirros
Kiinteistö
Tilava ja moderni toimistotila, johon mahtuu vähintään 28 työpistettä: avotilassa 18 työpistettä ja 6 hot deskiä, lisäksi kolme rauhallista vetäytymistilaa keskittymiseen tai puheluihin. Kahvilakeittiön yhteydessä sijaitseva tyylikäs taukotila ja viihtyisä kohtaamisalue luovat erinomaiset puitteet sujuvalle yhteistyölle ja virkistäville tauoille. Tilasta avautuvat avarat näkymät itään ja etelään sekä vastapäiseen rakennukseen, mikä tuo valoa ja tilan tuntua. Kaikissa tiloissa on laadukkaat tekstiilipalamatot, modernit vaaleat taukokeittiöt vinyylilankkulattioin sekä energiatehokas LED-valaistus.
Pasilan Linkki – Helsingin solmukohdassa
Modernit ja muuntojoustavat toimitilat Pasilan Linkissä tarjoavat yrityksellesi edustavan ja tehokkaan työympäristön erinomaisten kulkuyhteyksien äärellä. Pasilan Linkki on suunniteltu vastaamaan nykyaikaisen organisaation tarpeisiin. Tarkkaan suunnitellut tilat tukevat sekä yksilö- että tiimityöskentelyä. Valaistus, akustiikka ja ilmanvaihto on optimoitu työtehon ja viihtyvyyden maksimoimiseksi.
Sijainti ja saavutettavuus
Pasilan Linkki sijaitsee keskeisellä paikalla Helsingin Pasilassa, josta on erinomaiset yhteydet kaikkialle:
Junalla: Pasilan ja Ilmalan asemilta vain noin 5 minuutin kävelymatka. Junayhteydet ulottuvat koko Suomeen.
Raitiovaunulla: Ratikka 9 kulkee lähes kiinteistön kulmalta.
Autolla: Kiinteistössä on lämmin pysäköintihalli, jossa myös sähköautojen latauspisteet. Lisää pysäköintitilaa löytyy läheltä Helsinki Hallin yhteydestä.
Pyörällä: Pyöräilijöille on tarjolla sosiaalitilat, turvalliset säilytystilat sekä pyörän huoltopiste ja kuivaushuone varusteille.
Palvelut – Kaikki tarvittava saman katon alta
Pasilan Linkki tarjoaa kattavan palvelukokonaisuuden, joka tekee työarjesta sujuvaa ja miellyttävää:
Aulapalvelu: Ammattitaitoinen henkilökunta toivottaa vieraat tervetulleiksi avarassa aulassa.
Kokouspalvelut: Useita vuokrattavia neuvottelutiloja, 120 hengen auditorio sekä edustustilat kattoterassilla.
Ravintola ja kahvila: Herkullista ja ravitsevaa ruokaa aamiaisesta lounaaseen sekä laadukas catering kokouksiin.
Kuntosali: Ylimmän kerroksen kuntosali mahdollistaa liikunnan yhdistämisen työpäivään.
Läheltä löytyvät myös Mall of Triplan monipuoliset palvelut ja hotelli, ja alueen jatkuva kehitys tuo lisää mahdollisuuksia tulevaisuudessa.
Vastuullisuus – Tulevaisuuden toimitila
Pasilan Linkki on suunniteltu kestävän kehityksen periaatteiden mukaisesti:
BREEAM In-Use Excellent -sertifikaatti takaa kiinteistön ympäristöystävällisyyden.
Hiilineutraali sähkö ja erinomainen energiatehokkuus tukevat vastuullista toimintaa.
Are Sensus® -järjestelmä varmistaa alhaisen energiankulutuksen ja miellyttävät sisäolosuhteet.
Ota yhteyttä
Kiinnostuitko? Ota yhteyttä ja tule tutustumaan tiloihin!
Toimitilavälityspalvelumme on tilanhakijalle maksuton.
Pasilan Linkki – Helsingin solmukohdassa
Modernit ja muuntojoustavat toimitilat Pasilan Linkissä tarjoavat yrityksellesi edustavan ja tehokkaan työympäristön erinomaisten kulkuyhteyksien äärellä. Pasilan Linkki on suunniteltu vastaamaan nykyaikaisen organisaation tarpeisiin. Tarkkaan suunnitellut tilat tukevat sekä yksilö- että tiimityöskentelyä. Valaistus, akustiikka ja ilmanvaihto on optimoitu työtehon ja viihtyvyyden maksimoimiseksi.
Sijainti ja saavutettavuus
Pasilan Linkki sijaitsee keskeisellä paikalla Helsingin Pasilassa, josta on erinomaiset yhteydet kaikkialle:
Junalla: Pasilan ja Ilmalan asemilta vain noin 5 minuutin kävelymatka. Junayhteydet ulottuvat koko Suomeen.
Raitiovaunulla: Ratikka 9 kulkee lähes kiinteistön kulmalta.
Autolla: Kiinteistössä on lämmin pysäköintihalli, jossa myös sähköautojen latauspisteet. Lisää pysäköintitilaa löytyy läheltä Helsinki Hallin yhteydestä.
Pyörällä: Pyöräilijöille on tarjolla sosiaalitilat, turvalliset säilytystilat sekä pyörän huoltopiste ja kuivaushuone varusteille.
Palvelut – Kaikki tarvittava saman katon alta
Pasilan Linkki tarjoaa kattavan palvelukokonaisuuden, joka tekee työarjesta sujuvaa ja miellyttävää:
Aulapalvelu: Ammattitaitoinen henkilökunta toivottaa vieraat tervetulleiksi avarassa aulassa.
Kokouspalvelut: Useita vuokrattavia neuvottelutiloja, 120 hengen auditorio sekä edustustilat kattoterassilla.
Ravintola ja kahvila: Herkullista ja ravitsevaa ruokaa aamiaisesta lounaaseen sekä laadukas catering kokouksiin.
Kuntosali: Ylimmän kerroksen kuntosali mahdollistaa liikunnan yhdistämisen työpäivään.
Läheltä löytyvät myös Mall of Triplan monipuoliset palvelut ja hotelli, ja alueen jatkuva kehitys tuo lisää mahdollisuuksia tulevaisuudessa.
Vastuullisuus – Tulevaisuuden toimitila
Pasilan Linkki on suunniteltu kestävän kehityksen periaatteiden mukaisesti:
BREEAM In-Use Excellent -sertifikaatti takaa kiinteistön ympäristöystävällisyyden.
Hiilineutraali sähkö ja erinomainen energiatehokkuus tukevat vastuullista toimintaa.
Are Sensus® -järjestelmä varmistaa alhaisen energiankulutuksen ja miellyttävät sisäolosuhteet.
Ota yhteyttä
Kiinnostuitko? Ota yhteyttä ja tule tutustumaan tiloihin!
Toimitilavälityspalvelumme on tilanhakijalle maksuton.
Vapautuu
Kysy
Kerros
3
Ota yhteyttä
Logistila Oy
Kylätie 11-13, 00320 HELSINKI
Karoliina Turppo
Näytä puhelinnumero
050 345 3258
Pyydä lisätietoa
