Vuokrataan toimistotilat - Helsinki
Hiilikatu 3, Ruoholahti, 00180 Helsinki #10845351
Uudenveroista toimistotilaa Helsingin Ruoholahdessa
Osoite
Hiilikatu 3, 00180 Helsinki
Tilatyyppi
Toimistotilaa
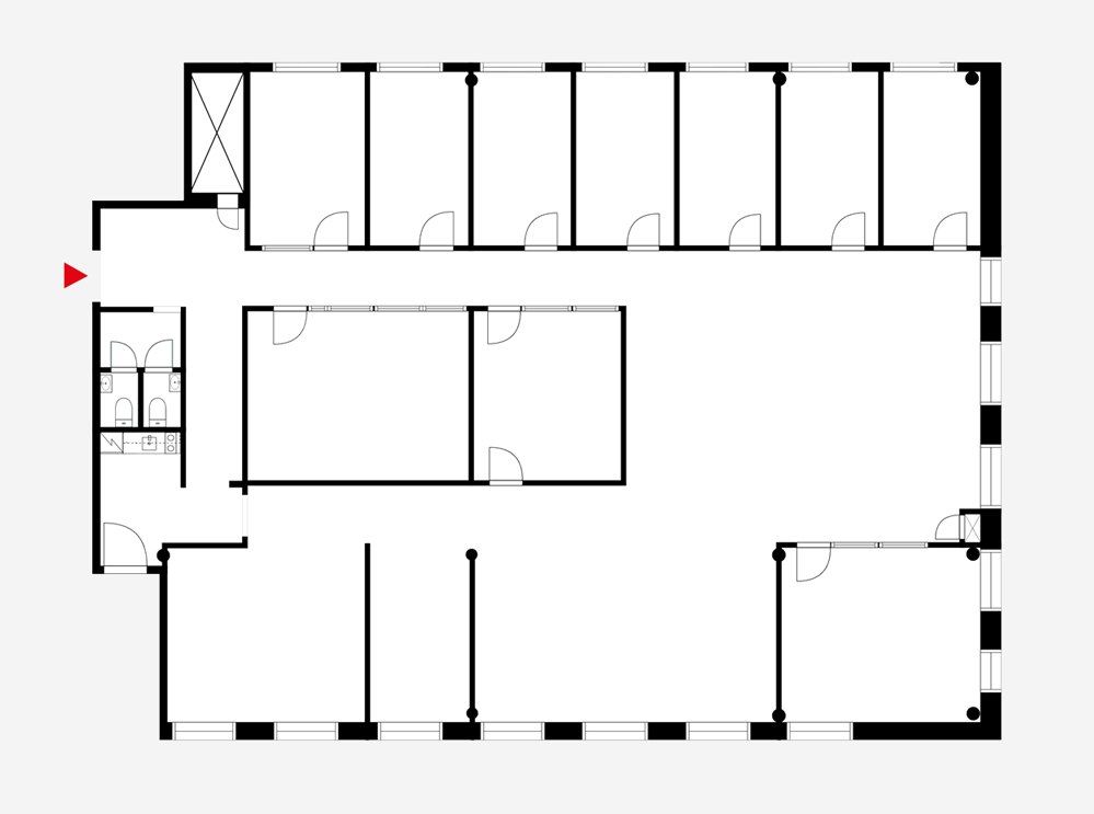
374 m2
Pysäköinti
Kyllä
Muuta
Vuokrataan uudenveroista modernia toimistotilaa Helsingin Ruoholahdessa, vuokrattava tila on 3. kerroksen 374m2 toimistotila.
Kiinteistö Ruoholahti 1:n sijainti on erinomainen Länsiväylän alussa, ja myös hyvien julkisten joukkoliikennevälineiden varrella. Esim. Salmisaaren pysäkille on vain 500m /5 min. kävelymatka.
Technopolis Ruoholahti 1 toimintaympäristö takaa vuokralaisille erinomaiset ja modernit palvelut tilanteeseen kuin tilanteeseen. Kiinteistössä on kaikki nykyaikaiset Business Park palvelut: aulapalvelu, ravintola vuokrattavia neuvottelutiloja, auditorio, pitopalvelu, videokonfrenssijärjestelmä, toimitilojen suunnittelupalvelu, it-palvelut, siivous- ym. toimitilapalvelut, muuttopalvelu ja vuokrattavia toimistokalusteita.
Sisäkuvat ovat esimerkkikuvia asiakkaille toteutetuista ratkaisuista. Tila vapautuu 1.1.2026.
Tervetuloa tutustumaan, varaathan välittäjältä oman esittelyaikasi! Kysy myös muita hyviä vaihtoehtoja - palvelumme on tilanhakijalle veloitukseton!
Kiinteistö Ruoholahti 1:n sijainti on erinomainen Länsiväylän alussa, ja myös hyvien julkisten joukkoliikennevälineiden varrella. Esim. Salmisaaren pysäkille on vain 500m /5 min. kävelymatka.
Technopolis Ruoholahti 1 toimintaympäristö takaa vuokralaisille erinomaiset ja modernit palvelut tilanteeseen kuin tilanteeseen. Kiinteistössä on kaikki nykyaikaiset Business Park palvelut: aulapalvelu, ravintola vuokrattavia neuvottelutiloja, auditorio, pitopalvelu, videokonfrenssijärjestelmä, toimitilojen suunnittelupalvelu, it-palvelut, siivous- ym. toimitilapalvelut, muuttopalvelu ja vuokrattavia toimistokalusteita.
Sisäkuvat ovat esimerkkikuvia asiakkaille toteutetuista ratkaisuista. Tila vapautuu 1.1.2026.
Tervetuloa tutustumaan, varaathan välittäjältä oman esittelyaikasi! Kysy myös muita hyviä vaihtoehtoja - palvelumme on tilanhakijalle veloitukseton!
Vapautuu
Kysy
Rakennusvuosi
2008
Kerros
3
Ota yhteyttä
Tuloskiinteistöt Oy
Rikhardinkatu 2 B 5, 00130 Helsinki
Näytä puhelinnumero
(09) 6841 620
Nina Meyke
Commercial Real Estate Advisor
Näytä puhelinnumero
+358 50 466 1519
Otto Ahtola
Commercial Real Estate Advisor
Näytä puhelinnumero
+358 40 042 2830
Pyydä lisätietoa
