Vuokrataan toimistotilat - Helsinki
Eerikinkatu 4, Keskusta, 00100 Helsinki #10845266
Historiallista arvokkuutta ja modernia mukavuutta – täysin uudistettu 118 m² toimistotila Höijerin suunnittelemassa arvokiinteistössä Kampissa
Osoite
Eerikinkatu 4, 00100 Helsinki
Tilatyyppi
Toimistotilaa
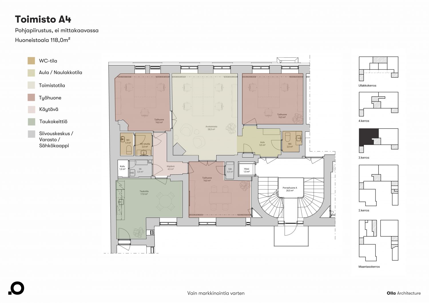
118 m2
Pohjapiirros
Kiinteistö
Vuonna 1896 valmistunut arkkitehti Theodor Höijerin suunnittelema asuin- ja liikerakennus on saanut uuden elämän – rakennus on peruskorjattu vuonna 2025 vanhaa kunnioittaen ja arvokas tunnelma säilyttäen.
Vuokrattavana on täysin uudistettu toimistotila, jossa historia ja nykyaikainen työympäristö kohtaavat täydellisessä harmoniassa.
Tilassa on avotilaa, 3 reilun kokoista työhuonetta, taukotila keittiöineen sekä kaksi wc:tä. Kaikki pinnat, tekniikka ja varustelu on uusittu – kuitenkin rakennuksen alkuperäistä henkeä vaalien.
Pihapiiriä täydentää vuonna 1875 valmistunut ja vuonna 1883 laajennettu viehättävä puinen asuinrakennus, joka luo ainutlaatuisen historiallisen miljöön keskelle kaupunkia.
Tämä tila sopii yritykselle, joka arvostaa laadukasta, persoonallista ja tarinallista työympäristöä.
Ilmoituksen sisäkuvat ovat kuvia kiinteistön eri tiloista.
Vuokrattavana on täysin uudistettu toimistotila, jossa historia ja nykyaikainen työympäristö kohtaavat täydellisessä harmoniassa.
Tilassa on avotilaa, 3 reilun kokoista työhuonetta, taukotila keittiöineen sekä kaksi wc:tä. Kaikki pinnat, tekniikka ja varustelu on uusittu – kuitenkin rakennuksen alkuperäistä henkeä vaalien.
Pihapiiriä täydentää vuonna 1875 valmistunut ja vuonna 1883 laajennettu viehättävä puinen asuinrakennus, joka luo ainutlaatuisen historiallisen miljöön keskelle kaupunkia.
Tämä tila sopii yritykselle, joka arvostaa laadukasta, persoonallista ja tarinallista työympäristöä.
Ilmoituksen sisäkuvat ovat kuvia kiinteistön eri tiloista.
Vapautuu
Heti
Rakennusvuosi
1896
Saneerausvuosi
2025
Kerros
3 / 5
Energiatehokkuusluokka
Ei lain edellyttämää energiatodistusta
Näkyvällä paikalla
Hissi
Ota yhteyttä
ScanReal Oy LKV
Opus Business Park
Hitsaajankatu 24
00810 Helsinki
info@scanreal.fi
Puh:
Näytä puhelinnumero
020 730 8830
Sopivat toimitilat yhdellä otolla!
Kartoitamme toimitilatarpeesi ja etsimme yrityksellesi parhaiten sopivat vapaat toimitilat. Koska vuokranantajat maksavat palvelumme, on tämä yrityksellesi veloituksetonta.
Palvelumme on tilanhakijalle ilmainen
Pyydä lisätietoa
