Vuokrataan toimistotilat - Helsinki
LIME Park, Ratamestarinkatu 7 B, Pasila, 00520 Helsinki #10845150
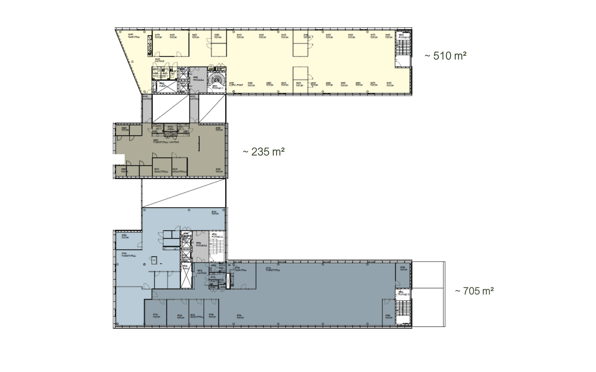
Uniikki mahdollisuus kolme kokonaista kerrosta, yhteensä 4410 m² kattavaan kokonaisuuteen supersuositussa Pasilassa, aivan Mall of Triplan läheisyydessä.
Vuonna 2003 valmistunut Lime Park on nykyaikainen business park, jonka toimivat tilat sekä monipuoliset palvelut takaavat vuokralaisten viihtyvyyden. Lime Park koostuu kahdesta kuusi- ja seitsemänkerroksisesta toimistotalosta, jotka muodostavat modernin kokonaisuuden korkeine aulatiloineen.
Lime Parkilla on vetovoimainen sijainti aivan Pasilan ytimessä, Ratamestarinkadulla. Juna-asemalle kävelet vain 4 minuutissa, raitiovaunupysäkit sijaitsevat kiinteistön kulmalla ja bussit kulkevat monelta suunnalta. Myös lentokentälle yhteydet ovat erinomaiset.
Kiinteistö tarjoaa tasokkaat lisäpalvelut vuokralaisilleen. Alueen palvelutarjonta on kasvanut huimaa vauhtia, ja Lime Park sijaitseekin vain kivenheiton päässä Mall of Triplasta, joka on aina hereillä ja täynnä elämää.
Näkyvällä paikalla
ScanReal Oy LKV
Opus Business Park
Hitsaajankatu 24
00810 Helsinki
info@scanreal.fi
Puh:
Näytä puhelinnumero
020 730 8830
Sopivat toimitilat yhdellä otolla!
Kartoitamme toimitilatarpeesi ja etsimme yrityksellesi parhaiten sopivat vapaat toimitilat. Koska vuokranantajat maksavat palvelumme, on tämä yrityksellesi veloituksetonta.
OTA YHTEYTTÄ - SOVI NÄYTTÖ!
Kaikki kohteemme eivät ole netissä, kerro tilatarpeesi niin kartoitamme vaihtoehdot.
Palvelumme on tilanhakijalle ilmainen
