Myydään tuotantotilat - Pori
Päivöläntie, Väinölä, 28330 Pori #10845123
Myydään monipuolinen Toimitilakiinteistö Porissa, joka tarjoaa erinomaiset mahdollisuudet liiketoiminnan kehittämiseen. Vuonna 2008 valmistunut rakennus on hyvässä kunnossa ja sijaitsee omalla tontilla, myytävä maa-alue on kantatilasta eroitettava määräala noin 7500 m2.
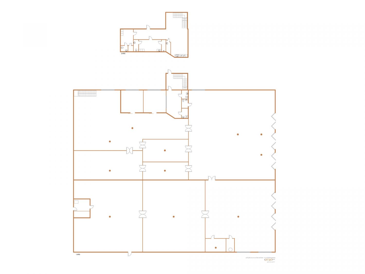
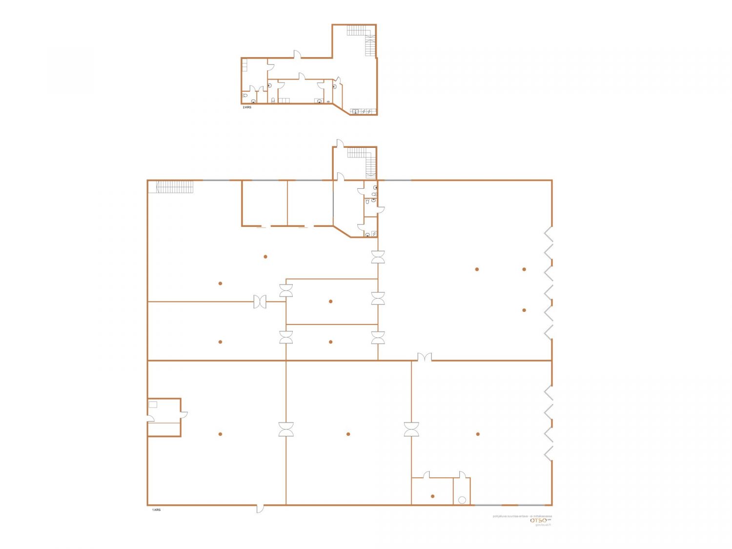
Rakennuksen kokonaispinta-ala on 2300 neliömetriä + parvi, ja se sisältää toimistotiloja, sosiaalitilat, hallitilaa sekä kylmätiloja.
Halli on toiminut Puutarhayrityksen varasto-ja tuotantotilana.
Toimistotila noin 120m2 (keittiö+sosiaalitilat+4wc), työtilapuoli (lastaamo) noin 360m2 eli lämmintä tilaa yhteensä noin 480m2. Kylmiö halliosa noin 2x60m2 ja 126m2 (päällä varastotilaa).
Kaikki tilat on lämpöeristetty eriste-elementein.
Kiinteistön lämmitys toimii öljyllä ja ilmanvaihto on toteutettu koneellisesti. Tämä kiinteistö tarjoaa myös merkittävää vuokratuottoa, mikä tekee siitä houkuttelevan sijoituskohteen. Sijainti Satakunnan sydämessä, hyvät kulkuyhteydet ja mahdollisuudet liiketoiminnan kasvattamiseen.
Tartu tilaisuuteen ja hyödynnä tämän kiinteistön tarjoamat mahdollisuudet!
Ota yhteyttä ja sovitaan sinulle sopiva esittelyaika.
Juha Blom 0400 611 688
juha.blom@otsolkv.fi
Kiinteistönvälitys Otso LKV Oy
Juha Blom
Kiinteistönvälittäjä, LKV, LVV, Yrittäjä
Näytä puhelinnumero
+358400611688
