Vuokrataan toimistotilat - Jyväskylä
Ahlmaninkatu 2, Mattilanniemi, 40100 Jyväskylä #10845105
Vapaata toimitilaa kampukselta Jyväsjärven rannalta!
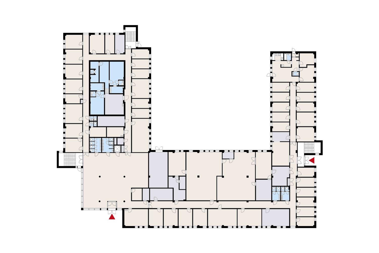
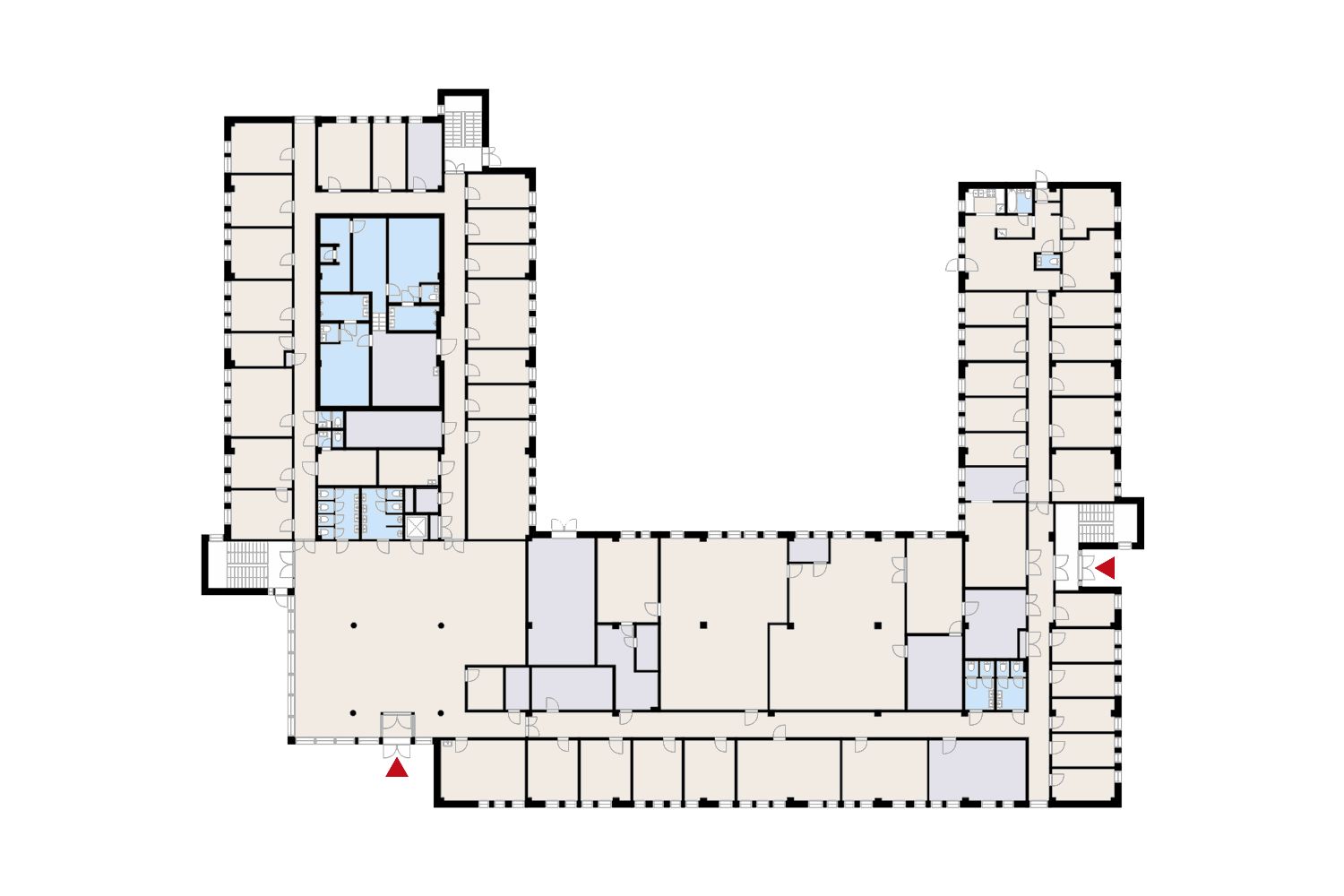
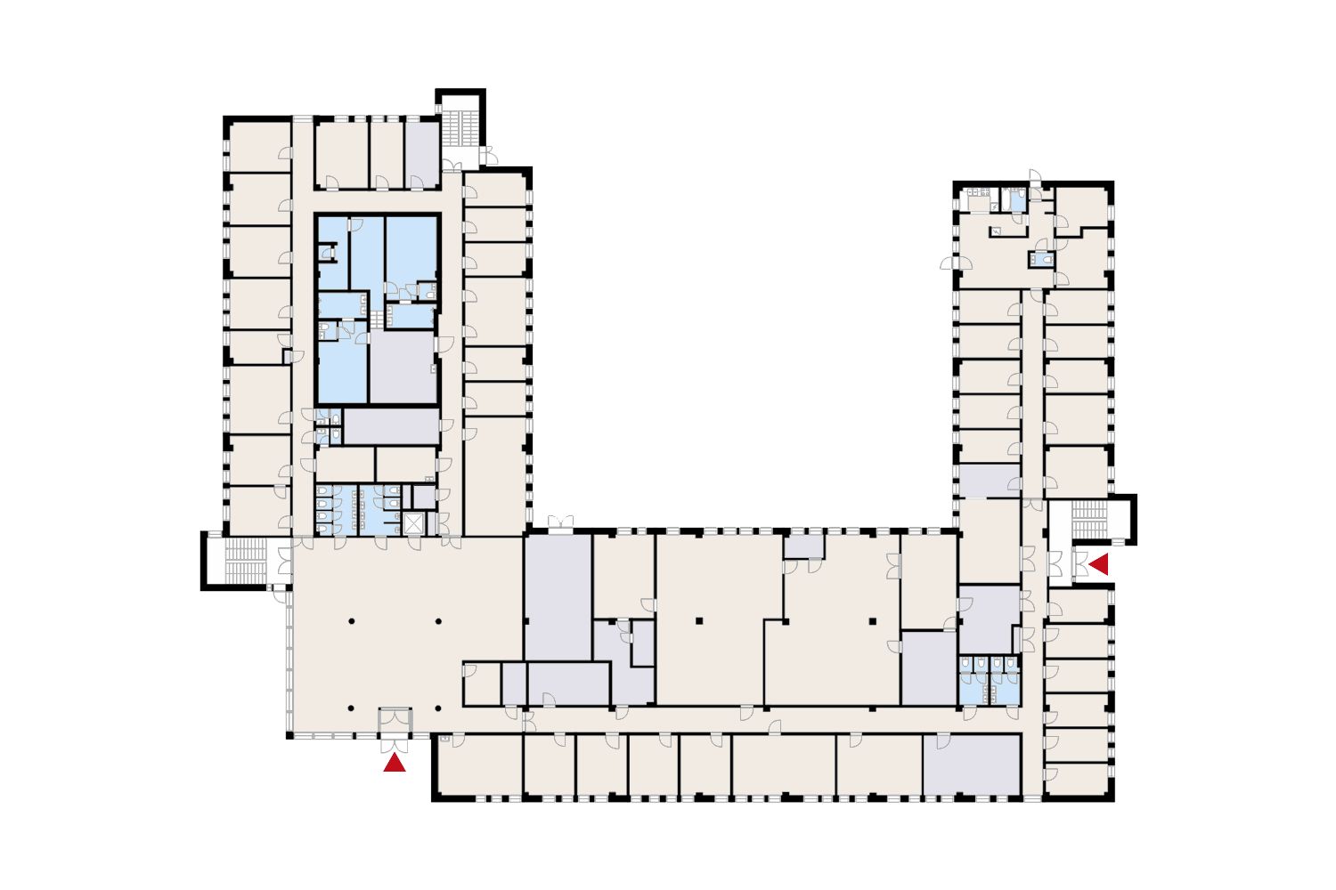
Vuokrattavana toimitilaa Mattilanniemestä, aivan Jyväskylän keskustan läheisyydestä Jyväsjärven rannalta. Sijainti tuo palvelut ja joukkoliikenneyhteydet kävelyetäisyydelle, ja alue linkittyy sujuvasti yliopiston muihin kampuksiin. Mattilanniemi ja Ylistönrinne sijaitsevat vastakkaisilla rannoilla ja ovat yhteydessä toisiinsa kevyen liikenteen sillan kautta. Vapaata pinta-alaa on yhteensä 4871 m² useassa kerroksessa. Tilat soveltuvat erinomaisesti toimisto-, opetus- ja muuhun toimitilakäyttöön.
Osoite
Ahlmaninkatu 2, 40100 Jyväskylä
Tilatyyppi
Toimistotilaa
4871 m2
Vapautuu
Kysy
Kerros
1
Ota yhteyttä
Pyydä lisätietoa
