Vuokrataan toimistotilat - Helsinki
Lime Park, Ratamestarinkatu 7 A, Pasila, 00520 Helsinki #10845089
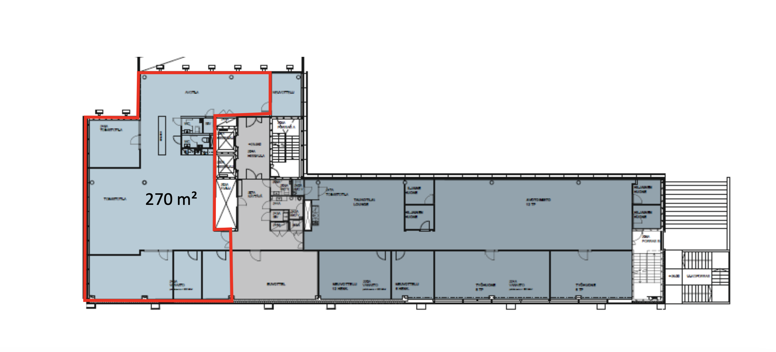
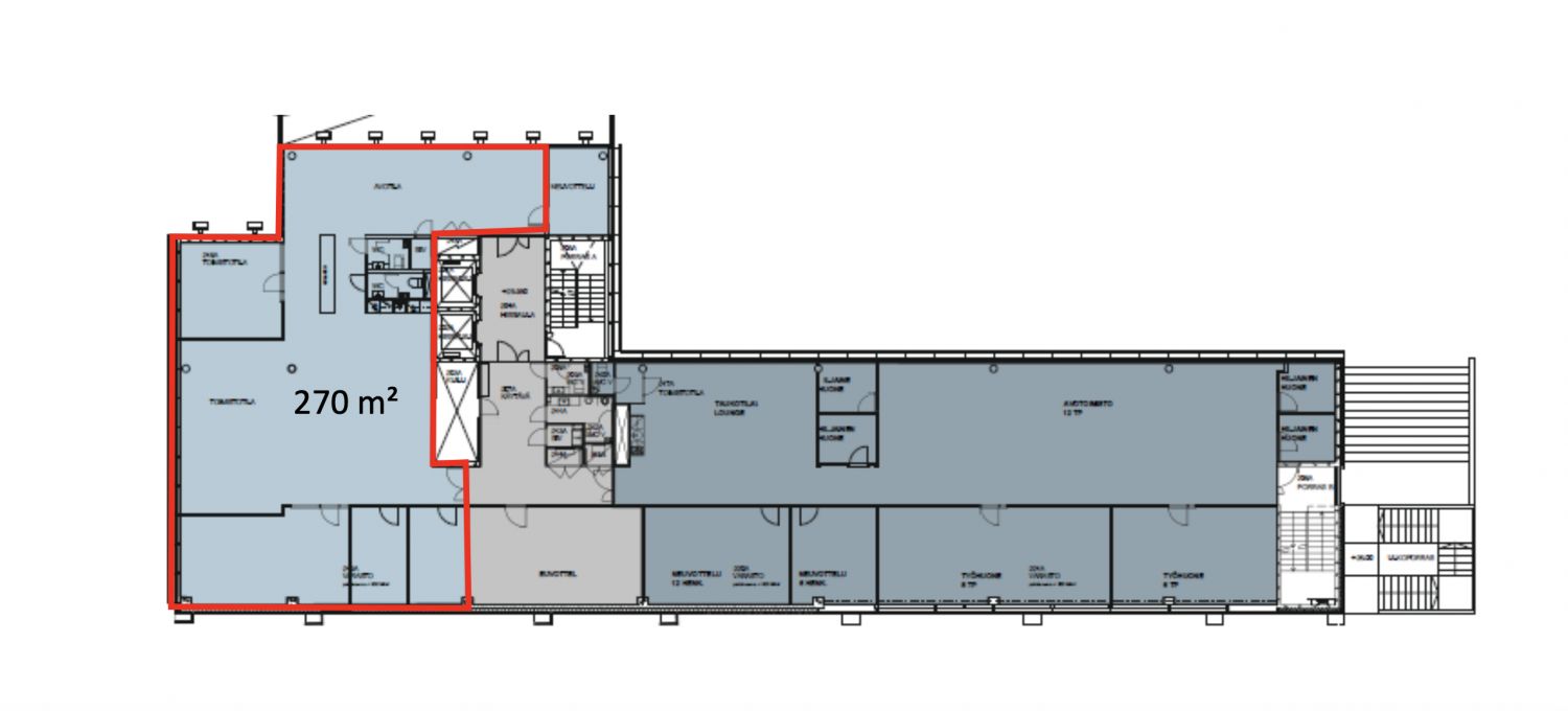
Tasokas, toisen kerroksen 270 m² toimisto hyvällä sijainnilla Itä-Pasilassa
Osoite
Ratamestarinkatu 7 A, 00520 Helsinki
Tilatyyppi
Toimistotilaa
270 m2
Pohjapiirros
Kiinteistö
Toisessa kerroksessa sijaitseva, kahdella omalla sisäänkäynnillä varustettu 270 m² toimisto, Pasilan Lime Parkista. Tila on nykymuodossaan kombitoimistoa, reippaasti avotilaa mutta myös työhuoneita. Lisäksi omat wc-tilat ja siisti, pieni keittiö.
Vuonna 2003 valmistunut Lime Park on nykyaikainen business park, jonka toimivat tilat sekä monipuoliset palvelut takaavat vuokralaisten viihtyvyyden.
Lime Parkilla on vetovoimainen sijainti aivan Pasilan ytimessä, Ratamestarinkadulla. Juna-asemalle kävelet vain neljässä minuutissa, raitiovaunupysäkit sijaitsevat kiinteistön kulmalla, ja bussit kulkevat monelta suunnalta. Myös yhteydet lentokentälle ovat erinomaiset.
Vuonna 2003 valmistunut Lime Park on nykyaikainen business park, jonka toimivat tilat sekä monipuoliset palvelut takaavat vuokralaisten viihtyvyyden.
Lime Parkilla on vetovoimainen sijainti aivan Pasilan ytimessä, Ratamestarinkadulla. Juna-asemalle kävelet vain neljässä minuutissa, raitiovaunupysäkit sijaitsevat kiinteistön kulmalla, ja bussit kulkevat monelta suunnalta. Myös yhteydet lentokentälle ovat erinomaiset.
Vapautuu
Heti
Rakennusvuosi
2003
Kerros
2 / 7
Energiatehokkuusluokka
Ei lain edellyttämää energiatodistusta
Näkyvällä paikalla
Hissi
Ota yhteyttä
ScanReal Oy LKV
Opus Business Park
Hitsaajankatu 24
00810 Helsinki
info@scanreal.fi
Puh:
Näytä puhelinnumero
020 730 8830
Sopivat toimitilat yhdellä otolla!
Kartoitamme toimitilatarpeesi ja etsimme yrityksellesi parhaiten sopivat vapaat toimitilat. Koska vuokranantajat maksavat palvelumme, on tämä yrityksellesi veloituksetonta.
OTA YHTEYTTÄ - SOVI NÄYTTÖ!
Kaikki kohteemme eivät ole netissä, kerro tilatarpeesi niin kartoitamme vaihtoehdot.
Palvelumme on tilanhakijalle ilmainen
Pyydä lisätietoa
