Vuokrataan toimistotilat - Espoo
Niittytaival 13, Niittykumpu, 02200 Espoo #10845025
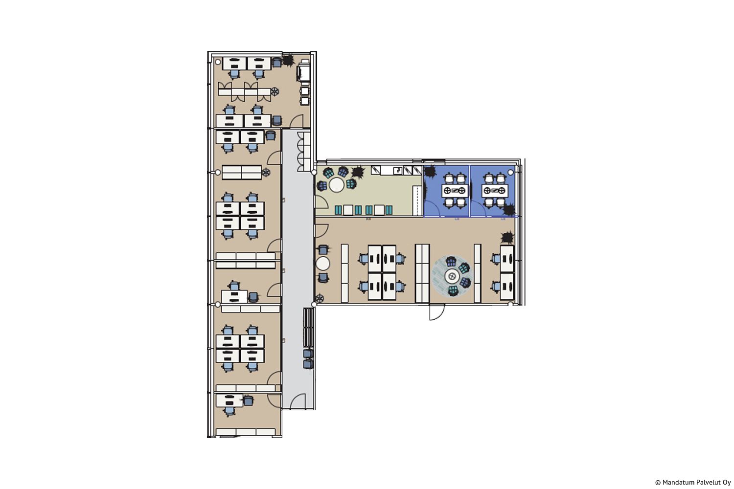
Vuokrataan kolmannen kerroksen tehokas toimistotila. Tämä valoisa toimitila koostuu työ- ja neuvotteluhuoneista sekä keittiötilasta. Kiinteistö sijaitsee hyvien kulkuyhteyksien päässä, näkyvällä paikalla Länsiväylän varrella. Ota yhteyttä ja kysy lisää tästä kohteesta!
Osoite
Niittytaival 13, 02200 Espoo
Tilatyyppi
Toimistotilaa
245 m2
Kiinteistö
Espoon Niittytaival 13
Pysäköinti
Pysäkointipaikkoja löytyy kiinteistön pihalta.
Palvelut
Lounasravintola, catering, vuokrattavia neuvottelutiloja, tilasuunnittelu, sauna, videoneuvottelu
Muuta
Tilan ominaisuudet: tilassa on ilmastointi
Vapautuu
Vapautumassa oleva
Kerros
3.
Energiatehokkuusluokka
D
Ota yhteyttä
Mandatum Asset Management Palvelut Oy
Bulevardi 56, 00120 Helsinki
Näytä puhelinnumero
020 031 100
Tapio Reponen
Näytä puhelinnumero
0400 468 468
Pyydä lisätietoa
