Vuokrataan toimistotilat - Espoo
Sierakiventie 8-10, Kauklahti, 02780 Espoo #10845016
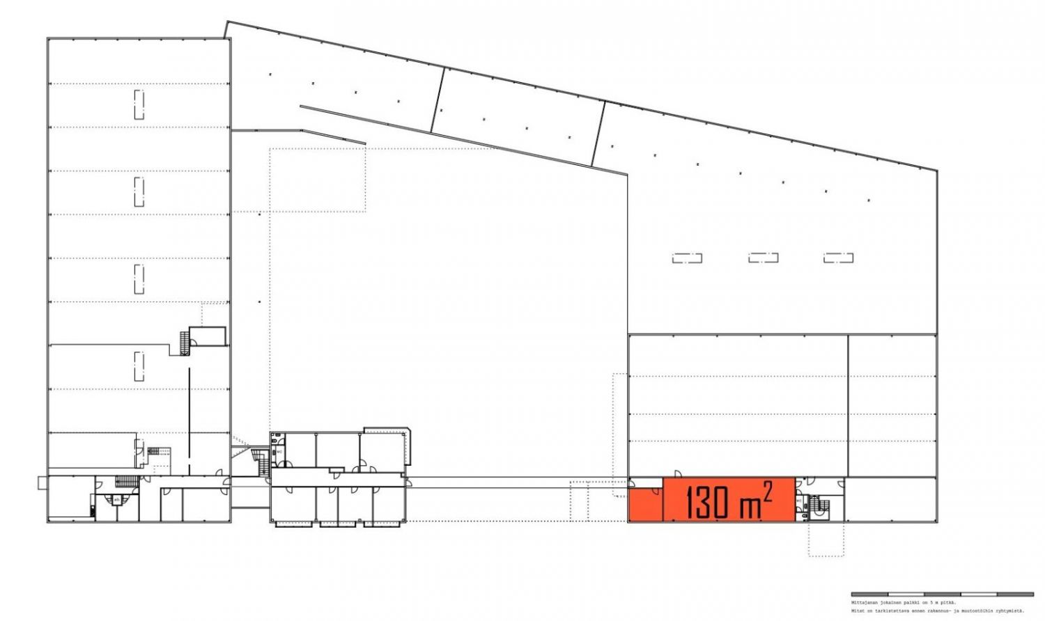
Vuokrataan Espoon Kauklahdesta toisen kerroksen 137 m² toimistotila, joka sopii hyvin mm. näyttelytilaksi. Avoimen tilan lisäksi kokonaisuuteen kuuluu kolme erillistä toimistohuonetta.
Kohteelta on hyvät liikenneyhteydet Kehä III pitkin kaikille pääväylille, erityisesti Turuntielle ja Länsiväylälle. Julkisten pysäkit ovat myös kohteen lähellä.
Kysy rohkeasti lisätietoja ja sovitaan käynti kohteella!
Osoite
Sierakiventie 8-10, 02780 Espoo
Tilatyyppi
Toimistotilaa
130 m2
Kiinteistö
Sierakiventie 8-10
Palvelut
Asiakaspysäköinti
Vapautuu
Kysy
Kerros
2
Ota yhteyttä
Hausala Oy
Erkkilänkatu 11, 33100 Tampere
Näytä puhelinnumero
050 472 7077
Mikko Ranta
Näytä puhelinnumero
050 360 6500
Mika Savikko
Näytä puhelinnumero
050 472 7077
Pyydä lisätietoa
