Vuokrataan toimistotilat - Helsinki
Hiilikatu 3, Ruoholahti, 00180 Helsinki #10844997
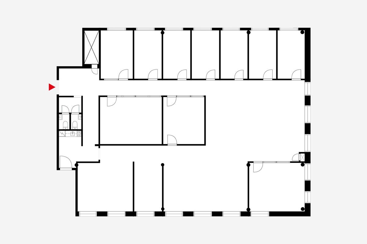
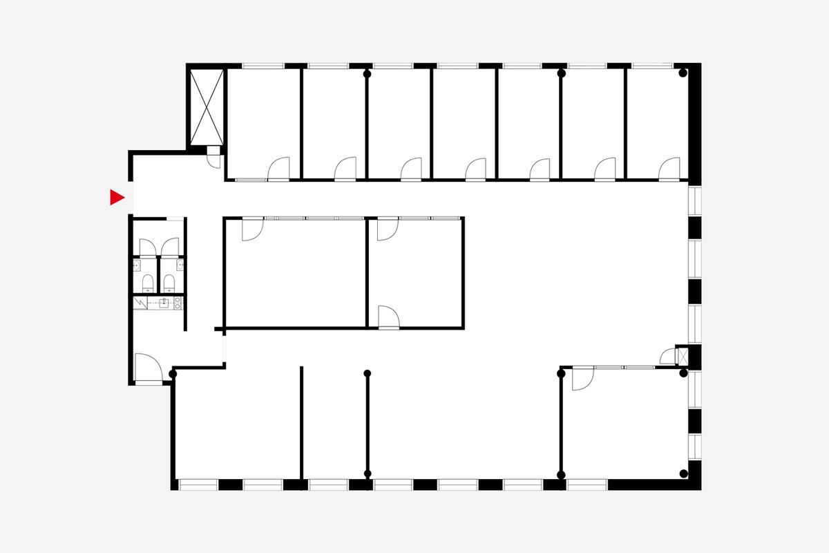
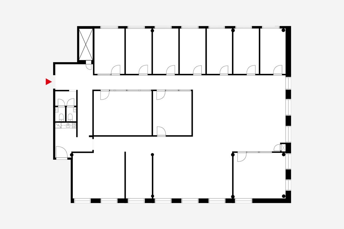
Vuokrataan kolmannen kerroksen 374 m² toimistotila Technopolis Ruoholahdesta. Tässä tilassa on useita erillisiä huoneita sekä oma keittiöllinen taukotila ja wc-tilat.
Technopolis Ruoholahden kampus tarjoaa yrityksellesi toimitilaa paraatipaikalta Helsingin Salmisaaresta, aivan Länsiväylän varrelta. Kampus tunnetaan upeista merimaisemistaan ja erinomaisista liikenneyhteyksistään â Helsingin keskustasta matka kestää vain 10 minuuttia, ja metro- sekä bussiyhteydet ovat lähellä.
Ruoholahden kampus on vilkas ja viihtyisä työympäristö. Alueella toimii kahvila sekä kaksi suosittua ravintolaa, DIN Hiili ja MIN Maki. Lisäksi käytössäsi ovat modernit kokoustilat, kuntosali ja aulapalvelu.
Vastuullisuus on osa koko Technopoliksen toimintafilosofiaa. Se näkyy monella tasolla tälläkin LEED sertifioidulla kampuksella mm. energiatehokkuudessa, vedenkulutuksen vähentämisessä sekä sisäilman laadussa. Lisäksi Technopolis tukee asiakkaiden omia vastuullisuustavoitteita ja tarjoaa asiakkailleen mahdollisuuden raportoida omasta vastuullisuudestaan.
Kysy rohkeasti lisätietoja ja sovitaan käynti kohteella jo tänään!
Hissi
Hausala Oy
Erkkilänkatu 11, 33100 Tampere
Näytä puhelinnumero
050 472 7077
Mika Savikko
Näytä puhelinnumero
050 472 7077
Mikko Ranta
Näytä puhelinnumero
050 360 6500
