Vuokrataan toimistotilat - Turku
Aurakatu 14, Keskusta, 20100 Turku #10844989
Toimistotilaa 190 m2
Osoite
Aurakatu 14, 20100 Turku
Tilatyyppi
Toimistotilaa
190 m2
Kiinteistö
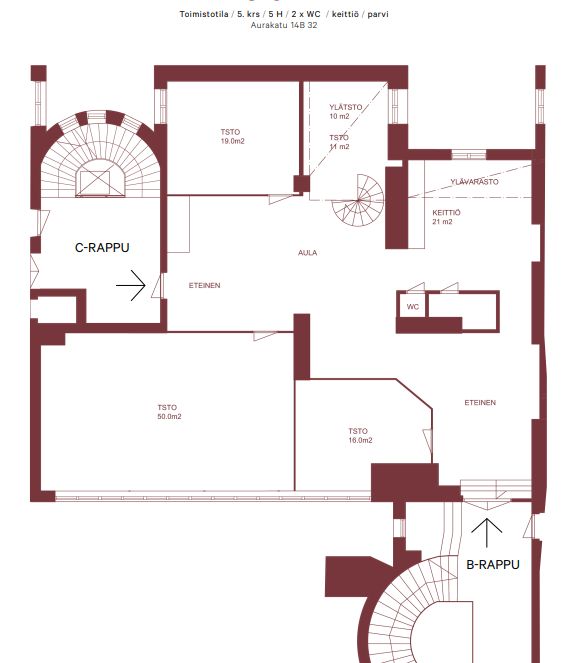
Avara ja persoonallinen toimisto ullakkokerroksessa
Etsitkö toimistotilaa vanhasta kivitalosta? Nyt sellainen on vuokrattavissa Kauppatorin kulmalta, ullakkokerroksesta. Kokonaisuus koostuu avarasta aulatilasta, kolmesta työhuoneesta, joista yksi on kerrosta ylempänä, neuvottelutilasta, tilavasta osin avomallisesta keittiöstä ja WC-tilasta + siivouskomerosta. Ikkunat näyttävät sisäpihalle. Huoneistossa on vaaleat pinnat ja lattia on siisti.
Ullakkokerroksen rakenteet on jätetty monilta osin näkyviin ja huoneiden seinät aulatilojen suuntaan ovat lasia, jonka ansiosta huoneisto on valoisa ja avara. Huoneistoon on sisäänkäynti sekä B- että C-rapusta, joka on esteetön ullakkokerrokseen asti tulevan hissin ansiosta. Osassa tilaa on erityisen korkea huonekorkeus.
Tilassa on viilennys ilmalämpöpumppujen ansiosta.
Rakennus sijaitsee Torinkulmalla ja ydinkeskustan palvelut ovatkin ihan vieressä. Pysäköintitilaa vuokrattavissa P-Louhesta tai Toriparkista. Julkinen liikenne tulee ihan viereen, torille. Paljon ravintoloita ja kauppoja ympäristössä.
Tila sijaitsee 6. kerroksessa. Hissillä pääsee 5. kerrokseen ja viimeinen kerrosväli rappusia pitkin.
Tilassa on erittäin kilpailukykyinen vuokrataso.
Ota yhteyttä ja kysy lisää tästä persoonallisesta huoneistosta! Sovitaan tutustumiskäynti tähän tilaan.
Palvelumme on maksutonta tilanhakijoille.
Etsitkö toimistotilaa vanhasta kivitalosta? Nyt sellainen on vuokrattavissa Kauppatorin kulmalta, ullakkokerroksesta. Kokonaisuus koostuu avarasta aulatilasta, kolmesta työhuoneesta, joista yksi on kerrosta ylempänä, neuvottelutilasta, tilavasta osin avomallisesta keittiöstä ja WC-tilasta + siivouskomerosta. Ikkunat näyttävät sisäpihalle. Huoneistossa on vaaleat pinnat ja lattia on siisti.
Ullakkokerroksen rakenteet on jätetty monilta osin näkyviin ja huoneiden seinät aulatilojen suuntaan ovat lasia, jonka ansiosta huoneisto on valoisa ja avara. Huoneistoon on sisäänkäynti sekä B- että C-rapusta, joka on esteetön ullakkokerrokseen asti tulevan hissin ansiosta. Osassa tilaa on erityisen korkea huonekorkeus.
Tilassa on viilennys ilmalämpöpumppujen ansiosta.
Rakennus sijaitsee Torinkulmalla ja ydinkeskustan palvelut ovatkin ihan vieressä. Pysäköintitilaa vuokrattavissa P-Louhesta tai Toriparkista. Julkinen liikenne tulee ihan viereen, torille. Paljon ravintoloita ja kauppoja ympäristössä.
Tila sijaitsee 6. kerroksessa. Hissillä pääsee 5. kerrokseen ja viimeinen kerrosväli rappusia pitkin.
Tilassa on erittäin kilpailukykyinen vuokrataso.
Ota yhteyttä ja kysy lisää tästä persoonallisesta huoneistosta! Sovitaan tutustumiskäynti tähän tilaan.
Palvelumme on maksutonta tilanhakijoille.
Vapautuu
Kysy
Kerros
6.
Ota yhteyttä
Logistila Oy
Tuureporinkatu 6, 20100 TURKU
Stina Lindroos
Näytä puhelinnumero
044 972 9468
Pyydä lisätietoa
