Vuokrataan toimistotilat - Helsinki
Fabianinkatu 8, Keskusta, 00130 Helsinki #10844958
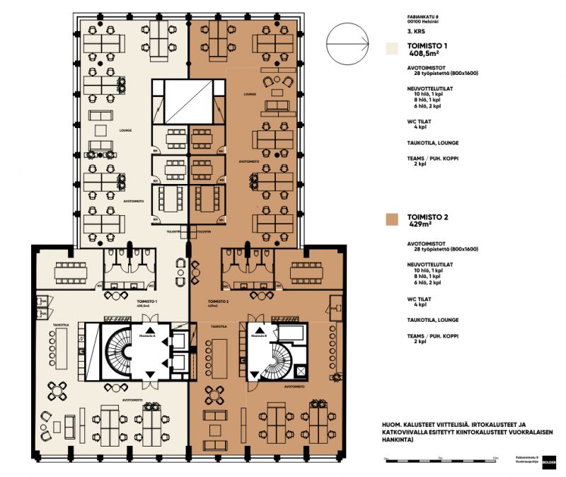
Arvotalo Fabianinkatu 8:ssa saneerataan täysin, jolloin lopputuloksena on käytännössä uusi rakennus viimeisimmällä talotekniikalla ja rakennettuna nykyajan parhailla materiaaleilla. Muutoksen yhteydessä rakennusta myös laajennetaan sisäpihan puolelle, jolloin yhden kerroksen koko on n. 840 m2, yhteensä vuokrattavaa tilaa on hieman yli 5000 m2 seitsemässä kerroksessa. Tartu mahdollisuuteen ja ota yhteyttä, tilojen suunniteltu valmistuminen on alkuvuosi 2026.
Osoite
Fabianinkatu 8, 00130 Helsinki
Tilatyyppi
Toimistotilaa
408 - 837 m2
Tilajako
Jaettavissa
Jaettavissa n. 429m2/408m2
Kiinteistö
FABIAN 8
Pysäköinti
Talossa on lämmin pysäköintihalli jossa myös runsaasti säilytyspaikkoja polkupyörille.
Vapautuu
Heti
Rakennusvuosi
1970
Saneerausvuosi
2025
Kerros
1-7 / 7
Energiatehokkuusluokka
Ei lain edellyttämää energiatodistusta
Jaettavissa
Ota yhteyttä
Senaatin Notariaatti Oy LKV
Lämmittäjänkatu 4 A
FIN-00880 Helsinki
Tel:
Näytä puhelinnumero
+358 9 7745 100
Pyydä lisätietoa
