Vuokrataan toimistotilat, liiketilat - Jyväskylä
Yliopistonkatu 23, 40100 Jyväskylä #10844946
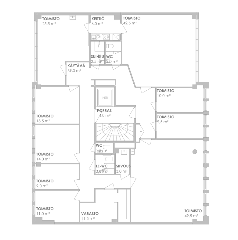
Vuokrataan Yliopistonkadulta n. 268 m2 toimisto - tai asiakaspalvelutilaksi soveltuvaa liiketilaa. Tilat sijaitsevat toisessa kerroksessa, ja tilakokonaisuuteen kuuluu 8 erikokoista toimistohuonetta, avotilaa, keittiö, varasto sekä WC- ja suihkutilat (ks. pohjakuva). Kiinteistössä on myös hissi, ja tilassa inva-WC. Tilaan on esteetön kulku. Tila on jaettavissa kahden käyttäjän kesken. Tila soveltuu toimistokäyttöön ja esimerkiksi terveysalan toimijalle asiakaspalvelutilaksi.
Sijainti Yliopiston kadun alapäässä, josta Kolmikulmaan matkaa n. 150m.
Tila on heti vapaa.
Lisätiedot ja näytöt:
Henri Kumpulainen, 040 864 3631, henri.kumpulainen@aveon.fi
Näkyvällä paikalla
Jaettavissa
Hissi
Aveon Real Estate Oy
Kauppakatu 18 C 26, 40100 Jyväskylä
Henri Kumpulainen
Puh.
Näytä puhelinnumero
040 864 3631
henri.kumpulainen@aveon.fi
Olemme kiinteistöliiketoiminnan asiantuntija, joka toimii yrittäjämäisesti neuvonantajana kiinteistökaupoissa, toimitilavälittämisessä sekä kiinteistökehityksessä.
Asiakkaitamme ovat kotimaiset ja ulkomaiset kiinteistönomistajat, -sijoittajat sekä tilojen käyttäjät kaikkialla Suomessa.
