Vuokrataan toimistotilat - Oulu
Elektroniikkatie 3, 90590 Oulu #10844889
Technopolis Linnanmaan kampus tarjoaa monipuoliset tukipalvelut asiakkailleen. Lähistöllä sijaitsee muun muassa kauppoja ja urheiluhalli. Ilmoitettu neliömäärä sisältää jyvityksen kiinteistön yhteisistä tiloista. Kysy lisätietoja!
Lisätietoja ja esittelyt kohteesta 0400891057
Lisää kohteita www.premises.fiKerros: 1
Osoite
Elektroniikkatie 3, 90590 Oulu
Tilatyyppi
Toimistotilaa
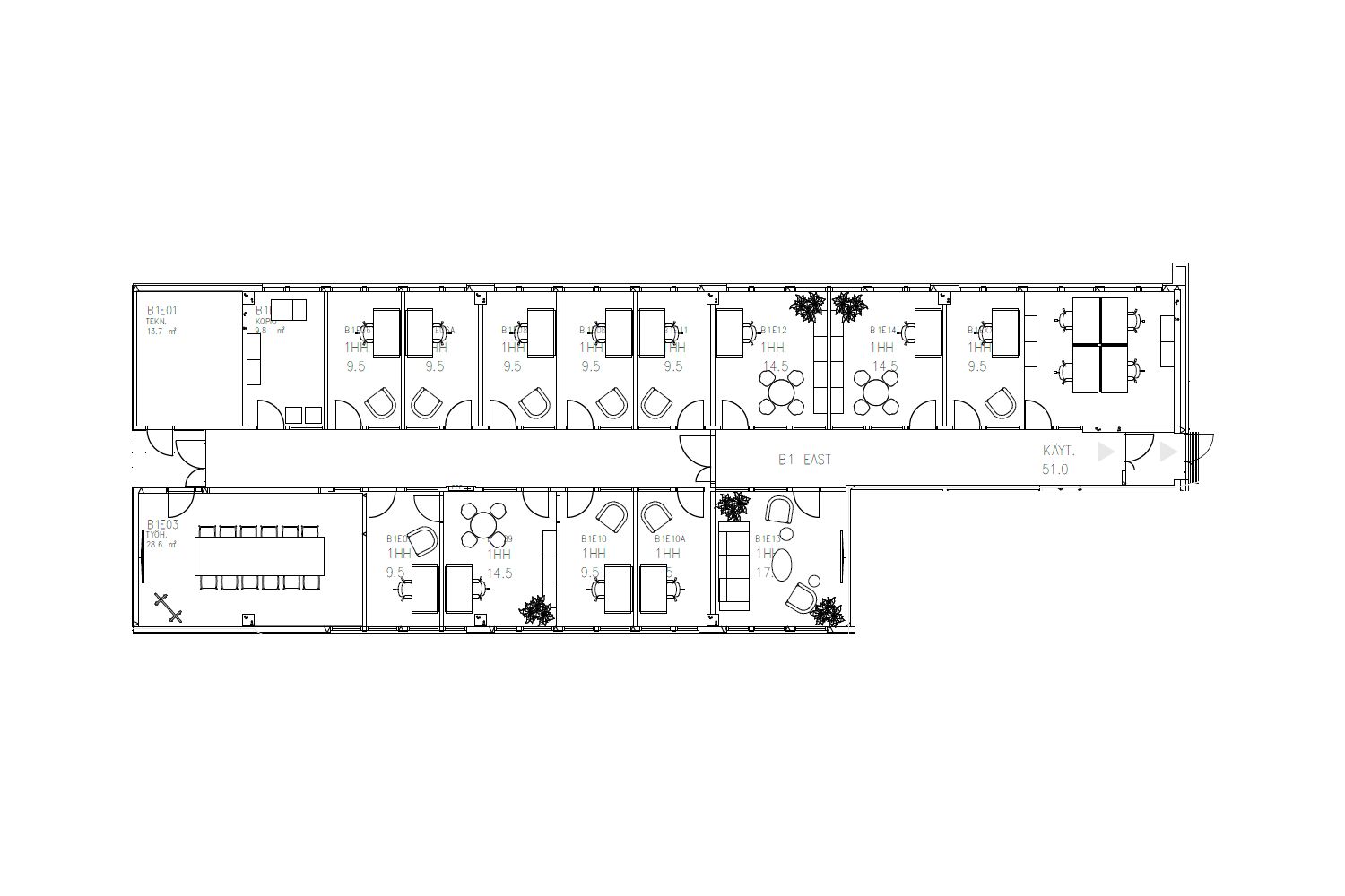
349 m2
Ota yhteyttä
CRE PREMISES
Puh. Näytä puhelinnumero 020 7290 710
Vantaankoskentie 14
01670 VANTAA
Pyydä lisätietoa
