Vuokrataan tuotantotilat, varastotilat - Espoo
Rajamaankaari 19, Juvanmalmi, 02970 Espoo #10844854
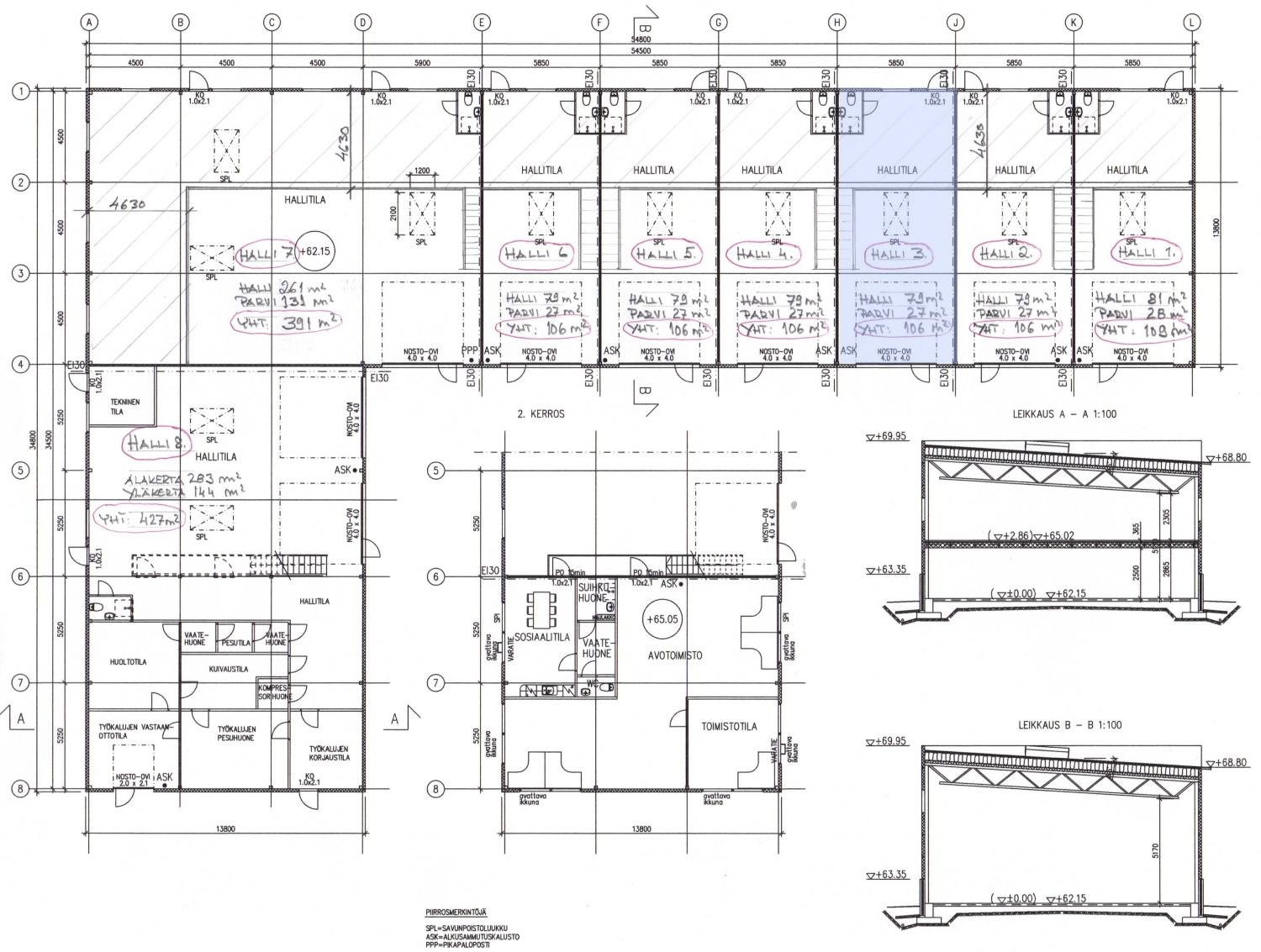
Sisäänajettavaa hallitilaa Juvanmalmilla
Osoite
Rajamaankaari 19, 02970 Espoo
Tilatyyppi
Tuotantotilaa
106 m2
Varastotilaa
106 m2
Yhteensä
106 m2
Pohjapiirros
Vuokra
1400 € / kk + alv
Kiinteistö
Kiinteistössä on vapaana 106 m² hallitila (halli 3), joka koostuu 79 m² hallista ja 27 m² parvitilasta.
Halli ovat sisäänajettava ja tilassa on hiekan- ja öljynerotuskaivot, koneellinen ilmanvaihto, laajakaistayhteydet mahdollistava puhelinkaapelointi sekä voimavirtapistoke + valovirtapistokkeet.
Halli ovat sisäänajettava ja tilassa on hiekan- ja öljynerotuskaivot, koneellinen ilmanvaihto, laajakaistayhteydet mahdollistava puhelinkaapelointi sekä voimavirtapistoke + valovirtapistokkeet.
Vapautuu
Heti
Rakennusvuosi
2015
Kerros
1
Energiatehokkuusluokka
Ei lain edellyttämää energiatodistusta
Katutasossa
Ota yhteyttä
ScanReal Oy LKV
Opus Business Park
Hitsaajankatu 24
00810 Helsinki
info@scanreal.fi
Puh:
Näytä puhelinnumero
020 730 8830
Sopivat toimitilat yhdellä otolla!
Kartoitamme toimitilatarpeesi ja etsimme yrityksellesi parhaiten sopivat vapaat toimitilat. Koska vuokranantajat maksavat palvelumme, on tämä yrityksellesi veloituksetonta.
OTA YHTEYTTÄ - SOVI NÄYTTÖ!
Kaikki kohteemme eivät ole netissä, kerro tilatarpeesi niin kartoitamme vaihtoehdot.
Palvelumme on tilanhakijalle ilmainen
Pyydä lisätietoa
