Vuokrataan liiketilat - Helsinki
Viides linja 4, Kallio, 00530 Helsinki #10844834
SIJAINTI
Asunto Oy Helsingin Kallion Linjat sijaitsee aivan Kallion sydämessä – alueella, joka on muuttunut entisestä työläiskaupunginosasta moderniksi ja eläväksi kaupunginosaksi. Kallio on nykyisin nuoren polven suosima, urbaani ja inspiroiva ympäristö, joka tarjoaa runsaasti kahviloita, ravintoloita ja muita palveluita aivan käden ulottuvilla.
KIINTEISTÖ
Taloyhtiö muodostuu kahdesta rakennuksesta, jotka sijaitsevat vastakkaisilla puolilla Neljättä ja Viidettä linjaa. Molemmat rakennukset on peruskorjattu vuonna 2008. Yhtiössä on sekä asuinhuoneistoja että liiketiloja.
VUOKRATTAVA TILA
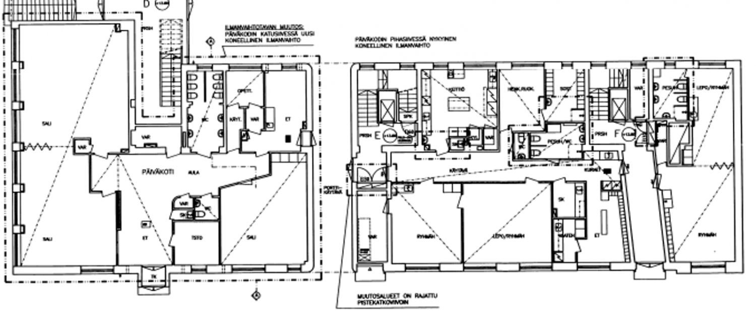
Vuokrattavana on kiinteistön katutasossa sijaitsevat entisen päiväkodin tilat, jotka koostuvat kolmesta erillisestä kokonaisuudesta.
Tervetuloa tutustumaan ja ideoimaan, miten tila voisi parhaiten palvella liiketoimintaasi – suunnitellaan yhdessä juuri teille sopiva ratkaisu!
