Vuokrataan toimistotilat - Espoo
Innopoli 1, Tekniikantie 12, Otaniemi, 02150 Espoo #10844832
Otaniemen Technopoliksessa vapaana valoisa ja monipuolinen 447 m² toimisto.
Osoite
Tekniikantie 12, 02150 Espoo
Tilatyyppi
Toimistotilaa
447 m2
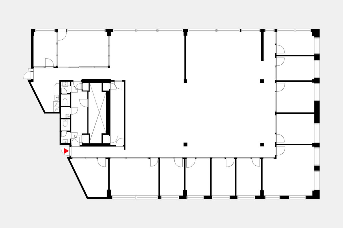
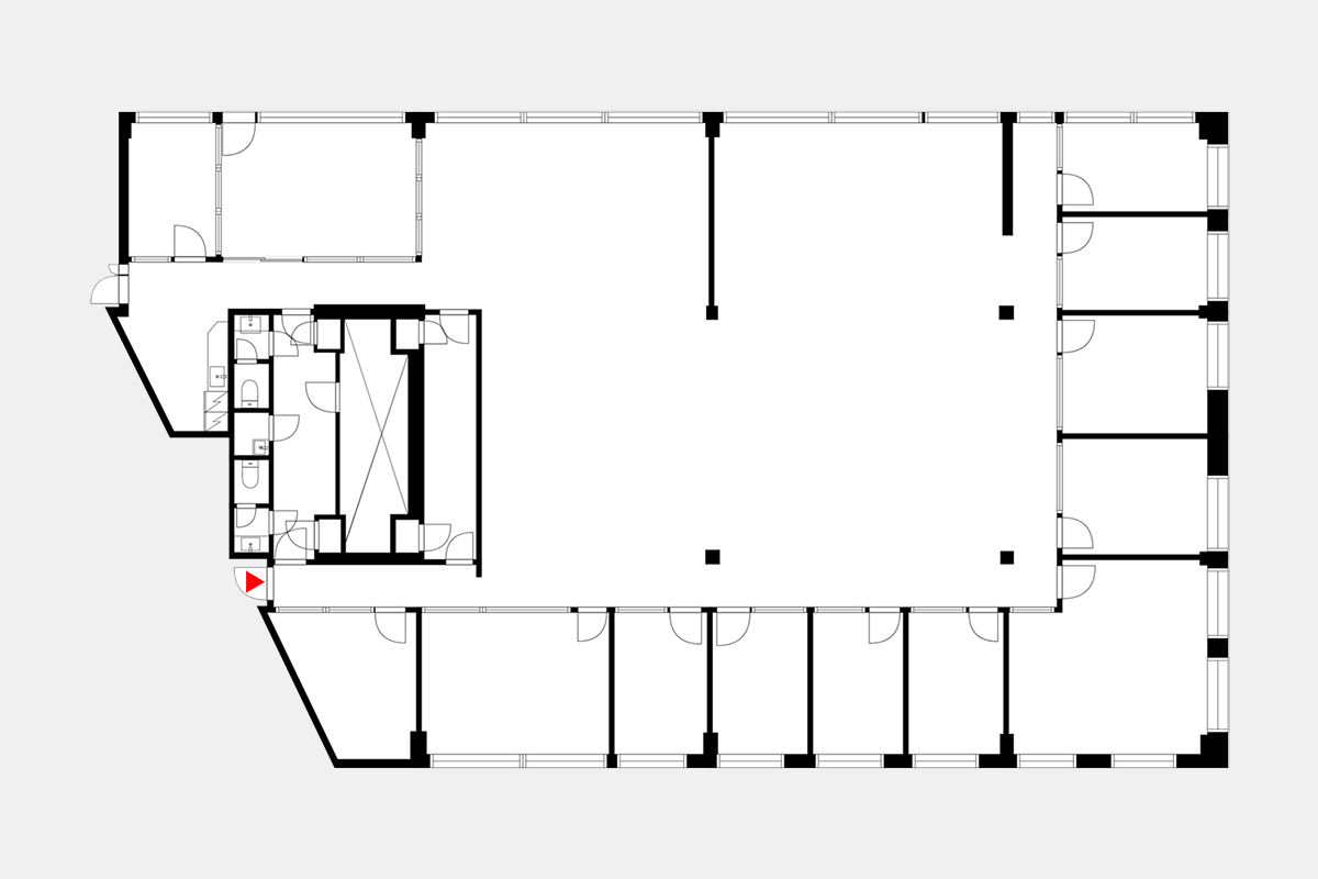
Pohjapiirros
Kiinteistö
Technopolis Otaniemessä sijaitseva 447 m² kolmannen kerroksen toimitila tarjoaa yritykselle muunneltavat ja avarat puitteet, jotka voidaan räätälöidä asiakkaan toiveiden mukaisesti ennen vuokrausta. Tilassa on useita huoneita, oma keittiö sekä wc-tilat, ja kokonaisuus on kulunvalvottu, mikä takaa turvallisen ja hallitun työympäristön. Tilan pohjaratkaisu mahdollistaa joustavan työnteon, tehokkaan tiimityön ja erilaisten toimintojen sujuvan sijoittelun.
Technopolis Otaniemi tarjoaa yrityksellesi ainutlaatuisen mahdollisuuden tehdä yhteistyötä yliopiston ja eri alojen asiantuntijoiden kanssa. Modernit, tehokkaat toimitilat sijaitsevat Aalto-yliopiston lähellä erinomaisten kulkuyhteyksien varrella. Otaniemen kampukselle pääsee kätevästi bussilla, metrolla, pikaratikalla tai autolla Kehä I:ltä.
Kampuksen neljän Innopoli-rakennuksen joustavat toimitilat sopivat sekä pienille että suurille yrityksille. Kattaviin, arkea helpottaviin palveluihin kuuluu muun muassa ravintoloita, kuntosali, runsaasti pysäköintitilaa ja sähköautojen latausmahdollisuus. Käytössäsi on myös kampuksen monipuoliset kokous- ja saunatilat. Kampuksella on myös pientoimistoalue Technopolis HUB, joka koostuu useasta pienestä, alle 10 hengen tiimeille sopivasta toimistotilasta.
Otaniemen kampus on energiankäytöltään hiilineutraali Technopoliksen energianhankinnan osalta ja kaikilla kampuksen rakennuksilla on LEED-sertifikaatti osoituksena ympäristösuorituskyvystä.
Technopolis Otaniemi tarjoaa yrityksellesi ainutlaatuisen mahdollisuuden tehdä yhteistyötä yliopiston ja eri alojen asiantuntijoiden kanssa. Modernit, tehokkaat toimitilat sijaitsevat Aalto-yliopiston lähellä erinomaisten kulkuyhteyksien varrella. Otaniemen kampukselle pääsee kätevästi bussilla, metrolla, pikaratikalla tai autolla Kehä I:ltä.
Kampuksen neljän Innopoli-rakennuksen joustavat toimitilat sopivat sekä pienille että suurille yrityksille. Kattaviin, arkea helpottaviin palveluihin kuuluu muun muassa ravintoloita, kuntosali, runsaasti pysäköintitilaa ja sähköautojen latausmahdollisuus. Käytössäsi on myös kampuksen monipuoliset kokous- ja saunatilat. Kampuksella on myös pientoimistoalue Technopolis HUB, joka koostuu useasta pienestä, alle 10 hengen tiimeille sopivasta toimistotilasta.
Otaniemen kampus on energiankäytöltään hiilineutraali Technopoliksen energianhankinnan osalta ja kaikilla kampuksen rakennuksilla on LEED-sertifikaatti osoituksena ympäristösuorituskyvystä.
Pysäköinti
Vuokrattavissa pihaparkkipaikkoja tarpeen mukaan.
Kulkuyhteydet
Metroasema 800 m, Bussipysäkki 100 m, Juna-asema 5,9 km, Lentoasema 22,3 km
Muuta
Ei lain edellyttämää energiatodistusta
Vapautuu
Heti
Kerros
3 / 6
Energiatehokkuusluokka
Ei lain edellyttämää energiatodistusta
Näkyvällä paikalla
Hissi
Ota yhteyttä
ScanReal Oy LKV
Opus Business Park
Hitsaajankatu 24
00810 Helsinki
info@scanreal.fi
Puh:
Näytä puhelinnumero
020 730 8830
Sopivat toimitilat yhdellä otolla!
Kartoitamme toimitilatarpeesi ja etsimme yrityksellesi parhaiten sopivat vapaat toimitilat. Koska vuokranantajat maksavat palvelumme, on tämä yrityksellesi veloituksetonta.
OTA YHTEYTTÄ - SOVI NÄYTTÖ!
Kaikki kohteemme eivät ole netissä, kerro tilatarpeesi niin kartoitamme vaihtoehdot.
Palvelumme on tilanhakijalle ilmainen
Pyydä lisätietoa
