Vuokrataan toimistotilat - Jyväskylä
Cygnaeuksenkatu 1, 40100 Jyväskylä #10844831
Laadukasta tilaa Jyväskylän keskustasta
Osoite
Cygnaeuksenkatu 1, 40100 Jyväskylä
Tilatyyppi
Toimistotilaa
100 - 350 m2
Tilajako
Jaettavissa
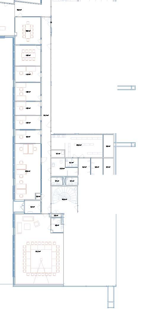
Tila voidaan jakaa noin 100 neliöiseen ja 250 neliöiseen tilaan
Kiinteistö
Tilat muodostuvat käytävästä, jonka varrella on useita toimistohuoneita. Huoneita voidaan joustavasti yhdistellä suuremmiksi kokonaisuuksiksi, kuten neuvotteluhuoneiksi tai keittiötiloiksi, tarpeiden mukaan. Äänenhallintaan on panostettu huolellisesti äänieristyksellä ja kaiunvaimennuksella, mikä takaa rauhallisen ja keskittymistä tukevan työympäristön. Lisäksi tiloissa on viilennys, joka varmistaa miellyttävän työilmapiirin ympäri vuoden.
Tilat ovat lähtökohtaisesti hyvässä kunnossa, mutta muokkaukset tarpeiden mukaan ovat mahdollisia, jotta tilat vastaavat täydellisesti teidän tarpeisiin.
Matterport 3D-kuvaus: https://my.matterport.com/show/?m=qGg1Pk99AQb
Lisätietoja: Juho.rautiainen@atr-group.fi | 0400 238 678
Royal House Oy
Tilat ovat lähtökohtaisesti hyvässä kunnossa, mutta muokkaukset tarpeiden mukaan ovat mahdollisia, jotta tilat vastaavat täydellisesti teidän tarpeisiin.
Matterport 3D-kuvaus: https://my.matterport.com/show/?m=qGg1Pk99AQb
Lisätietoja: Juho.rautiainen@atr-group.fi | 0400 238 678
Royal House Oy
Kiinteistön palvelut
Aulapalvelut, Keittiö, Kokoustilat, Piha, Postipalvelu, Pukuhuoneet, Pysäköintihalli, Pyöräparkki, Siivouspalvelu, Turvapalvelut
Vapautuu
Heti
Kerros
1 / 4
Katutasossa
Jaettavissa
Liitetiedostot
Ota yhteyttä

Royal House Oy
Olemme kiinteistökehittämiseen erikoistunut kiinteistösijoitusyritys. Toimimme pääsääntöisesti asuntojen ja toimistojen parissa.
Pyydä lisätietoa