Vuokrataan liiketilat, varastotilat - Helsinki
Linnankoskenkatu 4, Taka-Töölö, 00250 Helsinki #10844697
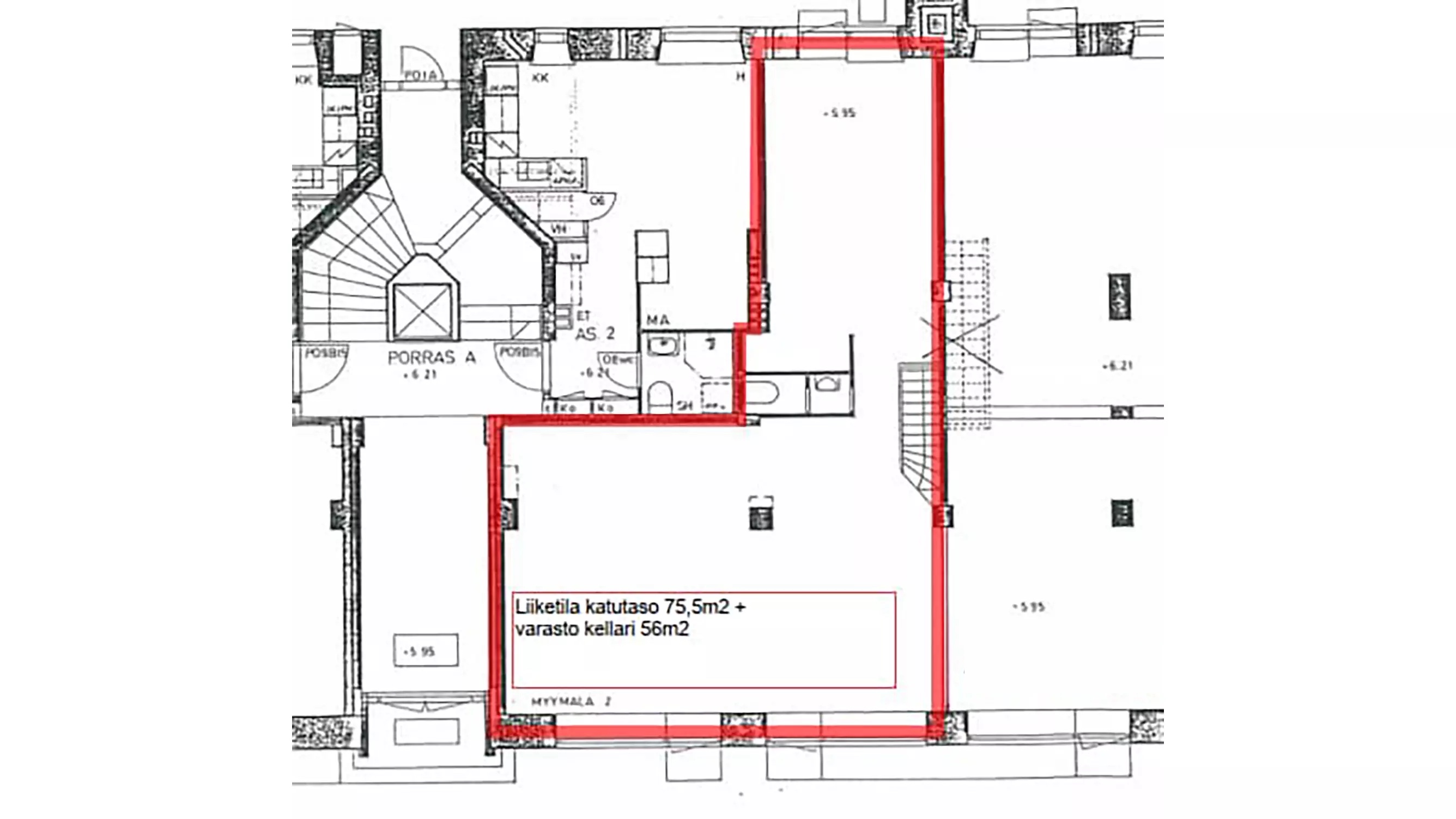
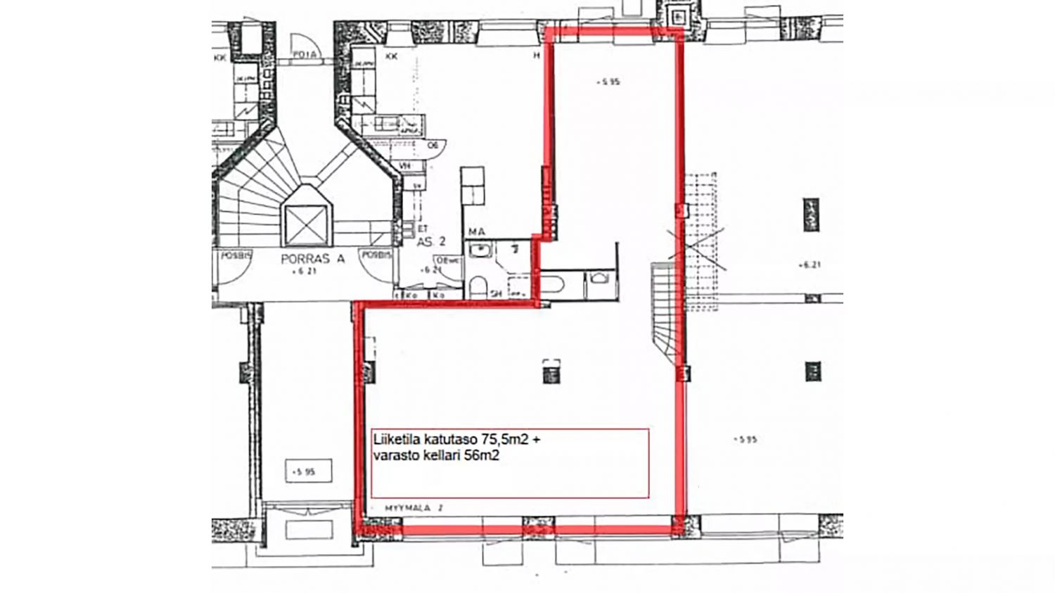
Siisti, loistavalla paikalla Töölössä sijaitseva katutason n. 75,5 liiketila, asuinrakennuksen kivijalassa.
Osoite
Linnankoskenkatu 4, 00250 Helsinki
Tilatyyppi
Liiketilaa
75,5 m2
Varastotilaa
56 m2
Yhteensä
131,5 m2
Pohjapiirros
Kiinteistö
Vuokrattavissa n. 75,5 m² katutason liiketila, jossa on isot ikkunat vehreälle kadulle. Kellarikerroksessa n. 56 m² varastotilaa.
Linnankoskenkatu 4 on asuinkiinteistö Helsingin Töölössä. Sen kivijalassa on vuokrattavia liiketiloja. Lähialueella on runsaasti palveluja ja liikenneyhteydet ovat loistavat.
Liiketila ei sovellu ravintola- tai kahvilatoimintaan.
This premises is not suitable for a restaurant or cafeteria.
Linnankoskenkatu 4 on asuinkiinteistö Helsingin Töölössä. Sen kivijalassa on vuokrattavia liiketiloja. Lähialueella on runsaasti palveluja ja liikenneyhteydet ovat loistavat.
Liiketila ei sovellu ravintola- tai kahvilatoimintaan.
This premises is not suitable for a restaurant or cafeteria.
Kulkuyhteydet
Metroasema 1,9 km, Raitiovaunupysäkki alle 100 m, Bussipysäkki 200 m, Juna-asema 1,7 km, Lentoasema 14,9 km
Vapautuu
Heti
Kerros
1
Energiatehokkuusluokka
Ei lain edellyttämää energiatodistusta
Katutasossa
Näkyvällä paikalla
Ota yhteyttä
ScanReal Oy LKV
Opus Business Park
Hitsaajankatu 24
00810 Helsinki
info@scanreal.fi
Puh:
Näytä puhelinnumero
020 730 8830
Sopivat toimitilat yhdellä otolla!
Kartoitamme toimitilatarpeesi ja etsimme yrityksellesi parhaiten sopivat vapaat toimitilat. Koska vuokranantajat maksavat palvelumme, on tämä yrityksellesi veloituksetonta.
OTA YHTEYTTÄ - SOVI NÄYTTÖ!
Kaikki kohteemme eivät ole netissä, kerro tilatarpeesi niin kartoitamme vaihtoehdot.
Palvelumme on tilanhakijalle ilmainen
Pyydä lisätietoa
