Vuokrataan toimistotilat - Helsinki
Hiilikatu 3, Ruoholahti, 00180 Helsinki #10844694
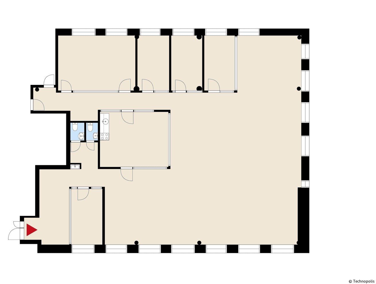
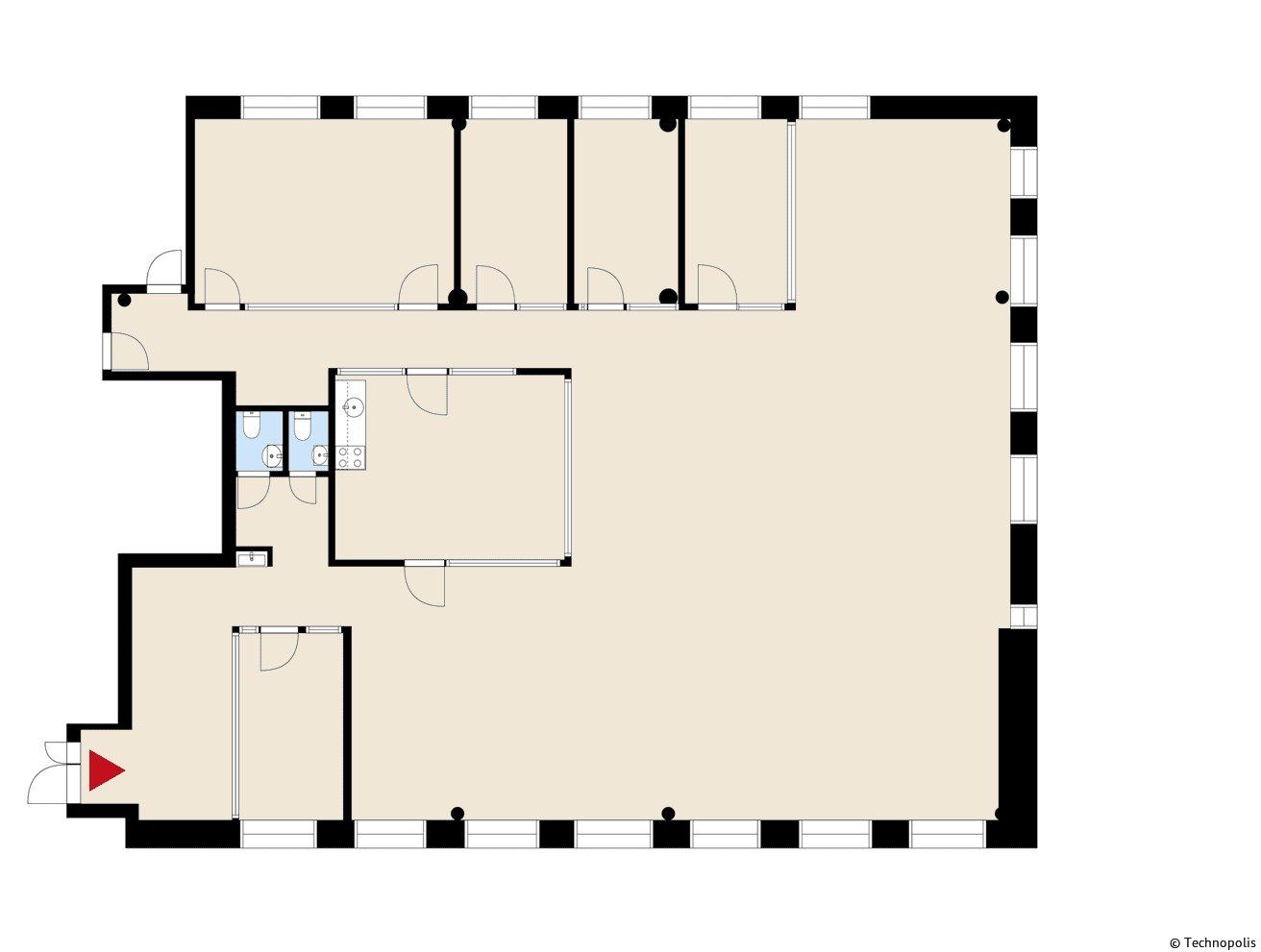
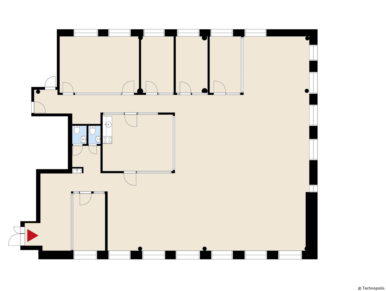
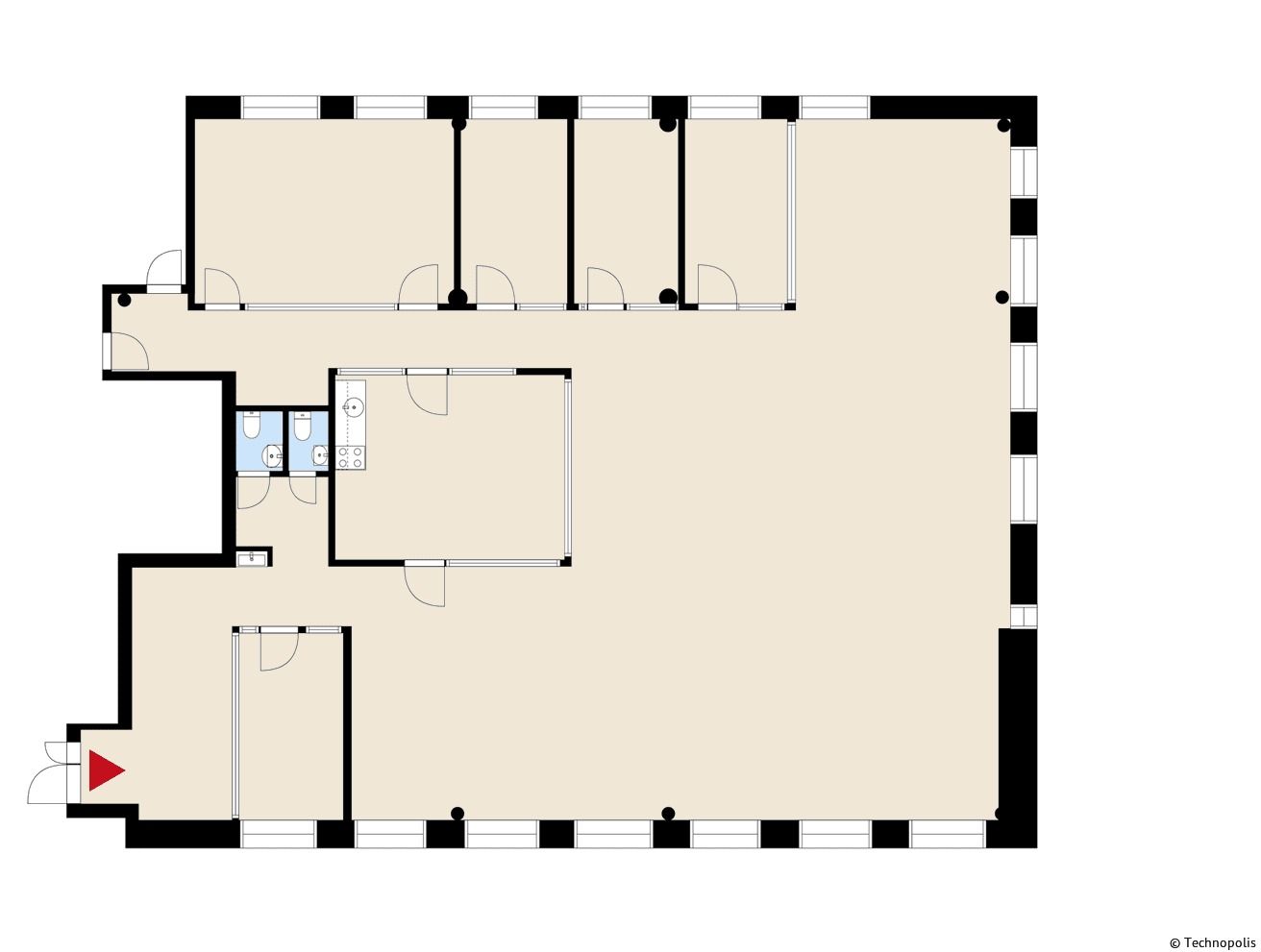
Toisen kerroksen toimistotila vaikuttavalla merinäköalalla. Tämä upea, monipuolinen toimistotila koostuu useista työhuoneista, neuvotteluhuoneesta, omista wc-tiloista ja taukohuoneesta keittiöineen. Näissä tiloissa kelpaa kohdata niin asiakkaita kuin kollegoita, ja toimiva kokonaisuus tarjoaa mahdollisuuksia erilaisille kohtaamisille päivän mittaan. Tämä tila sijaitsee myös lähellä aula- ja ravintolapalveluita sujuvoittaen päivän kulkua entisestään.
Technopoliksen Ruoholahden kampus nauttii merinäköalasta ja erinomaisesta saavutettavuudesta. Tällä vilkkaalla kampuksella sijaitsee kahvila ja kaksi suosittua ravintolaa. Technopoliksen palvelut kattavat esimerkiksi kokoustilat sekä aulapalvelun, ja ystävällinen henkilökunta on aina valmiina auttamaan. Myös oman toimiston ulkopuolella sijaitsevat yhteiskäytössä olevat työ- ja tapaamispisteet ovat kaikkien asiakkaiden käytössä.
Technopolis käyttää Ruoholahden kampuksella 100% uusiutuvaa sähköä ja kaikille kampuksen rakennuksille on myönnetty LEED-ympäristösertifikaatti.
Croisette on uusi ja innovatiivinen toimitilojen välitysyritys Suomessa. Meillä on vahva halu auttaa teitä löytämään paras toimitilaratkaisu mahdollisimman vaivattomasti.
Huomaathan, että kaikki vapaat ja vapautuvat tilat ovat kauttamme saatavilla. Osa tiloista on hiljaisessa markkinoinnissa, mutta ottamalla meihin yhteyttä saat nekin tietoosi.
Palvelumme on tilanhakijoille täysin maksutonta.
Hissi
Croisette Real Estate Partner
Erottajankatu 5 A 6, 00130 Helsinki
Näytä puhelinnumero
+358 400 585 857
Croisette Vuokraus
Näytä puhelinnumero
+358400585857
