Vuokrataan tuotantotilat - Helsinki
Kylvöpolku 6, Itä-Pakila, 00680 Helsinki #10844692
Vuokrataan tilava ja monipuolinen kiinteistö Itä-Pakilasta.
Osoite
Kylvöpolku 6, 00680 Helsinki
Tilatyyppi
Tuotantotilaa
1690 m2
Tilajako
Jaettavissa
Tilat voidaan haluttaessa jakaa kahden eri käyttäjän kesken.
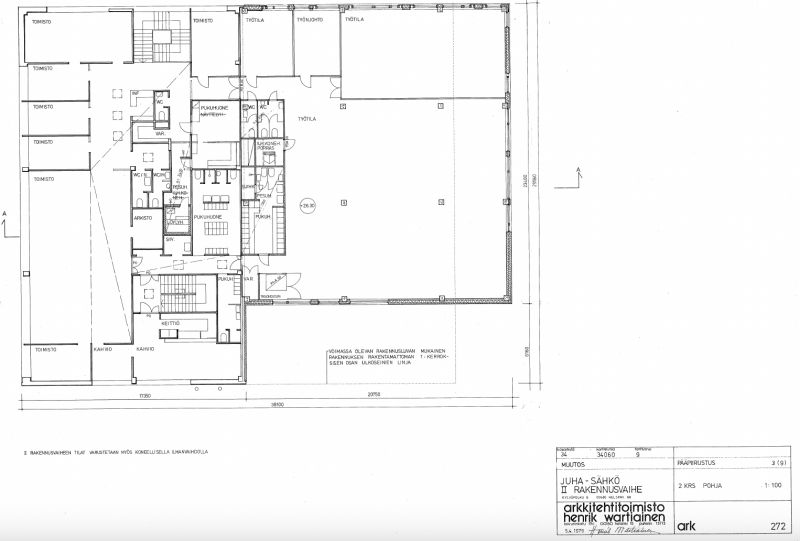
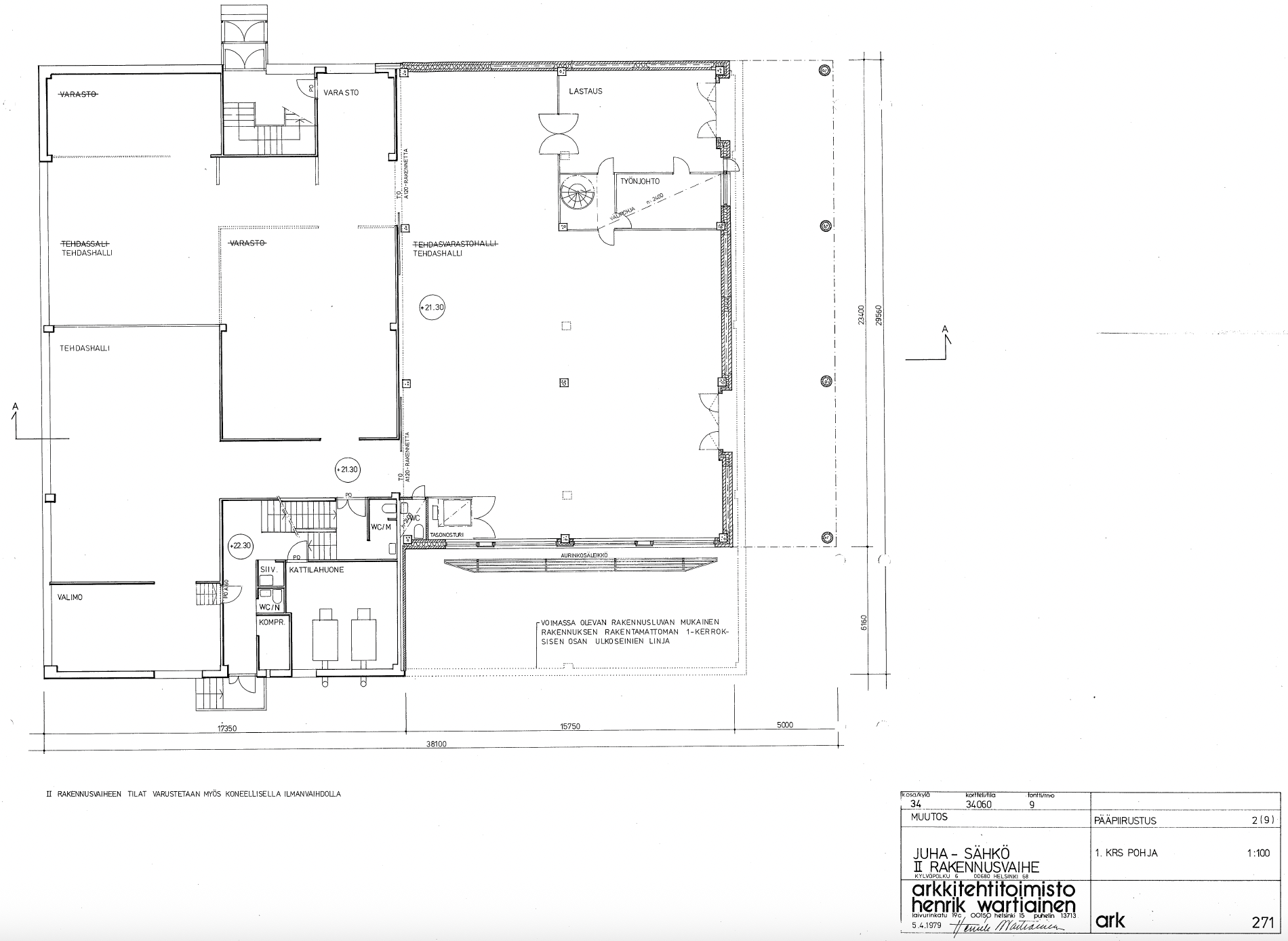
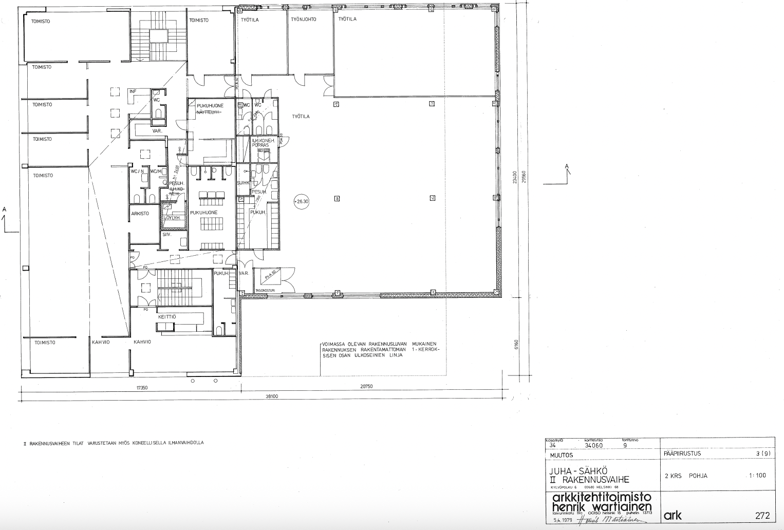
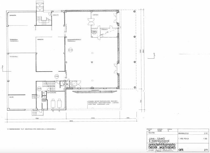
Pohjapiirros
Kiinteistö
Itä-Pakilan yritysalueella vuokrattavana laaja ja hyväkuntoinen kiinteistökokonaisuus, joka yhdistää varasto- ja toimistotilat saman katon alle. Kohde soveltuu yritykselle, joka tarvitsee monipuolisia tiloja logistiikan, kokoonpanon tai hallinnollisen toiminnan käyttöön.
Rakennus käsittää kaksi kerrosta. Katutasossa on noin 730 m² varasto- tai tuotantotilaa, jonka vapaa sisäkorkeus on noin 4,2 metriä. Tilaan on kaksi nosto-ovea (L 2,7 m x K 3,0 m), joista toisen edessä on lipan alla suojainen lastausalue. Varastossa on kolme erillistä varastohuonetta (á noin 10 m²), wc sekä erillinen noin 60 m² työtila.
Toisen kerroksen toimistotilat (n. 960 m²) tarjoavat viihtyisän ja toimivan ympäristön toimistotyöhön. Tilat koostuvat useista toimistohuoneista, keittiöstä ja sosiaalitiloista, ja niissä on ääntä vaimentava kokolattiamatto. Kerrosten välillä kulkee tavarahissi, joka helpottaa tavaroiden ja materiaalien siirtoa.
Tilat voidaan tarvittaessa muuttaa myös tuotanto- tai varastokäyttöön yrityksen tarpeiden mukaan.
Kiinteistössä on mahdollisuus valokuituyhteyteen, joka varmistaa nopeat ja luotettavat tietoliikenneyhteydet.
Rakennus käsittää kaksi kerrosta. Katutasossa on noin 730 m² varasto- tai tuotantotilaa, jonka vapaa sisäkorkeus on noin 4,2 metriä. Tilaan on kaksi nosto-ovea (L 2,7 m x K 3,0 m), joista toisen edessä on lipan alla suojainen lastausalue. Varastossa on kolme erillistä varastohuonetta (á noin 10 m²), wc sekä erillinen noin 60 m² työtila.
Toisen kerroksen toimistotilat (n. 960 m²) tarjoavat viihtyisän ja toimivan ympäristön toimistotyöhön. Tilat koostuvat useista toimistohuoneista, keittiöstä ja sosiaalitiloista, ja niissä on ääntä vaimentava kokolattiamatto. Kerrosten välillä kulkee tavarahissi, joka helpottaa tavaroiden ja materiaalien siirtoa.
Tilat voidaan tarvittaessa muuttaa myös tuotanto- tai varastokäyttöön yrityksen tarpeiden mukaan.
Kiinteistössä on mahdollisuus valokuituyhteyteen, joka varmistaa nopeat ja luotettavat tietoliikenneyhteydet.
Sijainti
Kohde sijaitsee erinomaisella paikalla, Tuusulanväylän vieressä, Itä-Pakilassa. Kehä I noin kilometrin etäisyydellä. Liikenneyhteydet ovat sujuvat sekä Helsingin keskustaan että pääväylille. Alueella toimii useita vakiintuneita yrityksiä ja palveluja, jotka tukevat monenlaista liiketoimintaa.
Ympäristö
Rakennus sijaitsee aidatulla, noin 2000 m² tontilla, jossa on reilusti pysäköintitilaa ja hyvät kääntömahdollisuudet. Piha-alue on turvallinen ja helposti saavutettava myös raskaalla kalustolla.
Pysäköinti
Kiinteitsön oma piha ja kadunvarsipysäköinti.
Palvelut
Alpepa 200 m
Vapautuu
Heti
Katutasossa
Näkyvällä paikalla
Jaettavissa
Liitetiedostot
Ota yhteyttä
Comreal Oy LKV
Joonas Nilsson
Näytä puhelinnumero
044 328 3425
Ota yhteyttä, niin kerron lisää kohteesta. Huomasithan, että kaikki kohteemme ei ole esillä internetissä. Kerro meille tilatarpeesi, niin autamme sinua etsimään yrityksellesi oikean tilan.
Tilahakumme on maksuton.
Pyydä lisätietoa
