Vuokrataan toimistotilat - Oulu
Isokatu 32, Keskusta, 90100 Oulu #10844607
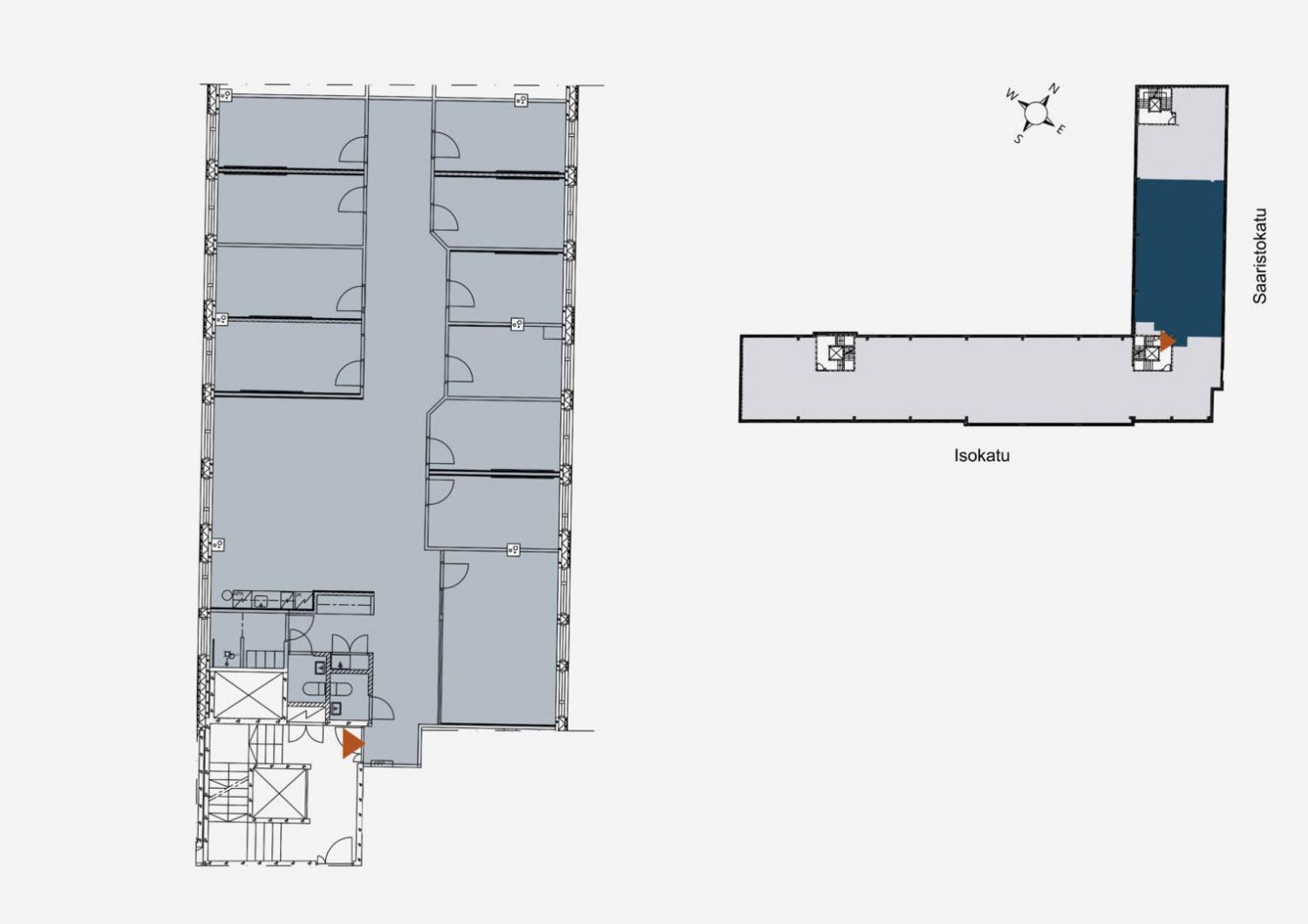
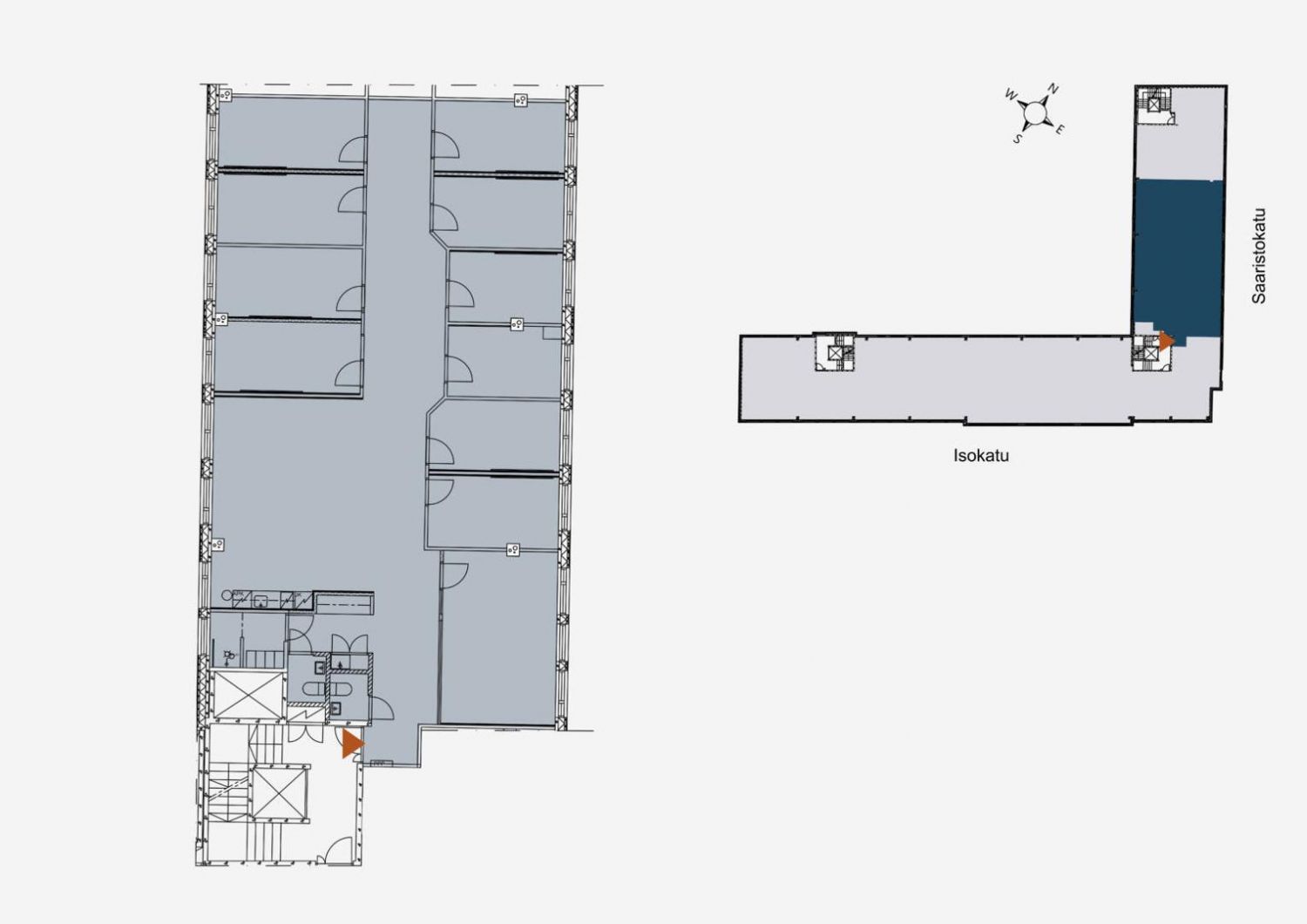
Toimistotila 222 m2 keskusta
Osoite
Isokatu 32, 90100 Oulu
Tilatyyppi
Toimistotilaa
222 m2
Kiinteistö
Vuokrataan
Vuokrataan 4 krs. 222 m² toimistotila. Tilat sisältävät useamman toimistohuoneen/neukkarin, sekä avaraa tilaa sosiaali- keittiötiloineen. Tila on muunneltavissa juuri teidän tarpeisiinne sopivaksi. Pysäköinti autoille ja pyörille on sisäpihalla.
Sijainti
Osoite on Isokatu 32 eli aivan Oulun ydinkeskustassa kaikkien palvelujen äärellä.
Suunnitellaan järkevä ja viihtyisä toimitila yrityksellesi. Ota yhteyttä, niin mennään tutustumaan paikan päälle!
HUOM! Pohjakuva päivittyy.
Vuokrataan 4 krs. 222 m² toimistotila. Tilat sisältävät useamman toimistohuoneen/neukkarin, sekä avaraa tilaa sosiaali- keittiötiloineen. Tila on muunneltavissa juuri teidän tarpeisiinne sopivaksi. Pysäköinti autoille ja pyörille on sisäpihalla.
Sijainti
Osoite on Isokatu 32 eli aivan Oulun ydinkeskustassa kaikkien palvelujen äärellä.
Suunnitellaan järkevä ja viihtyisä toimitila yrityksellesi. Ota yhteyttä, niin mennään tutustumaan paikan päälle!
HUOM! Pohjakuva päivittyy.
Vapautuu
Kysy
Ota yhteyttä
Logistila Oy
Kiilakiventie 1, 90250 OULU
Sami Karppinen
Näytä puhelinnumero
+358401994722
Pyydä lisätietoa
